西班牙绍萨尔 G House | Esaú Acosta
阅读:2047 2018-09-07

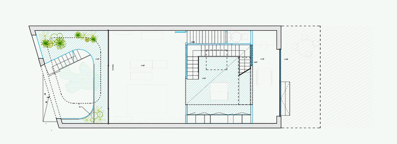
不看文字介绍,一定会觉得这是座日本某城市的集约式住宅。然而在距离上有着十万八千里,G House位于西班牙El Sauzal,一个基本不受规划控制的地区。这里的房子有大有小,年龄也各不相同。G House的用地十分具有挑战性,场地面宽6.5米,一侧是山坡挡土墙,另一侧的邻居沧桑的几乎快倒塌。进深方向有不大的高差,其中一侧被设计成下沉式,可进入半地下车库。G House由Esaú Acosta工作室设计,外部以裸露的混凝土打造,通过二三层的相互错动产生一个宽敞的露台。

设计中最有趣的是前院,所谓庭院其实院子的首层是进入车库的坡道,然而二三层悬挑出来的阳台对这个空间呈半围合状,在空间上形成了有趣的层次,以及这里作为灰空间的内外融合。是一个夏天不错的室外活动休息所在。

除此之外,内部还有一个方形的天井,作为竖向交通连接着底层到顶层的空间,可以上到屋顶花园,屋顶部分的开口是可开启的,雨天可以关上这扇地门,阳天可以开启,为内部采光通风。


ARCHINA 所有平台上发布的项目、招聘、资讯等内容,部分由第三方提供或系统自动收录。资料版权属于第三方,若信息不实或涉及版权问题,需要版权方和第三方沟通,ARCHINA 将配合对接,并在确认无误后删除涉及版权问题的信息,相应的法律责任均由资料提供方承担。


评论


请 [登录] 后评论