意大利2015年米兰世界博览会中国国家馆 | Studio Link-Arc
阅读:7750 2018-09-07

相信许多朋友已经见过这座有如“黄金麦浪”般的建筑了,由清华大学与Studio Link-Arc工作室联合设计的中国馆以艺术化的设计语言、先进的科技手段,诠释了中国人对农业、粮食、饮食、自然的看法。

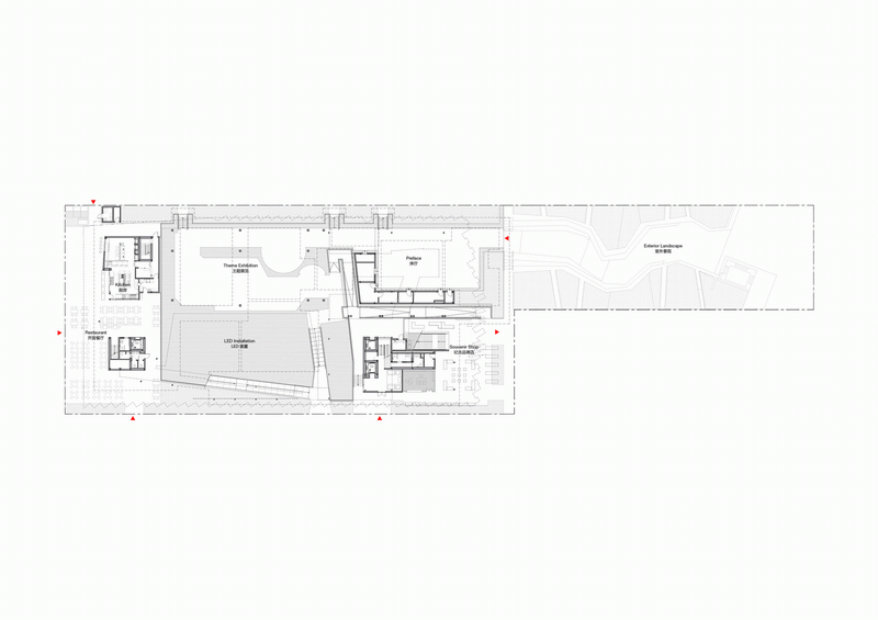
谈起中国馆的设计,设计方之一、北京清尚建筑设计研究院的副院长宋捷称:“最大特点是艺术性强。同时,新颖的建筑形式和创新的建筑材料也提高了中国馆的表现力。设计理念、创意都来自清华大学美术学院的艺术家”。在中国馆前区,有约1000平米的室外园林景观。那是一片具有中国典型农业文明特征的田野。作物和植物密布的田野上,镶嵌着具有舞台功能的先农坛、具有舞台背景功能的故宫红墙、具有疏散功能的北京胡同、具有主通道功能的意象江河等。这些景观元素与群山型的建筑相呼应,呈现出一片壮阔的中国大地景观。

米兰世博会中国馆的主建筑正立面,是整个建筑流线最高潮的部分——高耸的胶合木结构屋架,宛如“群山”造型。中国馆的建筑外形提取了传统歇山式屋顶的造型元素,从空中看,如同希望田野上的一片“麦浪”;从正面看,如同自然山水的天际线;从背面看,又象是城市的天际线。设计师以满腔激情,向中国传统的抬梁式木构架屋顶致敬,也为观众提供了可以纪念留影的巨大空间。

ARCHINA 所有平台上发布的项目、招聘、资讯等内容,部分由第三方提供或系统自动收录。资料版权属于第三方,若信息不实或涉及版权问题,需要版权方和第三方沟通,ARCHINA 将配合对接,并在确认无误后删除涉及版权问题的信息,相应的法律责任均由资料提供方承担。


评论


请 [登录] 后评论

关于项目