平面设计师与建筑师合作设计了一所乐园般的医院 | Toormix Studio
阅读:4700 2018-09-12

你一定还记得前不久介绍的位于青岛万象城内的《青岛家盒子儿童早教中心》,一个儿童活动、学习的小天地。

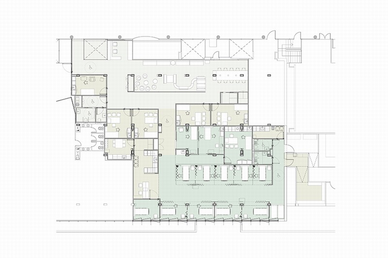
那么我们今天文章所看到的,也是一个如游乐园般的为孩子们服务的设施,然而它并不是什么教育场所,也不是什么娱乐天地,而是一所医院——Children‘s Daytime Oncology and Hematology Center(儿童全天候肿瘤临床与血液研究中心)。



该中心位于巴塞罗那瓦尔德西布伦大学医院(Vall d’Hebron University Hospital ),由Toormix 平面设计工作室与Plasencia Arquitectura 建筑工作室联手设计。项目资金来自不同机构、基金会及个人的捐助。所以我们可以看到,房间内的许多色彩构成、墙面上的图案与标示文字等都有着高度的统一性及艺术美感。



设计师的手法虽然已简约为主,单细看会发现每一处的设计都非常走心。墙壁以及玻璃上常常会出现山、云、等自然元素图形,还有树木、抽象却可爱的动物甚至宇宙飞船等卡通形象图案。慢慢地,仿佛丝毫感觉不出这里是医院,也不会给小孩带来任何恐惧与不安,相反,他们也许会爱上这里。



孩子们来这里就诊们也许并不是什么好事,但至少建筑环境及视觉设计会带给人心理上的些许安慰。


4.4.jpg

9.9.jpg

19.19.png

23.23.jpg


ARCHINA 所有平台上发布的项目、招聘、资讯等内容,部分由第三方提供或系统自动收录。资料版权属于第三方,若信息不实或涉及版权问题,需要版权方和第三方沟通,ARCHINA 将配合对接,并在确认无误后删除涉及版权问题的信息,相应的法律责任均由资料提供方承担。


评论


请 [登录] 后评论

关于项目