法国一间工作室的改造 | NZI Architectes
阅读:2296 2018-09-18

这座建筑坐落在巴黎一座20世纪小镇的院落内,曾经是一间50㎡左右的艺术家工作室,目前被NZI Architectes建筑设计工作室改造成了一所住宅。

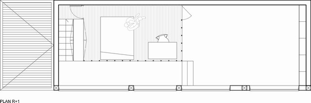
由于房子面积不大,内部空间分成了三个层次,一部分下沉空间,和一个夹层玻璃屋。玻璃屋作为卧室,通过下方厨房后面的楼梯进入内部。建筑内几乎没有增加任何墙体,一切以尽量将空间释放出来为目的。

墙面保留了原有建筑的原始味道,粗糙缺有质感,外面的小院内布置了许多主人种植的植物,石块铺成的院子地面已被磨得光滑圆润,充满了岁月的痕迹。


ARCHINA 所有平台上发布的项目、招聘、资讯等内容,部分由第三方提供或系统自动收录。资料版权属于第三方,若信息不实或涉及版权问题,需要版权方和第三方沟通,ARCHINA 将配合对接,并在确认无误后删除涉及版权问题的信息,相应的法律责任均由资料提供方承担。


评论


请 [登录] 后评论

关于项目