墨尔本Mullet住宅 | March Studio
阅读:2683 2018-09-18

Mullet住宅(Mullet House)是对一座位于澳大利亚墨尔本郊区独立住宅的扩展,负责设计的March Studio工作室以设计了一系列精品商店而著称。

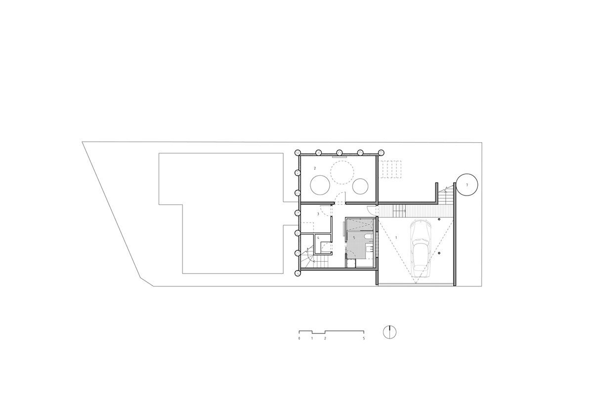
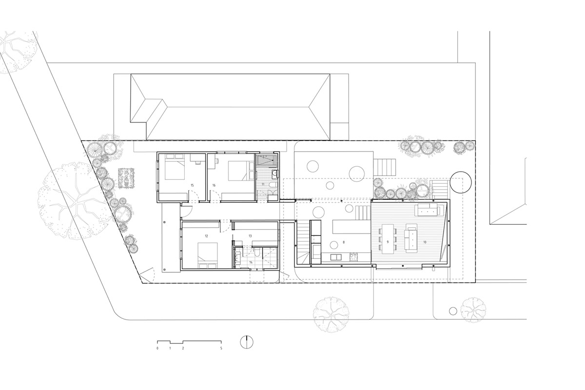
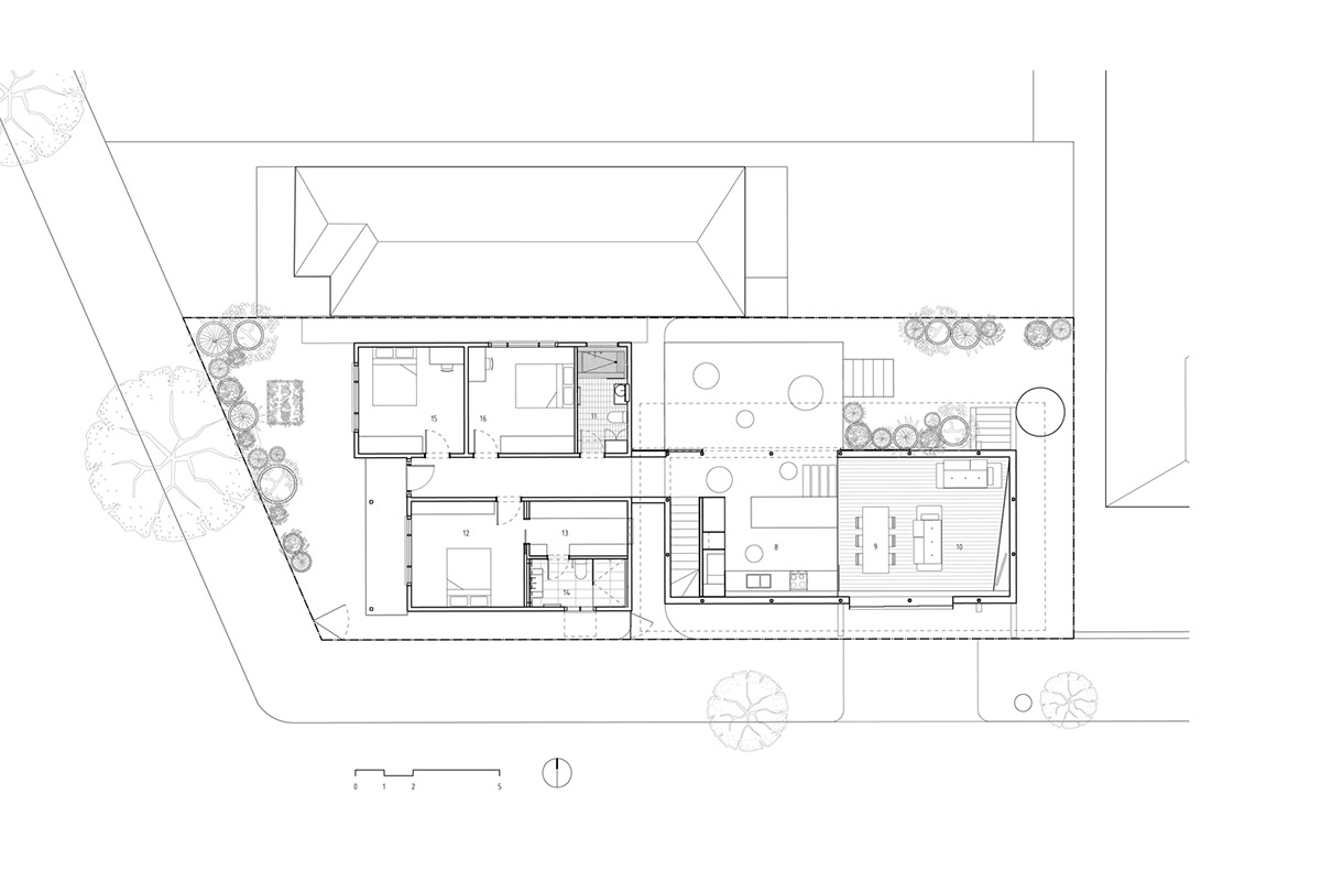
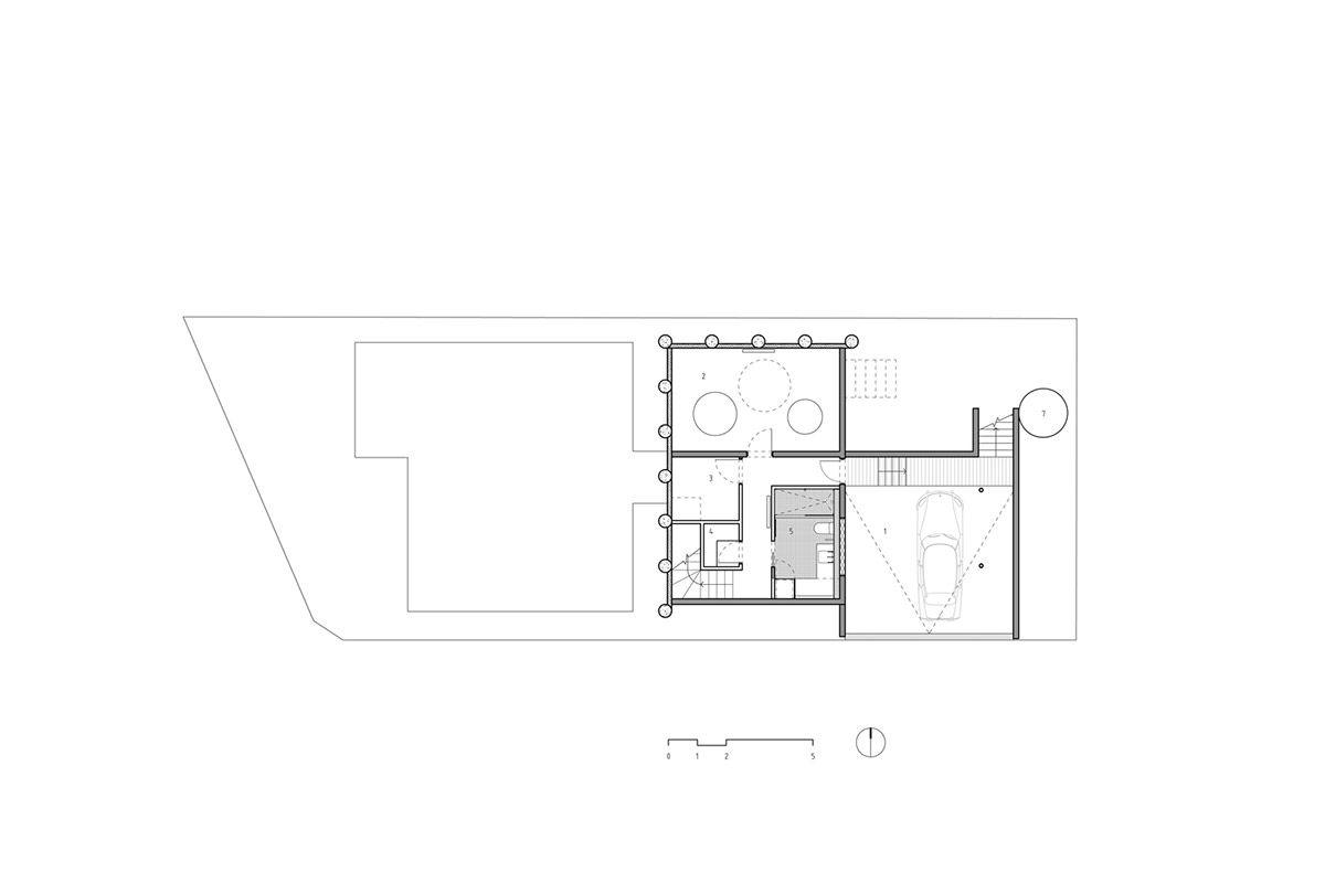
角度扭曲的屋顶成为Mullet住宅的一大特色。住宅的新建部分将原有房子的面积扩大了一倍。对于原有建筑,March Studio工作室只保留了爱德华时期的立面,内部空间被重新规划成只容纳卧室和卫生间的布局。

新建部分为两层,首层局部埋在地下,容纳了车库与活动室。有趣的是分割一层与二层的地板上开设了许多圆形的洞,并安装上钢化玻璃,使得地下与地上得以连通。二层翘起的屋顶让房间获得了更多的采光,轻盈而通透成为这座建筑的明显气质。


ARCHINA 所有平台上发布的项目、招聘、资讯等内容,部分由第三方提供或系统自动收录。资料版权属于第三方,若信息不实或涉及版权问题,需要版权方和第三方沟通,ARCHINA 将配合对接,并在确认无误后删除涉及版权问题的信息,相应的法律责任均由资料提供方承担。


评论


请 [登录] 后评论

关于项目