
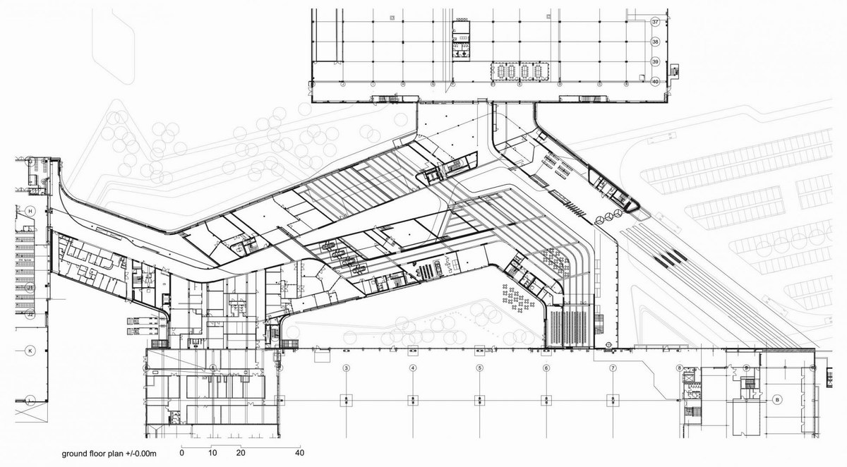
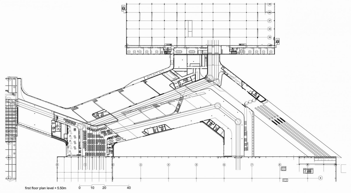
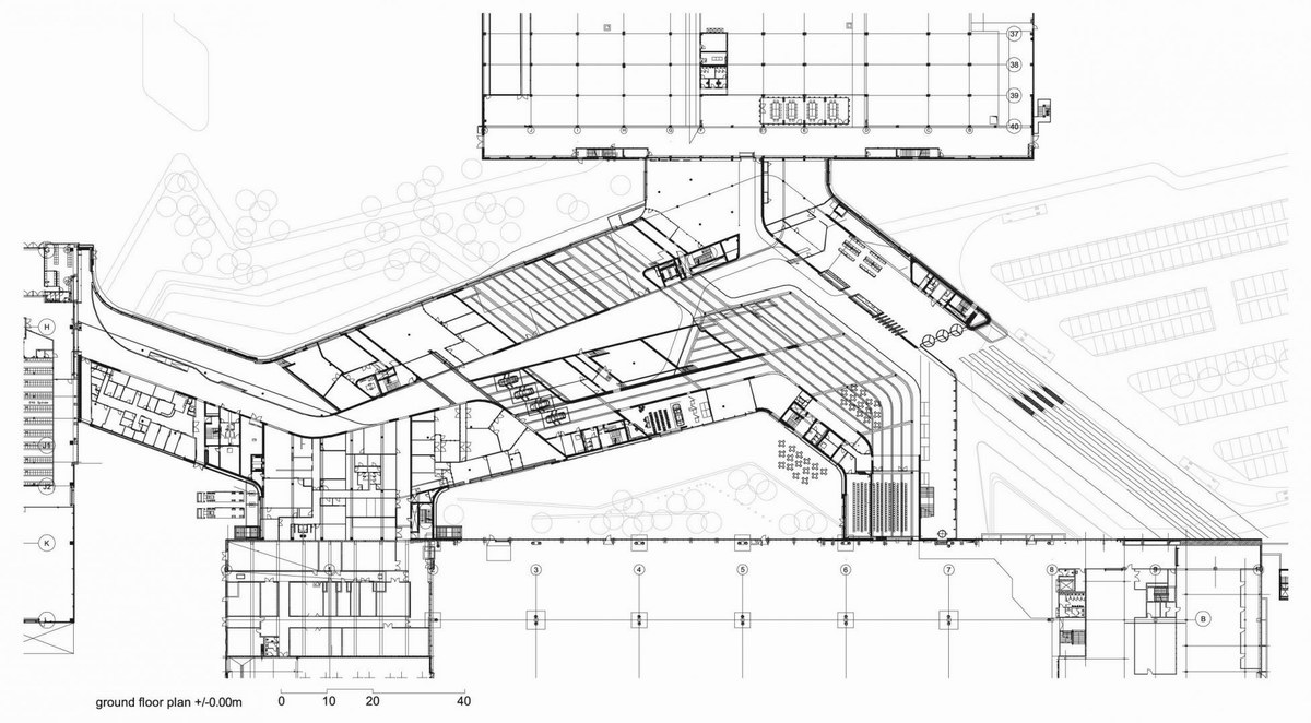
2005年德国莱比锡,宝马汽车公司中央工厂(BMW Central Building)落成。这是扎哈·哈迪德(Zaha Hadid)最具颠覆性的建筑工程之一,位于宝马综合工厂中的这块建筑充当通道的作用,将办公中心与生产大楼连接了起来,其外部呈现了奇异的对角线支撑结构,但真正令人惊讶的部分还是在这座大楼里边。
与一般所见的传统工厂不同,扎哈·哈迪德(Zaha Hadid)的设计更像是一座汽车博物馆,一束束光柱透过高耸的玻璃幕墙投射进来,空间充满着动感与活力。开放的工作空间像瀑布一样倾泄而下,浑然天成地充满两层楼的高度。
在办公室和精巧的开放餐厅上空,沐浴在缥渺蓝光中的半成品车身在生产线上缓缓移动。一旦它的移动速度慢了下来,技术人员就能察觉到工厂生产节奏的改变,可以很快找到问题所在。
每星期的质量检查就在工人们去餐厅时必经的广场上进行,一旦有生产不畅发生,工人们很快就能知道。一体性和开放性的结合使不同生产线上的工人、物流工程师和质量专家们经常能不期而遇。克瑙说:“他们的行走路线自然地交织在一起,所以才能经常碰面。他们见面时会说:‘喂,正好遇见你,我有个好主意要跟你聊聊。”这也恰好完成了工厂经理克劳森通过建筑设计来促进团队交流的设想。
评论