[一舍山居]
最近几年,我每年都会有几次,跟家人朋友一起,开很远的车,到没有人烟的地方露营,待一待,或山林田野,或沙漠雪原,什么也不干,就烤串聊天看星星,日子很慢,很慢。

在城市里,人们争分夺秒,时间宝贵。而在这里,不开玩笑,时光就是用来浪费的。我们不会被过多需要去做的事情所纷扰,被时间所能换取的价值而束缚,也许,慢慢“浪费”的过程,我们可以获得更多。

院中的小树还没来得及种上,撒的大麦籽长得倒是很快
这里离京挺近,开车一个来小时吧,不会在路上耽搁太久,可以经常在热闹的城市生活和闲静的隐居生活间摇摆。这里环境还成,虽没有极致景色,但世界文化遗产“明十三陵”就在边上,可以发现所谓上风上水的皇陵宝地确有神奇之处,城里雾霾爆表,这里蓝天依旧。


这里不是农家乐,并没有打算体验农家生活,我们还是需要舒适有品质的日子,这里也不是假日酒店,不会被各式各样的休闲项目分心打扰,我们需要自由自在的“浪费”时光,可以喘口气,缓缓神便好 。


这里没有现成的饭菜,而是供应新鲜的绿色食材,我们鼓励家人朋友一起做顿大餐,这个过程比结果要享受的多,一个情感交流的时光,“谦让,包容,热情”等美好的情感和故事渐渐被激发出来。


这里的厨房没有躲在犄角旮旯,更不是通常印象里的脏乱差形象,而是充满阳光的,像舞台一样,全部开放,朝院子展开。其中操作台也脱离了墙壁,人们不仅可以面对面的围拢在一起,也使得大厨可以站在舞台中央,面朝家人,光鲜的享受羡慕和赞美。而高窗框入的远山,也给这出戏添了几分悠然的诗意。

这里没有标准的酒店客房,而是5个完全不同的独院套房,有的面山,有的近水,有圆有方,像几个性格不同的大玩具,散落在高台上。人们每次来都可以尝试不同的体验。

在这里,并没有宏大叙事的建筑空间,也没有昂贵繁复的材料做法,就是北方农村常见的砖和木,我们只是进行了一些尺度和形式的调整,以及种植屋面爬墙植物等让建筑或退化或异化的手段,使人和光和风,和山和水的体会更真切些,希望会形成舒缓朴素温和的空间氛围,人们生活在这里并没有那么多目的性,可能感受到的东西反而会多一些吧。

没头没尾的,慢慢浪费的时光,不知道会怎样,我们和家人朋友在一起。







基地环境-上风上水的皇陵宝地“明十三陵”旁边

西院活动-照片没有机会表达的场景

东院空间-照片没法全部表达的瞬间

施工过程-由于施工质量的原因清水混凝土的五梁楼板还是最终粉刷了起来

平面图

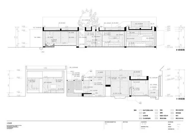
剖面施工图

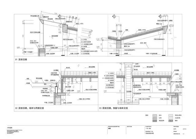
节点施工图
地点:中国,北京
时间:2015-2016
面积:占地660m2,建筑450m2
设计团队:
建筑/景观:大料建筑
建筑专业:刘阳,孙欣晔,陆旭文,郑丽梅,王坤
结构专业:王春磊
电气专业:侯延铭
暖通专业:郑丽梅
室内硬装:大料建筑+北京日月相辉经贸有限公司
室内软装:北京日月相辉经贸有限公司
摄影:孙海霆
评论