鹿特丹De Rotterdam大楼 | OMA
阅读:9845 2018-09-20

库哈斯 和他的事务所O.M.A.设计的位于荷兰鹿特丹的De Rotterdam大楼是为开发商MAB和OVG地产公司设计的。De Rotterdam大楼将提供16万平方米的可用空间,成为荷兰同类建筑中最大的一座。在经济衰退之时,鹿特丹通过私营企业的力量开始建造这个预算为3.4亿欧元的工程,项目已于今年完工。

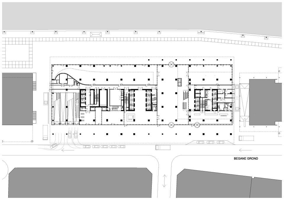
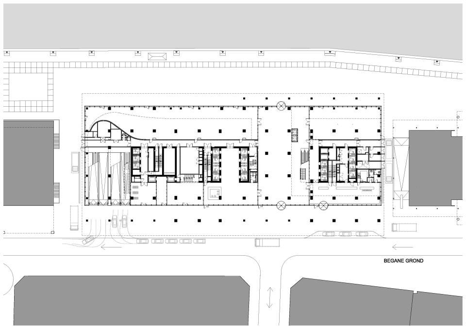
De Rotterdam大楼包括三座相互连接的混合用途大厦,高度为150米,容纳了办公室、公寓、饭店、会议室、体育馆、餐馆和咖啡馆等。鹿特丹的居民和办公室职员都可以利用饭店的健身设施、餐馆和会议室。办公室、饭店和公寓的大堂位于基座上,也为乘坐各种交通工具的人提供了一个交通枢纽。大厦是旧港区Wilhelminapier再开发的一部分,靠近Erasmus桥。

De Rotterdam大楼的体量很简单,几个细长的矩形相互错动叠加起来,十分具有力量感!

 

ARCHINA 所有平台上发布的项目、招聘、资讯等内容,部分由第三方提供或系统自动收录。资料版权属于第三方,若信息不实或涉及版权问题,需要版权方和第三方沟通,ARCHINA 将配合对接,并在确认无误后删除涉及版权问题的信息,相应的法律责任均由资料提供方承担。


评论


请 [登录] 后评论

关于项目