惠普街住宅 | MPR
阅读:3773 2018-09-21

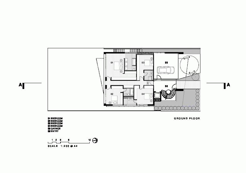
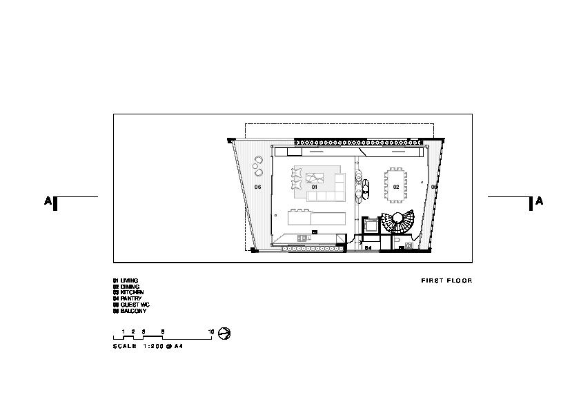
这座充满未来感的住宅(Hewlett Street House)位于澳大利亚勃朗特(Bronte)北翼的海边,面向海滩。MPR的设计着重体现在住宅高处的生活空间,那里拥有更多的阳光以及一流的视野。卧室和休息空间安排在相对私密和安静的建筑中层。底层相对喧闹,所以安排了花园和泳池等设施。

惠普街住宅 Hewlett Street House与周边的建筑区别很大,仿佛是一座天外来物空降于此做简单的能量补给。其实进入住宅后可以发现,这里充满了温馨的生活场景,尤其是顶层起居室外的宽阔大露台,将远处的海景尽收入眼帘。临街处由于地势原因建筑变为两层,从二楼可以看到街上来往的人与车,这种交流对孩子们来讲充满了趣味。

 

 


ARCHINA 所有平台上发布的项目、招聘、资讯等内容,部分由第三方提供或系统自动收录。资料版权属于第三方,若信息不实或涉及版权问题,需要版权方和第三方沟通,ARCHINA 将配合对接,并在确认无误后删除涉及版权问题的信息,相应的法律责任均由资料提供方承担。


评论


请 [登录] 后评论