西班牙berriozar幼儿园 | Javier Larraz
阅读:4958 2018-09-21

这所幼儿园位于西班牙潘普洛纳(Pamplona)附近,一排排多彩的百叶窗围绕在建筑四周,将教室与活动操场围在其中。

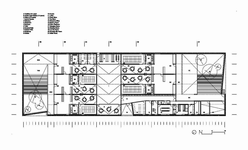
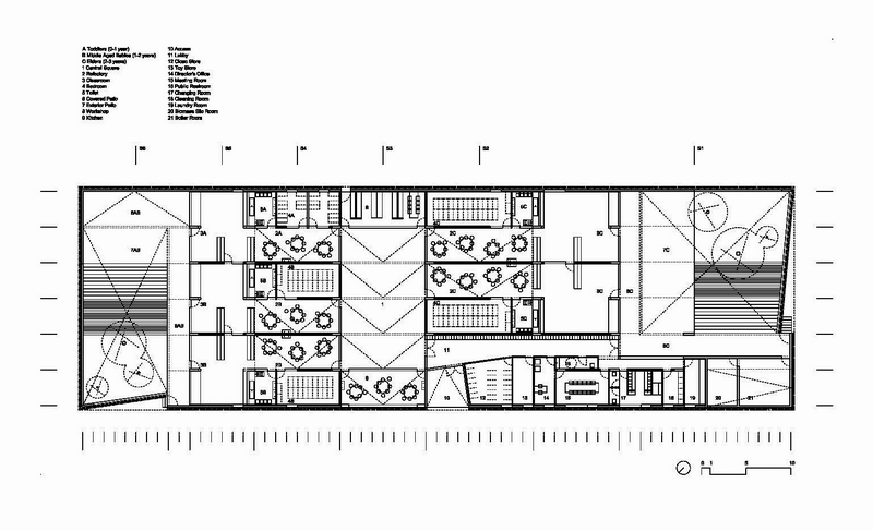
设计团队的灵感来自于美国著名建筑大师路易斯·康(Louis Isadore Kahn)对于学校的理解,康曾说过,“人生的第一所学校应该让他们认识到,在这里不是在学习,而是在玩耍过程中学到知识”。抱着对康的认同观点,该建筑的空间布局在设计中扮演了重要的角色。建筑中安排了一个宽敞的活动大厅,是一个集会,交流和游戏的理想场所,围绕着该空间,其余功能有组织地分布展开。

建筑周遭的彩色百叶窗灵感来自于孩子们画画用的蜡笔,能够起到调节教室内光线的功效,同时屏蔽了来自建筑末端操场的噪声与干扰。孩子们就像花朵,当然需要充足的阳光,于是建筑屋顶高高隆起的天窗为室内带来大量光照,同时也增加了建筑的体型变化增添了趣味性。


ARCHINA 所有平台上发布的项目、招聘、资讯等内容,部分由第三方提供或系统自动收录。资料版权属于第三方,若信息不实或涉及版权问题,需要版权方和第三方沟通,ARCHINA 将配合对接,并在确认无误后删除涉及版权问题的信息,相应的法律责任均由资料提供方承担。


评论


请 [登录] 后评论

关于项目