barwon heads海景住宅 | jackson clements burrows architects
阅读:3197 2018-09-22

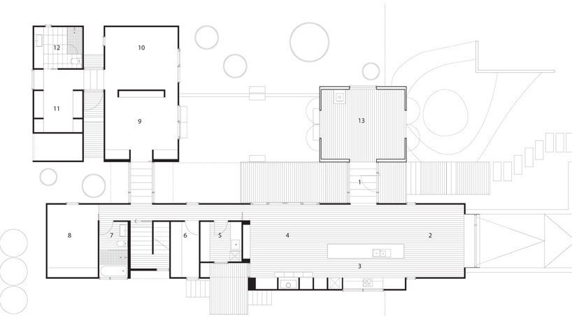
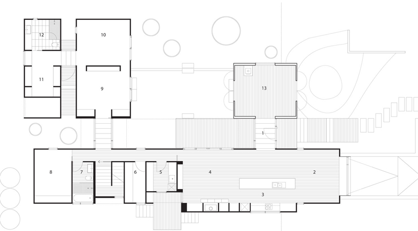
澳大利亚建筑事务所jackson clements burrows architects设计的“海景住宅”位于barwon heads一处滨海地块中,周边是战后沙滩住宅和檐板住宅。

建筑师设计了一座更加持久的、适于居住的建筑来取代原有的小棚屋。在设计上建筑师从当地现存的建筑中找寻灵感,让住宅与周边环境和谐相融,同时还考虑了今后增建和风格改变的可能性。住宅被分成三个相互独立的体量,之间由桥梁连接,北侧庭院阻挡了吹向住宅的盛行风。朝南的住宅被抬升到车库顶端,可以观赏到河面风景,内部包含了各个公共空间——起居室,厨房,书房和客房。西南方向的住宅中则安排了主卧室,套房和休息室等私密空间。穿过户外平台就来到了第三个房间,这里的设计反映了传统乡村小屋的风格,但是外立面却装饰了一层透明波纹板,夜晚将室内的钢梁结构清晰的暴露在外。住宅室内选用了间隔排列的细木条,在保证业主私密性的前提下,创造了室内漫射光环境。半自主的住宅结构为室内引入了自然通风和光照。

 

 

 

ARCHINA 所有平台上发布的项目、招聘、资讯等内容,部分由第三方提供或系统自动收录。资料版权属于第三方,若信息不实或涉及版权问题,需要版权方和第三方沟通,ARCHINA 将配合对接,并在确认无误后删除涉及版权问题的信息,相应的法律责任均由资料提供方承担。


评论


请 [登录] 后评论