哈罗德街住宅 | Jackson Clements Burrows Architects
阅读:3926 2018-09-24

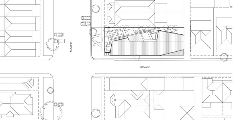
澳大利亚建筑事务所Jackson Clements Burrows Architects设计的哈罗德街住宅(Harold Street Residence)位于地块的一角,
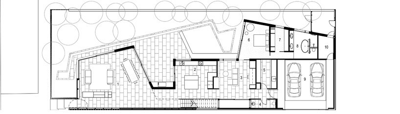
周边全都是维多利亚风格的单层小房子。建筑师用一种当代设计手法来反映基地的特殊条件。居住者会在首层公共空间度过
大部分时间,而二层则是更加私密的卧室和工作区。一个巨大的花园纵向穿过,占据了大半个基地,并从建筑外部连接了各个
功能区块。

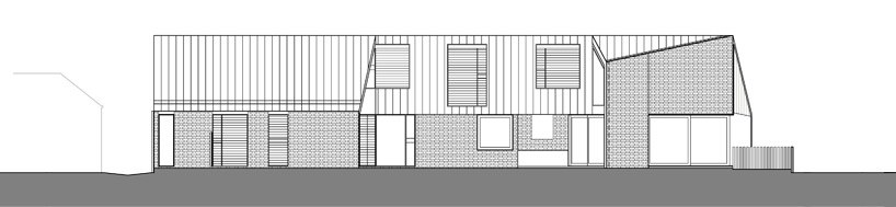
住宅的红砖立面与周围建筑的美学风格相呼应,并创造了一个固定不变的街景。红色砖块砌筑了一个半透明立面,过滤了阳光
同时也促进了室内自然通风。北部的私密区域显示了折叠的平面布局以及室内的材料选择,建筑师用巨大的玻璃窗格,吹拔
空间和锌板屋面来促进垂直通风。曲折的屋顶从高处降到首层入口,又渐渐过渡抬升到二层和户外平台。木构件装饰了天花板,
与硬瓷砖地面形成对比,白色的墙面反射了自然光,让室内空间更加明亮。


ARCHINA 所有平台上发布的项目、招聘、资讯等内容,部分由第三方提供或系统自动收录。资料版权属于第三方,若信息不实或涉及版权问题,需要版权方和第三方沟通,ARCHINA 将配合对接,并在确认无误后删除涉及版权问题的信息,相应的法律责任均由资料提供方承担。


评论


请 [登录] 后评论