
PART 1 | 过去历史
项目位于上海市杨浦区江浦社区,辽源西路打虎山路路口,周边居住氛围浓厚,洋溢着热闹的市井气息。场地前身是上海永久自行车厂,兴盛时期全厂7000名职工,年产340万辆自行车。这块土地,是永久厂乃至周边区域生活的中心。大礼堂的演出,书画比赛,邻里熟识,儿童打闹的场景,是老一代杨浦人的珍贵记忆。

◎原永久自行车厂旧址



◎永久自行车曾兴盛一时,辉煌 40 年,直到九十年代后因种种复杂原因走向低谷:从历史照片可见其旧址大门及场内丰富热闹的员工活动,为我们提供了历史印记与设计依据。

PART 2 | 现状问题
随着旧改拆迁,自行车厂搬离,用地荒废,成千上万的共享单车堆积如山。空置的土地以及周边尚未动迁的老旧街巷夹杂在现代化的高层社区和绿荫街道之间,如同城市肌理的一块疤痕。居民作为城市更替的参与者和见证者,随着生活场所的消失,对于老杨浦的生活场景也仅存于记忆中。


◎场地位于老杨浦低层生活区,夹在高楼林立的新建区域之中,场地被荒废的自行车填满,尚待利用与开发。
居民虽搬进居住条件更优越的高层住宅中,生活的物质条件得以提升,但邻里交往、文化交流、集体性活动的频率远没有之前丰富,老杨浦原有的社区型交往文化逐渐消失。
项目作为社区综合为老服务中心,涵盖文体中心及为老服务功能,是一个机会,也是一次挑战。是否能为周边各个年龄段的居民提供一处多功能性的活动场所,使人们走出家门,在此相聚,相识,交往,交流,找到一种场所的归属感,使老杨浦的社区文化能以新的形式回归,作为一个新的场所记忆得以延续,是设计需要思考的问题。

◎区位分析

◎老杨浦低层生活区与新建的高楼林立,设计希望通过空间肌理的缝补、生活场景的重塑,使建筑及城市空间与人的活动被重新激活。

PART 3 | 设计策略
/ 结合场地特征进行总体空间布局
在方案设计之初发现两个问题:
1)建筑用地呈长条形,建筑的主入口是设置在短边辽源西路一侧还是设置在宽边新建的打虎山路一侧。不同的出入口对应不同的空间组织形式。
2)规划提出建筑限高24米,4586㎡面积要求对场地的压力较大,是整个场地满铺,减小对周围的体量压力;还是主体做足24米限高,留出活动场地。

◎总建筑师宋照青手绘
经过多种形式组合,最终选择将建筑及地库出入口结合形成独立空间,设在北侧辽源西路;保证打虎山路沿街界面的连续性,仅设置后勤入口。在沿街界面做足限高24m的前提下,将庭院空间留在内部,通过入口门廊及内部二层架空的盒子划分出不同的室外活动空间,给周边居民在闹市提供一处静谧而又层次丰富的场所。

◎体块生成动图

◎总平面图

◎未来建成效果图


◎已建成一期鸟瞰图
/ 结合使用需求进行内部功能布局
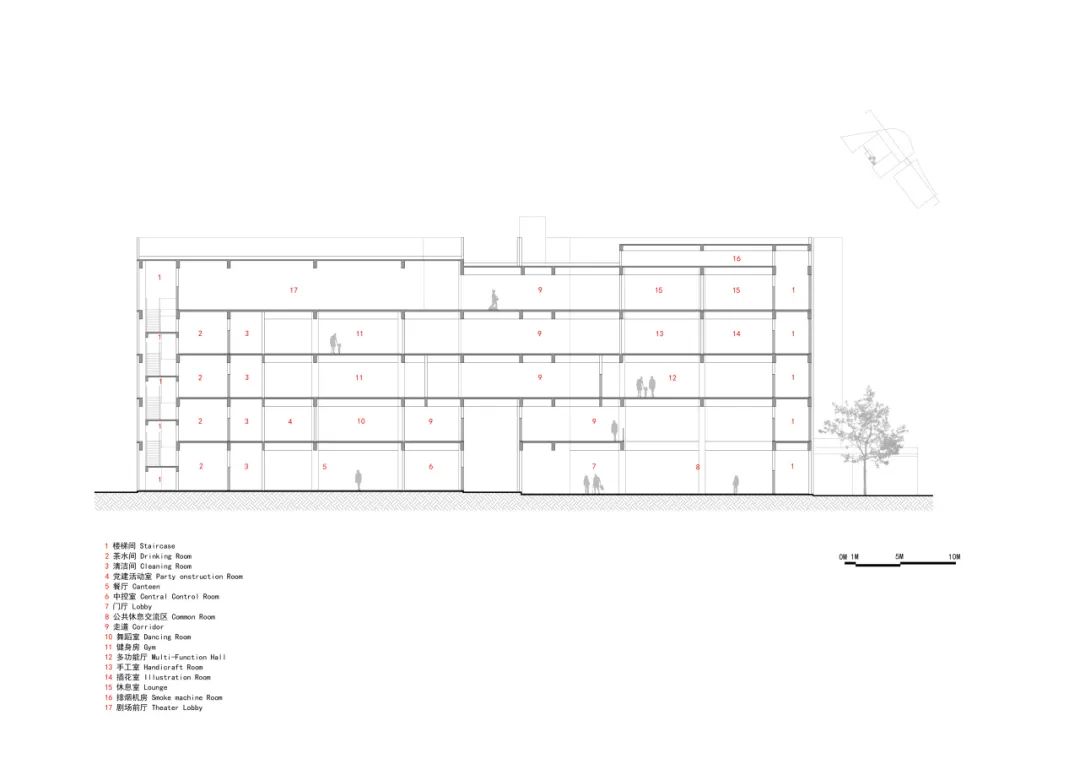
作为一个服务于居民,集文体、为老一体的多功能空间,需要充分满足使用者的需求。经过与社区街道的多次沟通,确定功能空间及面积配比。庭院为青年文创市集、老年人交往活动提供场所。一二层结合休憩功能设置两层通高空间,形成居民的会客厅。二层布置阅览,活动室,满足书法、绘画、舞蹈等多种教学功能。 三四层结合需求布置康复区、健身房、小型多功能厅、文体活动等功能。300座多功能厅采用无柱大空间设置在五层,配套化妆间、贵宾室。将各功能有机结合,营造公共开放属性,希望各年龄的周边居民均能在此找到一处提升自我、交流成长的机会。



◎内立面通高玻璃,使室内与庭院形成内与外,人与空间的对话。二层阅览室架空与庭院之上俯瞰景观与主入口,将功能布置与景观有机结合。

PART 4 | 场所精神
/ 街角空间场景的重塑
结合新的功能需求进行生活场景的营造,通过居民的参与激活原本沉寂的空间,形成新与旧空间、记忆的对话,使场所精神以新的形式延续。设计通过弧形体量展开,塑造街道空间的连续性,消解新老建筑的对峙感。人行道旁的梧桐树原位保留,使五层的建筑低调隐藏在绿荫之后。三至五层错动的反向弧线造型与主体建筑相切,如同从主体延伸出的浪花,带来丰富的光影化解建筑体量,塑造转角空间的识别性。沿街面将窗户设置于窄边侧,使多功能厅、文体活动室等使用性空间与街道的喧闹适度相隔。浅米色的人造洞石与周边老公房米黄色涂料色调协调统一,又不失雅致。


◎立面上错动的弧线造型即化解体量与老街道融合,又在喧闹市井中营造出建筑的识别性。
凯文·林奇在《城市意向》中写道,“节点空间往往是战略性的焦点,帮助观察者感知空间。”[2]在街道底层空间的营造上,通过城市转角广场的设置,为市民的停留驻足和社交活动提供可能,使街道不再只是匆忙走过通过的路径,而是成为日常活动的空间载体。与城市转角广场结合,形成内与外的空间对话、建筑与人的行为互动,使街道场景得以重塑。



◎二层曲线形露台及一层内退的弧形玻璃,营造视觉的变化,缓和相对拥挤的路口,内退的转角提供了市民参与互动的场所。
入口空间的营造结合地块形状,通过巨大的三角形雨棚将人行与地库入口融为一体。摒弃传统意义上的大门,半开放的曲线形竖向隔墙通过由窄变宽的方式分隔内外空间,使安静的小院与喧嚣市井相互渗透,互为借景。一场大雨,一次日晒,为空间与人的互动创造了可能。



◎雨蓬灰空间及镂空隔墙形成半开放的空间,引导居民进入,探索,共享。
/ 内部空间体验的塑造
五层的建筑主体通过大面玻璃幕墙将庭院的景致引入室内,形成内与外的互动。1-2层8米高的玻璃使两层通高的交流空间的舒适度最大化呈现。四到五层通过悬挑的350mm宽的铝型材造型,错动布置,营造室内外空间体验的差异化。



◎通过内侧大面玻璃形成内与外,庭院景观与公共空间的深度渗透,塑造出公共共享,开放交流的场所感。
架空的盒子横跨于主体与景墙之上,跳色石材通过与沿街石材色彩的差异化处理,引起视觉变化。建筑延伸出一片景观楼梯,在转折平台处如一道景框,延展景深,丰富的空间体验成为儿童嬉戏的场所。一方收纳日光和空气的庭院,让人群重新聚集,生活的舞台剧在此上演。



◎庭院中景墙与楼梯构造出正对庭院的舞台空间,在场所中启发更多的活动与交流。
设计从居民的需求出发,通过多种功能空间的组织、场景的重塑,希望各个年龄的居民均能在此找到归属感,使老杨浦邻里交往、文化交流的记忆以新的形式延续。建筑和生活都不是一蹴而就,设计提供一个生活舞台,为不同行为的发生提供可能,真实的生活场景和被留存的场所记忆需要每一个在地的居民演绎与感受。


◎浦江文体中心是老杨浦场所记忆的灯塔,激活并延续着市民活动与生活的回忆;它温柔的融进了喧闹的市井,也将再次创造人群关于这片场所新的记忆。

技术图纸

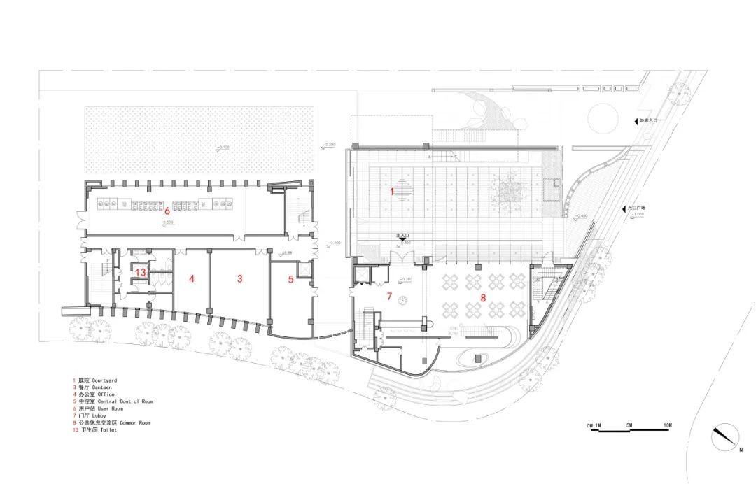
◎一层平面图

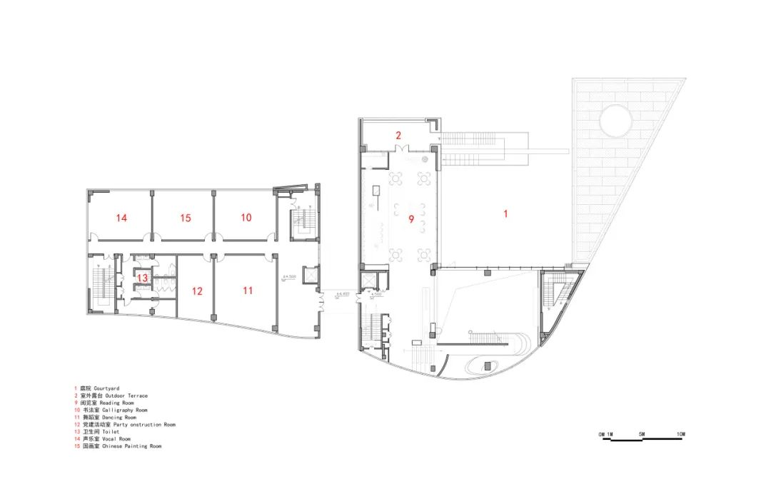
◎二层平面图

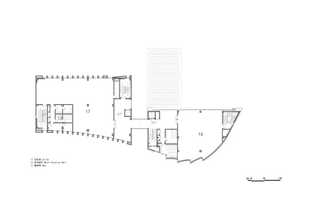
◎三层平面图

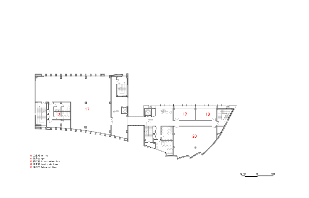
◎四层平面图

◎五层平面图

◎东立面

◎西立面

◎南立面

◎北立面

◎1-1剖面

◎2-2剖面

◎3-3剖面

◎墙身大样1

◎墙身大样2

工程档案
项目名称 | 上海市杨浦区江浦社区文体中心
项目位置 | 上海市杨浦区打虎山路辽源西路路口
项目功能 | 文体中心
建筑面积 | 4586㎡(一期1850㎡ )
业主单位 | 上海保利城市发展有限公司
设计单位 | 上海日清建筑设计有限公司
总建筑师 | 宋照青
设计团队 | 蔡兢凯 郭丹 刘悦怡 王玉戈 吴旻琦 闫雷 吴明
景观设计 | 上海日清景观设计有限公司
施工图设计 | 上海中房建筑设计有限公司
幕墙设计 | 浙江中南建设集团有限公司
室内设计 | 广州尚逸装饰设计有限公司
设计时间 | 2019年4月
竣工时间 | 2020年11月
专业摄影 | 山间影像
评论