上海市静安区巨鹿路675号(原刘吉生宅)保护工程 | 华建集团历史建筑保护设计院
阅读:2451 2024-04-16



历·史·建·筑·保·护·设·计·院   / 新作

以爱与美之名


上海市作家协会

巨鹿路675号“爱神花园”保护工程

上海市作家协会主楼,深嵌于巨鹿路中段的一颗瑰宝(摄影:SFAP)
爱神花园中普叙赫雕像(摄影:SFAP)

01.

传奇建筑师设计最美”爱神“喷泉

1926年,独立开业不久的传奇建筑师拉斯洛·邬达克,接到了爱国实业家刘吉生、陈定贞夫妇的委托,在其购置的巨籁达路675号(今巨鹿路675号)地块建造宅邸。约1927年,住宅开始建造,营造商为与邬达克多有合作的陶馥记营造厂。至迟到1929年6月,主体建筑已落成,刘家开始在此居住。

巨鹿路675号初始设计图纸的图签,可确认设计者为邬达克,项目为刘吉生住宅,设计建造时间涵盖了1926年1月17日至1927年1月18日

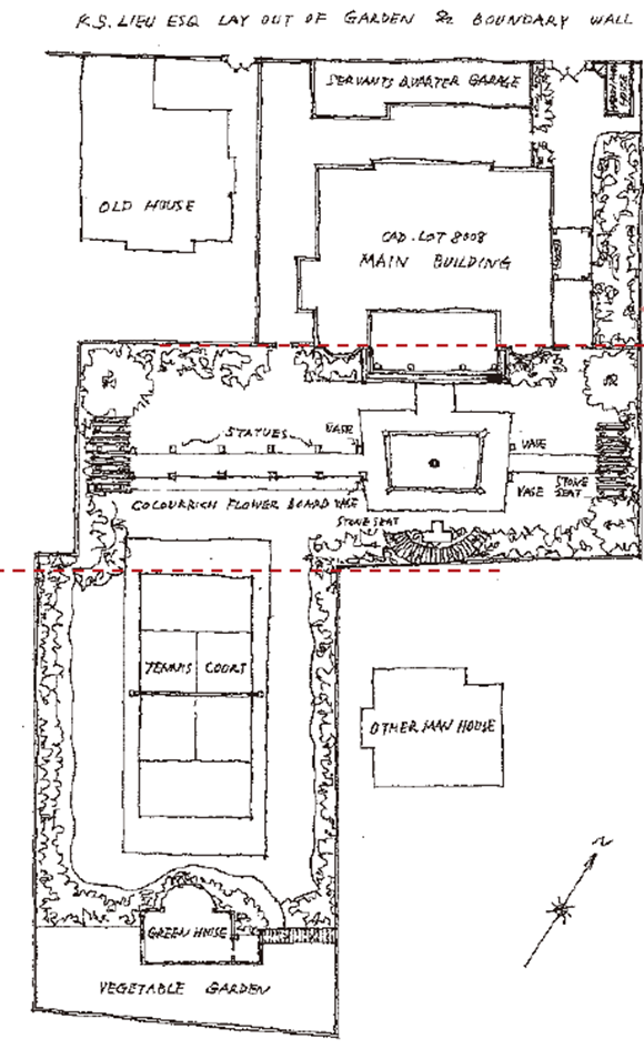
占地四千余平方米的不规整的院落被邬达克划分成了几个功能不同的区域,使之适应丰富的需求,又各自具有完整的形状,与文艺复兴风格的建筑相匹配。院落北部是入口和建筑区,最北侧沿路处为二层仆人房与车库,向南便是主楼。院落中部是喷泉花园,喷泉向东西向延伸出道路,通往两侧的方形石椅。院落南部是网球场,以及花房和菜园。

初始设计总平面图
(来源:华霞虹,乔争月,《上海邬达克建筑地图》)

据称,主喷泉中心的这尊雕塑,是邬达克自己出资,在意大利定制送给刘吉生夫妇的,雕塑主题为希腊神话中,希腊公主普绪赫身披薄纱出浴的场景。整座花园住宅,因其花园中心喷泉的普绪赫雕像和原房主刘吉生、陈定贞夫妇的爱情故事,而被俗称为“爱神花园”。

建设中的“爱神花园”历史影像,其时喷泉中心女神雕像仍未运抵上海
修缮完成后的南立面,普绪赫女神仍静静回望这座宅邸(摄影:SFAP)

宅邸主楼朝向花园的正立面是严谨的文艺复兴风格构图,造型对称均衡,设有宽敞的通高两层门廊,门廊饰有颀长的水刷石制爱奥尼柱式。南面二层柱间为弧形阳台,铁艺花饰栏杆轻盈雅致。一二层外立面多以饰面砖等地方材料作外立面装饰,三层则采用白色仿石涂料饰面。二层挑檐下有齿形带饰,三层檐口则为深色木梁装饰,庄重而不失灵动。

刘吉生二女儿刘莲芝的《培成女学校级刊》1935 年毕业纪念册,有她和姐妹们在该住宅草坪活动的照片。

严谨的文艺复兴风格立面,门廊由颀长的爱奥尼柱式支撑,仿英式砌法的拼色饰面砖、纤巧的花饰栏杆共同组成外立面的典型视觉印象。(摄影:SFAP)

建筑底层为社交空间,设有弧形楼梯、拼色木地板、黑白格大理石地坪、花饰顶棚等,富丽堂皇;二、三层为主人居住空间,二层及三层居住空间墙面及顶面均饰有纤巧花饰,诗意盎然。

主人或来客从车道门廊下车后,首先进入铺有黑白棋盘格大理石地坪的门厅,门厅与饰有通高木护壁的接待厅相连。(摄影:SFAP)
与门厅相连的接待厅,通高柚木色木护壁结合长条凸窗的空间设置,沉稳明亮。(摄影:SFAP)
接待厅的另一扇门通向首层空间的核心:大宴会厅。这个华丽的大厅朝向花园开了三扇高大的拱门,优雅的喷泉景象一览无余。(摄影:SFAP)

大厅西面为长桌餐厅,仿十字拱的木质天花以金色的丰饶之角装饰,典雅而华贵。(摄影:SFAP)

主人回家时,经由门厅走上恢弘的主楼梯,便可抵达二三层的生活空间。(摄影:许一凡)
从二层过厅回望主楼梯,水晶吊灯从梯井中盘旋而下,轻盈优雅。(摄影:SFAP)

这栋据传当时花费二十万银元的花园住宅代表作,处处细节体现女主人陈定贞作为工程主导者所希望呈现的,“家庭和睦,夫妻恩爱”。华丽的旋转楼梯栏板上,嵌有男主人刘吉生(K. S. Lieu)的姓名首字母;而楼梯的彩色玻璃,描绘着指向女主人陈定贞英文名Rose的玫瑰图案。首层餐厅的舞台背景,是象征丰饶与富足的葡萄纹饰彩色玻璃窗。

楼梯平台处的栏板,嵌有男主人姓名的首字母,KSL。(摄影:SFAP)
光影婆娑,日光透过玫瑰图案映射在归家的主楼梯上。(摄影:许一凡)

首层餐厅的凹龛式舞台上,彩绘玻璃窗图案为丰美的葡萄,宴会时,乐手如坐在丰收的葡萄架下演奏。(摄影:SFAP)


02.

巨擘云集的沪上文学圣殿

1953年起,现上海市作家协会的前身,华东作家协会成立后,将这座建筑作为办公地点。夏衍、巴金、丰子恺、柯灵、于伶等文学大师经常出入此地,《收获》、《上海文学》、《萌芽》以及《海上文坛》、《上海文化》等在此编辑的杂志伴随一个时代的青年人成长。

1953年华东作家协会成立时历史照片,来源于上海市作家协会。
1984年文学会议历史照片,来源于上海市作家协会编《巨鹿路675号》


历年使用过程中,一代代作协人悉心守卫这座文学圣殿,主喷泉中心的女神像也曾被花匠伪装包扎,偷偷深藏在花房的暗角,一藏十年,直到女神重见天日。



“独上阁楼,最好是夜里”

2011年,时任《上海文学》编辑的金宇澄偶然进入“弄堂网”论坛,以“独上阁楼“的网名敲出这样一句。自此文章顺势而下, 5个月后,30多页帖子翻过,《繁花》熟透落地。金宇澄写作《繁花》期间的工作所在地,正是巨鹿路675号主楼的三层办公室。十年前,金宇澄借长篇小说《繁花》出版之机,开始绘制与其文字相关的插图,其中描绘有多幅取材于爱神花园场景,并添加一丝异想意味的画作。

金宇澄曾经的办公室,位于三层  (摄影:SFAP)
金宇澄根据其室内场景创作的画作


保护工程完成后的功能使用设想,顺应原始空间格局,兼顾上海市作家协会日常办公、文学活动及文化传播的需求。

此次保护工程后,“爱神花园”作为上海市作家协会大院中的一部分,仍将作为作协的办公场所使用。


03.

拨开历史迷云,还原本真面貌


保护工程进行前,室内大量房间天花、墙面、木饰面、木门样式为历史原物,墙面及顶面均涂刷白色乳胶漆,木饰面涂刷浑水漆,历经多年使用和重新涂刷,原始漆色及油漆品种难以辨认。


藉由历史照片提供的线索,修缮设计中对各空间装饰线条、花饰进行微观漆色分析,以期还原华屋本真面貌。


首层大宴会厅保护工程前照片,及1931年历史照片(The North-China Sunday News Magazine Supplement,1931年2月15日),对比可见,历史照片中装饰线条颜色深于墙面。

大宴会厅墙面装饰漆色分析,可见线条处多次涂刷次序为木质-金漆-乳白油漆


漆色复原后的大宴会厅风貌(摄影:SFAP)

二层南侧有两组布局对称的套房,两组套房共享朝向花园的大露台。各房间装饰各异,或纤巧,或华美。修缮过程中,团队发现原主卧室天花上的小天使原为贴金做法,详细勘察后发现,天花的浅浮雕用天使、玫瑰等象征符号讲述了普绪赫被授予神格,有情人终成眷属的故事。而家具上装饰的花叶浮卷,经细致剥离多次涂刷的油漆面层后显露真容,历近百年栩栩如生。

二层原主卧室修缮前后对比(摄影:SFAP)

二层原主卧室天花经漆色复原分析后,修缮完成的全貌。金色和白色交织的繁复装饰颇具洛可可风格意味,其四角描绘了普绪赫被授花冠,成为众神之一的场景。(摄影:SFAP)

脱漆出白后,木刻花叶、绶带重现其灵动面貌(摄影:宿新宝)

保护工程完工后,二层西南套房整体效果。(摄影:SFAP)


04.

设备巧植,新旧和谐


保护工程中,不仅要确保历史建筑活下去,还要使它有尊严地活起来。该楼原有的壁炉和热水汀系统已经废用,为满足当代生活需求,工程前楼内外多处有飞线加管、设备杂乱堆放等问题。

根据历史图纸及现状测绘显示,现有天花及线脚几乎贴邻木搁栅楼板及混凝土梁布置。在不影响结构安全及保护部位的前提下,室内机电管线借助木搁栅空隙、室内装饰空腔等位置进行隐蔽布置。凡新增设备设施均采用高效设备,凡外露设备点位端口,均注意隐蔽处理,以求机电设施更新和建筑历史风貌相协调。


机电管线隐蔽设计示意

保护工程前后的三楼房间对比,原房间内使用的柜式空调替换为修缮后的多联机系统,隐蔽于固定家具内。(摄影:许一凡)
保护工程前后的二层南侧露台对比,原零散安装的空调等设备统一为集约高效的机电系统,还原历史区域的风貌呈现。(摄影:SFAP)

各房间的壁炉已丧失其原始功用,修缮后成为室内空间特色装饰构件。(摄影:SFAP)


05.

与绿意共存,延续城市记忆


保护工程前,建筑上攀缘植物茂盛,各立面均有不同程度覆盖。据作协工作人员介绍,立面植物种植始于20世纪90年代。尽管攀缘植物存在时间相对于建筑不长,但已形成了相对固定的视觉印象,具有一定的社会情感价值。


修缮前的爬藤植物分布范围

经勘察,南立面西侧攀缘植物为凌霄花,南立面东侧有一株木香花(蔷薇科灌木),其余攀缘植物为爬山虎。爬山虎和凌霄花通过气生根攀缘墙壁,对墙面的腐蚀作用微弱。木香花为蔷薇科灌木,无攀缘器官,本身对墙面没有破坏。

应使用方要求,充分考虑爬山虎等植物的社会情感价值,建筑绿植覆盖的固有印象,设计时考虑修剪上层攀缘植物至首层窗上沿,以便于修缮外立面,检修更换檐沟、雨水管等。建筑使用过程中,需对攀援植物进行定期修剪。

南立面、东立面植物生长走向及修剪后拟保留范围示意

冬季进行植物修剪后,外立面与攀援植物主干共存的情况。摄影:SFAP)

修缮后的“爱神花园”,不仅实现了历史风貌与当代功用的相互结合,更成为了一个展示城市历史、促进文化交流的重要平台。

首层南侧门廊回望普绪赫喷泉,女神出浴于冬日阳光余晖中。(摄影:SFAP)

手绘:吴欢瑜


参考文献和资料来源:
1. 《申报》、《字林西报》、《字林西报行名录》等近代报纸、期刊
2. 上海市城市建设档案馆建筑历史图纸
3. 出版物:郑时龄. 上海近代建筑风格 [M]. 同济大学出版社 , 2020.
4. 上海市城市建设档案局. 上海邬达克建筑[M]. 上海科学普及出版社, 2008.
5. 龚德庆. 静安历史文化图录[M]. 同济大学出版社, 2011.
6. 上海市作家协会编. 上海市作家协会五十年书系 巨鹿路675号[M]. 上海文艺出版社,2004
7. 卢卡·彭切里尼,著.邬达克[M].华霞虹,乔争月,译上海:同济大学出版社,2013
8. 华霞虹. 上海邬达克建筑地图[M]. 同济大学出版社, 2013.
9. 娄承浩, 薛顺生. 上海百年建筑师和营造师[M]. 同济大学出版社, 2011.
10. 姚克明. 巨鹿路675号[J]. 上海房地, 2011(01):59-59.
11. 老上海百业指南:道路机构厂商住宅分布图[M]. 上海社会科学院出版社, 2004.
12. 中国近代建筑史料汇编[M]. 同济大学出版社, 2014.


  项目信息 
项目名称:上海市静安区巨鹿路675号(原刘吉生宅)保护工程
建筑面积:1666㎡
设计/竣工时间:2021年11月/2023年12月
建设单位:上海市作家协会
代建单位:上海第一测量师事务所有限公司
修缮设计单位:华东建筑设计研究院有限公司
修缮施工单位:上海建筑装饰(集团)有限公司
修缮监理单位:上海恒基建设项目工程管理有限公司

  团队成员 
项目总负责人:宿新宝、吴欢瑜、张颖
项目经理:吴欢瑜
建筑专业:吴欢瑜、任宇恒、游钦钦、张颖、周天邑
室内专业:吴欢瑜、任宇恒、游钦钦、林芝(实习)
结构专业:沈忠贤、金瀚、郝泽春、张喆
机电专业:刘晓雯、王华星、陈晓丹、赵枫、任怡旻、王悦、俞嘉青、王宇佳、陈天炜、赵丽花、郑君浩、张晓波、田建强、方飞翔



ARCHINA 所有平台上发布的项目、招聘、资讯等内容,部分由第三方提供或系统自动收录。资料版权属于第三方,若信息不实或涉及版权问题,需要版权方和第三方沟通,ARCHINA 将配合对接,并在确认无误后删除涉及版权问题的信息,相应的法律责任均由资料提供方承担。


评论


请 [登录] 后评论