
仁恒·星源世纪
中国·天津
当生活的节奏被城市的发展所裹挟,身体奔走于繁忙都市,内心却憧憬拥有一处闲适惬意的心灵居所。在那片宁静的角落,仿佛时间也变得缓慢,喧嚣被远离,心灵得以深呼吸。
仁恒深耕天津二十载,以匠心精神融入时代的发展和城市变迁。此次,在天津推出国际社区第二座公园系作品,旨在营造舒适的生活享受。

夜景鸟瞰图©仁恒置业
01
项目区位
Project location
仁恒·星源世纪位于天津市红桥区子牙河畔,紧邻区政府,四周道路通达,区域内人文氛围浓厚。项目用地狭小,形状不规则,外部条件复杂。设计过程中需充分考虑空间的有效利用及整体的美观性,最大化地发挥有限土地的优势,同时融入周边环境,提升居民的居住体验。

区位分析图
02
规划布局
Planning layout
整体规划袭新加坡花园城市的设计理念,主张对外延揽公园,对内营造园景,以现代极简美学打造都市时尚住区。在现代建筑规制与东方人居理念完美融合下,构建“大隐于市、高级内敛”且充满仁恒特色的生活场景。

日景鸟瞰图
项目共有6栋24-27层高层,2栋11层小高以及5栋5-7层洋房,另外还有幼儿园和小学,为红桥区政府引入的河西二幼和上海道小学。
空间上因地制宜,前排布置多层建筑,延续了原有城市道路的尺度感受,呼应城市结构;后排则设置高层建筑且视线朝向南侧公园,让住户尽览子牙河的自然风光与城市绿意。

空间布局

沿街透视图


园区内景图
03
生活场景
Living Scene

建筑入口不仅仅是一个界面,更是一个空间场所。仁恒以酒店式标准打造了从入口开始的入户大堂,采用人车分离设计,提升安全性;并在入口区域增设精致的点状水景和绿化空间,营造宜人的环境氛围。

主入口动线分析
进入园区,便看到了“轴线景观,疏朗雅致”景观布局,巧妙融合了酒店的高贵格调与新加坡风情的自然元素。

中心景观鸟瞰图


园区内景图©仁恒置业
景观轴上,现代自然与艺术人文完美融入建筑细节,灵动的水系与园林景观交相辉映,悄然消隐建筑与自然的边界,回归纯粹与自由。


园区内景图©仁恒置业
我们希望通过建筑和景观设计语言去安放无限的生命活力,传递国际化生活理念。同时让社区承载起生活的仪式感和艺术感,营造邻里间更具活力的氛围,并传递一种温暖而紧密的人际关系。

园区内景图©仁恒置业

园区内景图
04
立面秩序
Facade Design
洞察人文的本真内核,项目延续仁恒公园系列,主张全面提升建筑立面品质,落实公建化精细化的建筑细节,体现“国际范儿”产品魅力。

整体建筑风格以大面积的铝板幕墙为主,结合现代造型手法,注重材料与质感的呈现。立面上大量使用玻璃与铝线脚等现代建筑材料,突显出建筑的精致感。色彩方面,选用了深灰色与米白色铝板的配色,整体效果沉稳大气,造型简洁,用材通透,营造出舒适的居住氛围。



园区内景图©仁恒置业
在材料运用上,我们希望通过不同材质的搭配来表现立面的层次感。入户大堂采用干挂石材,外墙面则使用米白色铝板,而建筑的层间板选用深灰色的质感涂料,以此营造出现代简约的整体基调。



设计还特别注重细节的雕琢,通过简化某些复杂的装饰元素,保留其核心精髓,并以金属等现代材料进行展现。采用模具制作工艺,精细体现出现代工业生产的精致感。


05
定制化产品
Type Design
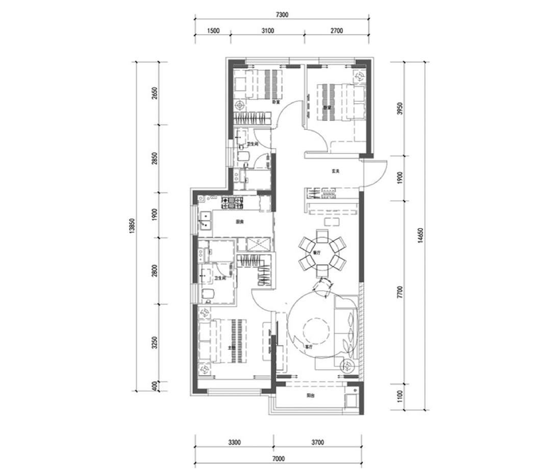
产品设计上,我们主张高品质精细化设计,同时尊重个性化需求,根据总图规划资源分布定制不同户型的高层及小高层、洋房、叠拼作品,为各种居家活动创造不同的可能。

不同面积段的户型产品


样板间实景图©仁恒置业
06
结语
Conclusion
仁恒·星源世纪,是仁恒持续自我更新,不断迭代精进用心奉给居者理想居所,它不仅体现了对高品质生活的深刻理解,也承载着对未来居住需求的前瞻性思考。在这里,每一个细节都经过精雕细琢,每一处设计都融入了创新与舒适。
项目档案
用地面积:41,963.7平方米
建筑面积:36,068.5平方米
建设单位:天津仁恒和美房地产开发有限公司
甲方团队:天津仁恒研发部
建筑设计:上海中房建筑设计有限公司
设计负责人:黄涛
设计团队:卞晖、宋相如、黄诗娴
施工图设计:天津市建筑设计研究院有限公司
景观设计:新加坡JTL加特林景观规划设计有限公司
室内设计:CCD、SLD
建筑摄影:建筑邦
评论