受乐居商贸集团委托,XAA设计的乐居U中心近期正式落成并投入使用。作为佛山一环创新圈核心位置的重要组成之一,乐居U中心以建设成为具有国际影响力及吸引力的科技创新总部为核心,打造大湾区商办地标新门户。

▲乐居U中心
项目位于佛山一环创新带正中心,场地毗邻城市主干道,西临广佛江珠高速,南侧为佛平三路,周边交通方便。但场地限高120米,东侧受现状建筑遮挡较为严重。

▲乐居U中心与周边环境
基于景观视野与城市延展界面的考量,经建筑师多轮讨论推演,设计采用对角线“双塔”布局,将塔楼分别置于场地的东北角和西南角,错开的塔楼让各自视线均不受遮挡的同时形成良好的视线通廊和空间格局,与周边环境和谐共存。

▲设计手稿©冼剑雄
两座塔楼分别退让东侧建筑物及西侧广佛江珠高速,以削减周边环境对建筑的影响,保证通风采光的同时使办公楼获得最大城市展示面。建筑形态上,设计突破常规手法,利用曲线叠合层层退台,自然形成“U”形建筑形态,凸显挺拔的建筑形象,形成城市主干道第一印象,重绘城市天际线。
▲乐居U中心
▲“U”形视线通廊

乐居U中心以多功能业态为核心,两座塔楼分别为总部大楼、多功能办公空间。丰富的退台设计形成多层次立体院落空间,将自然与生态引入到商务办公中,提升和拓展了空间体验。▲层层退台示意
底层裙楼通过围合形态将塔楼串联,并以此打造公共开放的商业空间,衔接城市界面,容纳多样城市生活,激发城市活力。商业裙楼东侧首层架空,以缓解周边建筑带来的压迫感,消解城市界面连续性与实体拥堵感。
架空的首层以三根V型柱支撑悬挑出特色的灰空间,塑造出空间骨感。巨大的V型柱子与结构框架相互配合,形成了一个活跃的开放庭院空间。开放式的空间和独特的几何符号形成强烈的视觉效果,同时制造了话题性,增强了人们和空间的互动性。▲架空层V形柱
V形柱的外包材料采用不锈钢材质,经过层层切割打磨,在灯光和水面的反映投射下,极大地延伸了空间,营造出变幻莫测、未来无限的意境。
▲架空层V形柱
▲V柱剖切示意
围合空间同时形成极具岭南特色的下沉庭院,从而打破空间的空旷感和视觉单一感。设计利用下沉庭院串连不同的商业场景,为民众提供一个多元、复合的商业活动场所。下沉庭院同时适应岭南的气候特点,促进空气的自然流通,防止地面潮气侵入建筑,实现了绿色生态与工业建筑相辅相成的美好愿景。
▲下沉庭院
建筑外立面采用竖向铝制线条的设计元素,利用宽窄变化的竖向线条,营造建筑的韵律感,使整体建筑在视觉上显得更加挺拔与壮观,在不同的时间和光照条件下,竖向线条能够产生丰富的光影变化,增加建筑的动态美感。空中65m处的空中总部大堂,悬挑横向玻璃盒子与立面竖向线条形成强烈的对比,构成建筑富有个性的立面语言,彰显企业独特的企业文化。
▲空中悬挑总部大楼
为响应建筑可持续性和节能的号召,建筑立面采用全LOW-E低辐射玻璃幕墙,外层玻璃有效降低紫外线的辐射量,内层玻璃隔热、保温、节能的性能优越,且透光不透热,降低了空调负荷和室内照明耗电量,不仅丰富了建筑立面同时还满足了自然采光及节能的需求,有效降低建筑能耗。
▲立面细节



▲节点大样
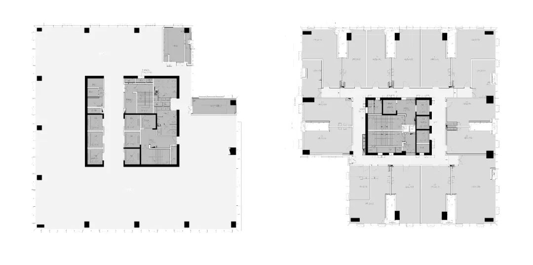
▲1、2号楼标准层平面图

▲立面图
建筑方案团队:林余铭、徐勇、许可为、程路、贾中祺、黎国良、汤逸聪、邹嫚瑜、李佳颖、曹煜星、季瀚文、黄继锋、陈坤、杨超、庄晓彬建筑施工图团队:梁敏全、任伟、吴楚杰、温建发、周雷室内设计:CTG城市组、广州思楼后座装饰设计有限公司
评论