

项目位于浙江之江腹地,紧邻宋城和之江文化艺术中心,东临之浦路,面朝钱塘江。之江,作为浙江的古称,同时也是钱塘江的古称,意为曲折的江水,是吴越文化的发源地之一。该区域因其得天独厚的景观优势和丰富的地域文化底蕴,成为设计师在城市设计中充分挖掘与利用的核心要素。项目旨在将城市形象与商业效益有机结合,探索一种具备地域特色的现代建筑形式。



中国传统文化中,“大门”承载着美好的精神寄托,城市将城门作为地标,并以此命名多个地名。该项目的设计灵感便源于这一文化符号。建筑面朝钱塘江,形成了一个百米见方的“之江门”。这座建筑形象简洁大气,既时尚又创新,成为之江区域的亮点与标志性建筑。设计通过这一建筑形式,重新诠释了传统“大门”的概念,使其在现代城市语境中焕发新生。



在总体布局上,地块呈L形,东侧沿江布置了高层建筑,外立面采用玻璃幕墙,形成“U”字形布局。建筑面朝钱塘江方向架空,形成门洞,使得建筑不仅能够最大限度地欣赏江景,还增强了通透感。从江面角度看,“之江门”的造型与倒影相映成趣。之江门的顶部设计采用斜切手法,门洞四周均为斜切面,配以精细的金属线条,增强了几何感与时尚感,创造出一个新颖的现代建筑形象。此外,高层建筑的南北立面每隔三层设有空中景观平台,为办公环境提供了休息与观景的空间,同时也美化了建筑立面。

地块西侧则布置了多层建筑,高层与多层共同营造出错落有致的天际线。多层建筑的外立面采用浅色石材,与深色幕墙虚实结合,营造出多样的立面层次感。多层建筑的石材开口在大小和比例上富有变化,与规则的玻璃幕墙相互穿插融合,在追求现代感的同时,展现出一种典雅与沉稳的气质。


为增强建筑与人的互动性,项目设计了尺度宜人的内部庭院空间。该庭院不仅提升了整体空间的亲和力,更为使用者提供了近人尺度的建筑体验。通过对空间尺度的精准把握,设计师成功地将现代建筑的冷峻感与地域文化的温暖相结合,创造出一个既有文化深度又具现代美学的建筑作品。




总平面图
@gdd

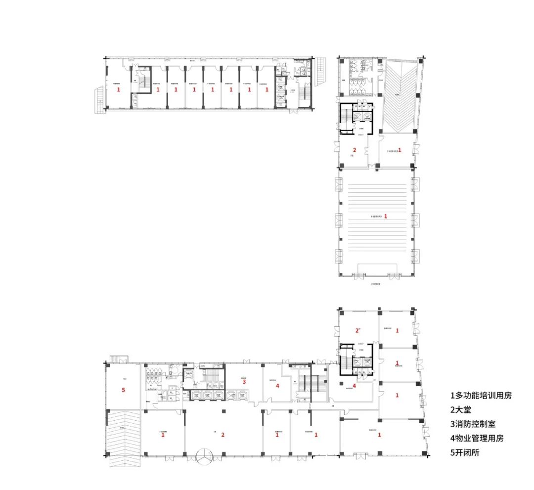
一层平面图
@gdd

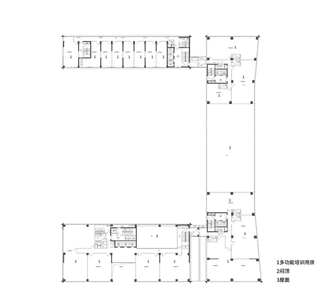
十五层平面图
@gdd

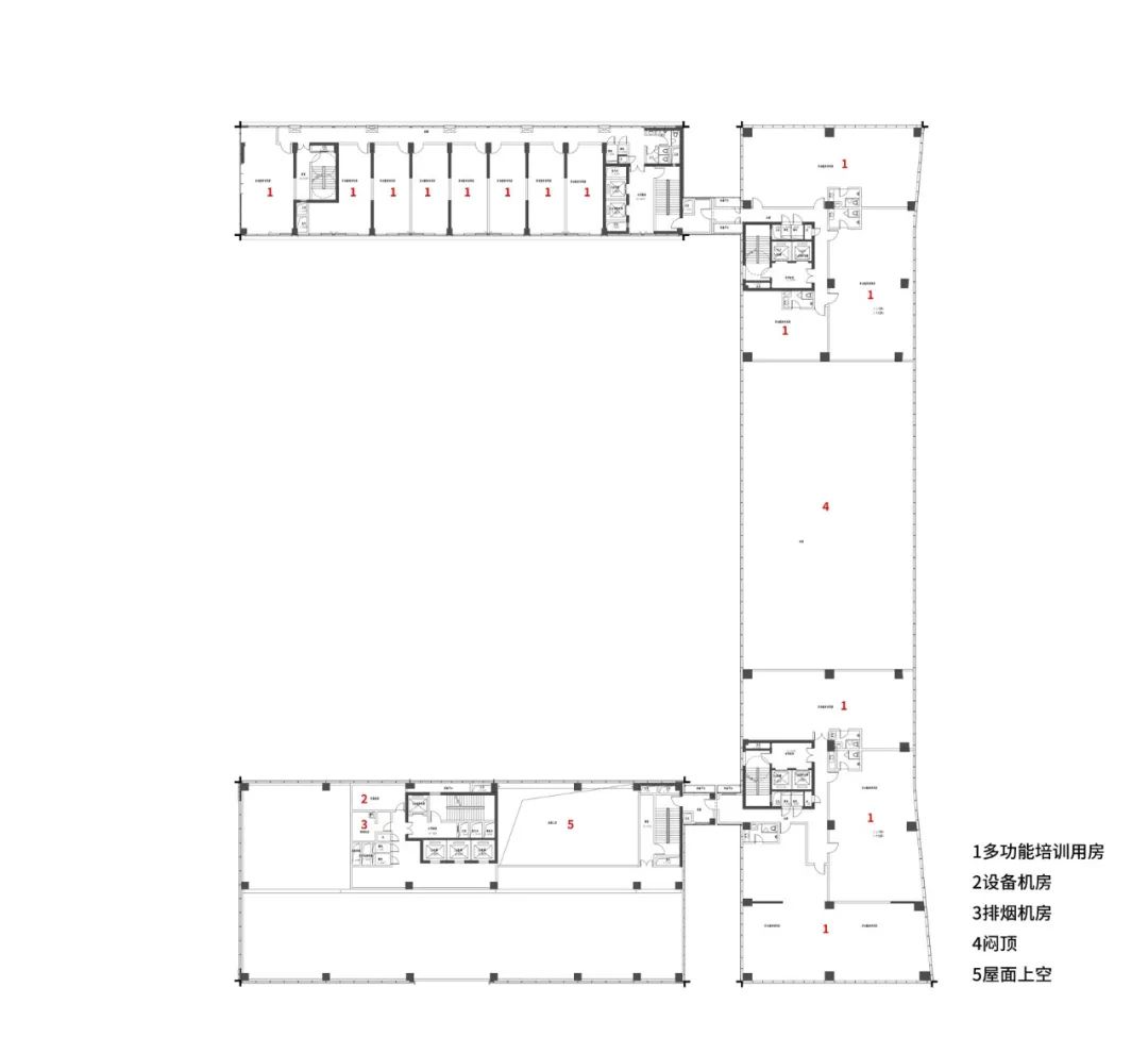
屋顶平面图
@gdd

东立面图
@gdd

南立面图
@gdd
项目名称:杭州之江门
项目地址:杭州市之江度假区
用地面积:25564㎡
建筑面积:92970㎡
设计时间:2020年
设计团队:庄磊、建筑设计六院一所
合作单位:上海水石建筑规划设计股份有限公司
评论