

“学校始于一棵树下,一个不知道自己是老师的人,与另外几个不知道自己是学生的人,讨论他的感悟。”
——路易斯·康
关于学校的起源,路易斯·康早在1960年便表达了他的看法,学校这类以教育为主的公共建筑,其空间性质不是关于走廊多宽、多功能厅多大面积等具体指标,而是人们以什么空间方式聚集在一起,交流和学习。
作为建筑师,我们的关注点不应该仅仅局限在那些具体指标上,要不断地对空间进行探索,这样才能设计出具有生命力的建筑。怀揣着这样的想法,金裕星河丹堤九年一贯制学校就这样出现在了我们眼前。
/01/
场地认知
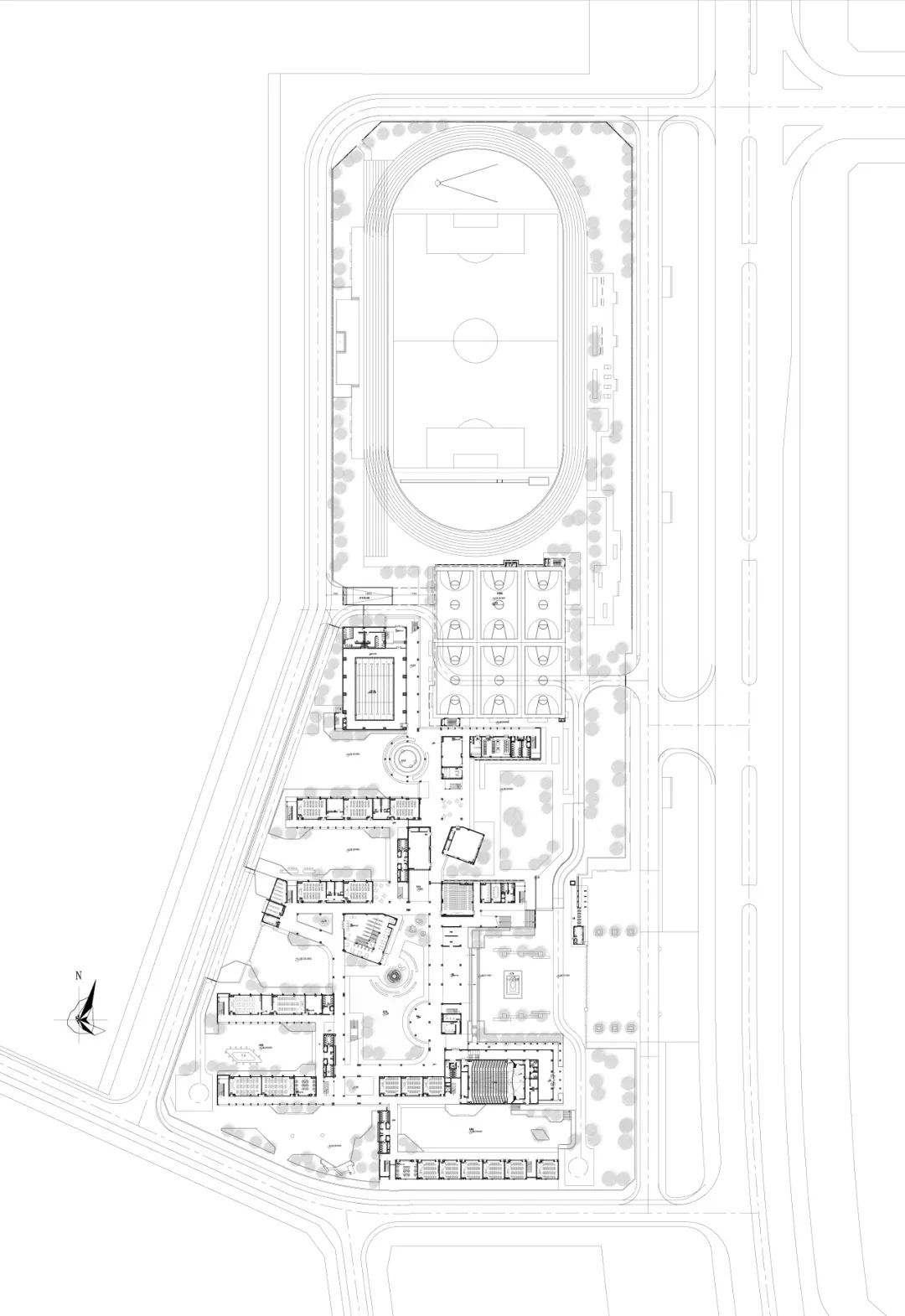
项目位于惠州市惠城区,虽然项目用地较狭长,但63391.45㎡的用地面积和平坦的地势,还是让习惯了市中心里高容、高密校园模式的我们眼前一亮,偌大的场地令人心情舒展,思绪也开始蔓延开来。

教学区与运动区是校园重要的两大组成各部分,在经过多方案对比,对片区规划仔细研究后,结合场地南宽北窄的特点,最终选择将教学区放在南侧,运动场放在北侧的方案,通过一条活力主轴连接,这便形成了基本的图底关系。




/02/
功能重组
普通教室、专业教室、公共教室、图书馆……在归纳分析几大教学功能之后,我们发现普通教室才是学生停留时间最长、与学生关系最为紧密的空间,而专业教室、公共教室、图书馆等空间只是日常教学的延伸与补充。
因此,普通教室被我们描述为被服务空间,其他空间描述为服务空间。被服务空间与服务空间形成基本单元,围绕被服务空间在沿活力主轴在水平方向进行延伸舒展。
/03/
空间重组
功能重组自然的带来空间上的重组,被服务空间占据拥有较好的通风采光的位置,服务空间绕其四周。于是在被服务空间与服务空间之间出现了一些空白地带——院子:有单元自身形态形成的院子,也有单元与单元之间围合形成的院子。当功能按照既定的模式展开,空间便已悄然出现。

我们开始根据学生的日常教学需求给这些院子置入功能,让学习,运动,创造,探索,艺术,休憩等不同功能空间相互渗透,使校园从单一的教学场所演变成多元的体验场所。


△主入口广场

△成长中庭

△运动庭院
/04/
主题空间
单纯的教学单元的组合呈现出了强烈的秩序感,但对于校园空间不乏有些单调。我们将图书馆、报告厅、舞蹈教室、校史展廊等独立空间提取出来,以不规则的形式置入,构建更为丰富和多元的公共空间架构。打破建筑肌理强烈的秩序感,给校园空间增加趣味性与探索性,增进学生与建筑之间的互动体验和感官交流。

△图书馆

△校史展廊

△活力乐园

△报告厅
/05/
连接
功能水平延伸的结果导致流线过长,仅以地面为连接的方式已无法满足单元之间的交流,于是在二层的位置结合常规走廊,我们将其局部进行放大成平台,不仅无缝串联起各个教学单元,还形成了一个近距离的、高效的运动交流空间,学生在课间便能自由的奔跑游戏。

△二层平台鸟瞰
/06/
架空
二层的大平台又为首层增加了许多架空空间,随着平台的延伸,不同的教学单元在首层又一次地被连结在一起,形成连续的自由形态。但我们觉得这样还不够,于是我们取消了面朝主入口处的二层功能用房,在单元交汇处挖出一方小中庭,让阳光肆意的挥洒,让风自由的吹拂。建筑空间因为自然的介入也开始流动起来。

△主入口架空层



△架空空间
/07/
色彩
校园的主色调以白色、黄色、橙色以及深灰色为主,大面积采用黄色和橙色等鲜艳的色彩,旨在激发校园活力,创造一个积极向上,富有创造力的学习和成长空间。




/08/
结语
校园是一切美好的代名词,是希望和梦想的发源地,希望我们所创造出的校园能够很好的成为梦想的培养皿,为梦想的茁壮成长提供营养。

技术图纸

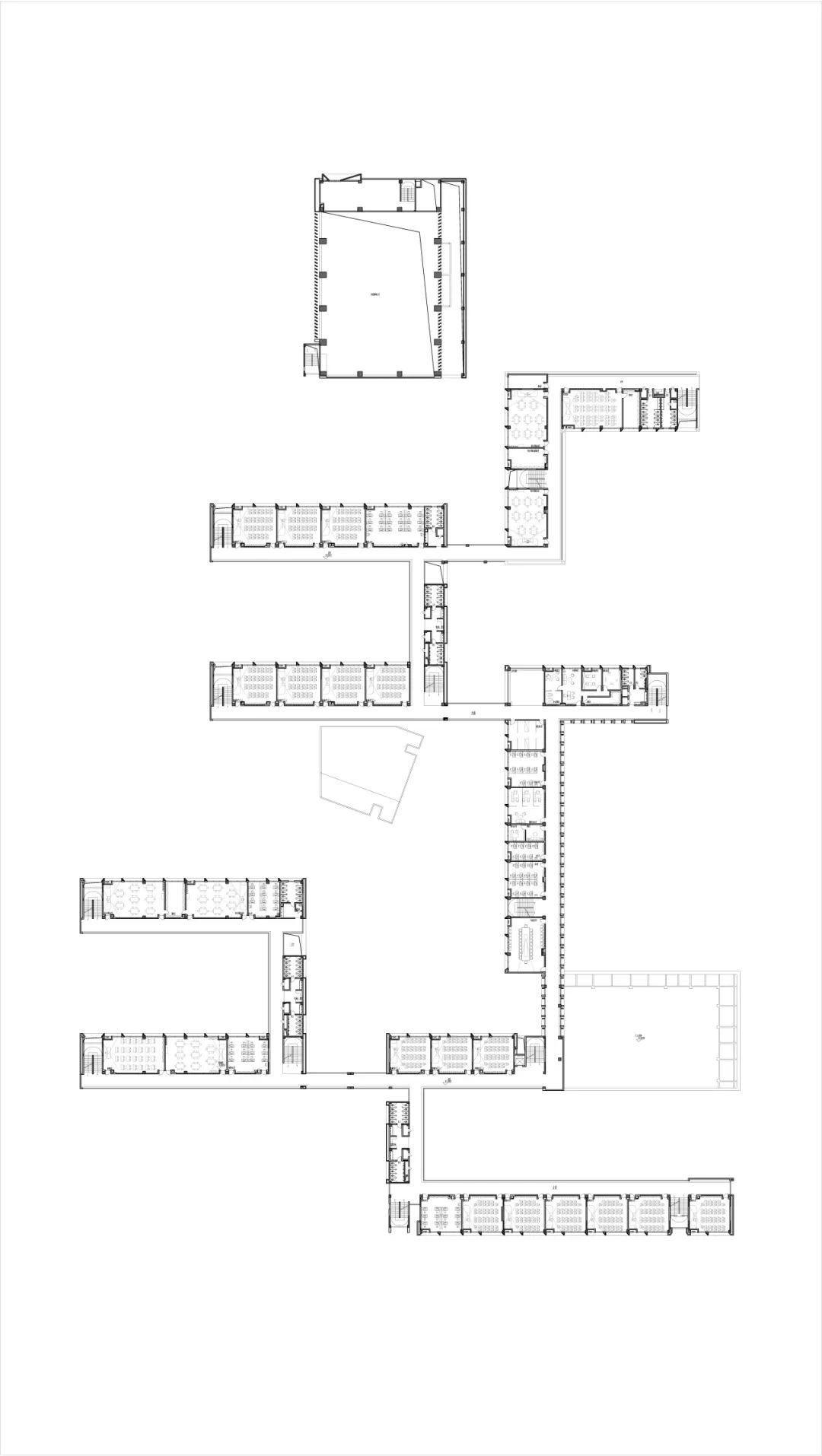
△ 一层平面图

△ 二层平面图

△ 三层平面图

△ 四层平面图
完整项目信息
项目名称:金裕星河丹堤九年一贯制学校
项目地点:广东省惠州市惠城区
项目规模:54班九年一贯制学校
设计时间:2021-2022年
建成时间:2023年
建设单位:惠州金裕房地产开发有限公司
设计单位:深圳市库博建筑设计事务所有限公司
方案团队:邱慧康、范纯清、郭江波、胡高伟、王启洋、冯婷、蒋诚、黄鹏、赖伟文、陈世杰
评论