
▲东北鸟瞰

▲场地现状麦田
“建筑是凝固的音乐”,这一次,河南信息科技学院会堂(以下简称会堂)则尝试在麦田之上将乐章奏响。
根据校园规划,会堂位于东西学术轴东端,紧临实训组团东区西界面的校园主干道,是整个院系教学实训组团东区内唯一的公共建筑。其东南侧的5组院系楼占据了整个东区场地的东界面与南界面,东区内唯一的开阔绿地(现状为麦田)则位于会堂的东北侧,并一直延续至北界面边缘。

▲基地与“线谱”
为了与场地周边积极对话,方案以校园轴线的视觉终点为“轴心”建立的“放射性轴网”成为场地的控制语言。建筑的“扇形”平面应运而生,两直边顺应场地边界,最大周长则全部沿景观展开。而景观设计也顺势而为,进一步将轴线秩序刻印进场地之中。

▲总图关系

▲景观生成图

▲会堂总图
因技术要求,会堂建筑其各部分功能天然具有不同的体量特征。常规来说为了获得更加纯粹的外观,建筑往往会通过一种统一的语言整合功能。但鹤壁会堂却反其道而行之,将不同高度的功能视作一个个“跳动的音符”,并将它们以“扇形线谱”为底组织在一起。

▲功能组织——音符跳动
不加修饰的编排背后,是建筑功能空间的诚实展现:透过北侧山墙玻璃面,外壁类圆形的观众厅清晰可见;南侧山墙面则由2组后台用房与1组前场用房形成秩序;东西轴线端点处的舞台塔台更是突破了扇形屋面,形成绝对的视觉焦点;而扇形屋面的折叠也恰到好处得对应了不同功能的剖面特征。

▲剖面关系

▲南侧山墙面(效果图)

▲南侧山墙面(实体模型)
靠近景观面压低的屋檐,使建筑获得了尺度宜人的室外连廊,也创造了一种只有身处其中才能拥有的体验——一种因为视点被无限压低之后,所产生的延伸感。在这里,麦田无垠,自然无限。

▲室外廊下空间

▲压低屋檐看自然
放射状的平面组织,顺应体量需求的折叠剖面,是会堂乐章的主旋律。而一条由南侧山墙面出发,经由多个不同标高功能体量顶部,穿过扇形屋面,最终落于连廊北端的空中景观廊道,则在充分利用屋檐之下不同高差间富余部分的同时,进一步营造了建筑的公共性、丰富了建筑的体验感。

▲富余空间与空中景观连廊

▲空中景观廊道(实体模型)

▲空中景观廊道起始(实体模型)

▲空中景观廊道夜景
建筑顺应功能体块本身的高度变化形成的折屋顶,是其外部形象的标志。破浪般起伏的金属屋面,宛如天外来客。由门厅进入,未来的科技感过渡为暖色的宜人感,以近人的姿态欢迎师生的到来。进入观众厅,空间色调再一次转变。银白色的墙面机械般展开,再衬以红色座椅,整个厅堂显得现代科幻又不失庄重。由外及内,空间氛围几经转折,正如不断变奏的乐章,大大提升了空间的丰富性。

▲麦田人视点

▲主入口休息大厅

▲观众厅室内

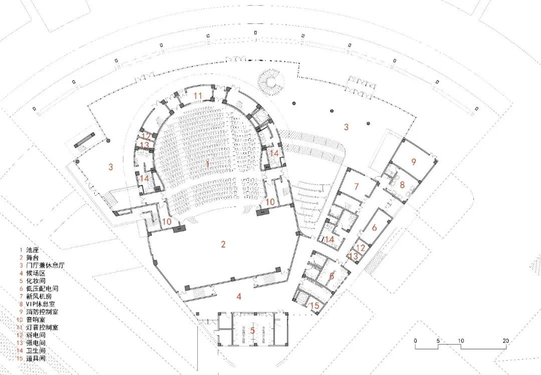
▲一层平面图

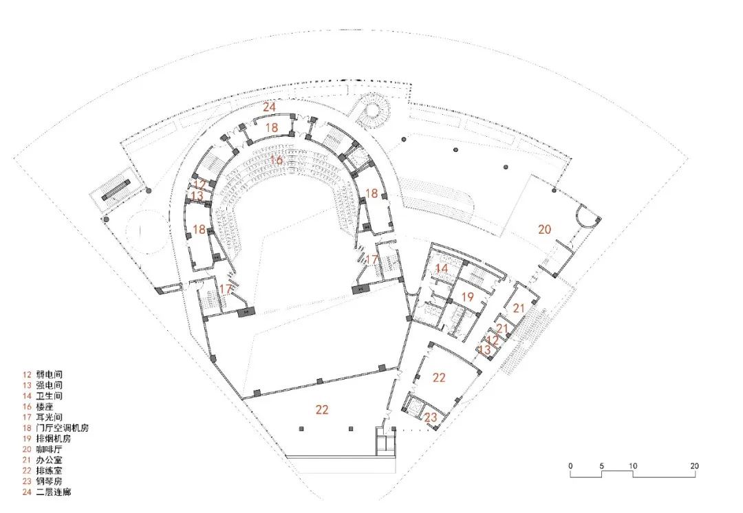
▲二层平面图

▲剖面图

▲施工现场

建设单位:河南信息科技学院筹建处
建设地点:河南省鹤壁市
设计单位:同济大学建筑设计研究院(集团)有限公司
建筑面积:7806.90平方米
设计时间:2022-2023年
竣工时间:在建项目
总负责人:江立敏、张佳
建筑:桂耀国、干云妮、马清怡
结构:吴成万、王祖能、李一松
给排水:唐玉艳、徐钟骏
电气:顾玉辉、罗颜、蔡猛龙、王晓迪
暖通:秦卓欢、禹小明、吴虎彪、张萍
概算:范姊婕、疏孟飞
施工单位:中国建筑第八工程局有限公司
End
评论