项目位于西安东南曲江新城,距主城核心区 9km,紧邻城市快速路,周边汇集产业区、综合公共服务中心、西安植物园等城市资源。街巷是西安悠久历史文化和生活记忆的载体,景龙池、索罗巷、案板街……古城内道路呈棋盘结构,交错有序,整齐划一;古城墙外道路则以环状加放射状的新城规划划分街区。当下高强度、大尺度的不可逆开发趋势让城市与人和生活的关系疏离、冷漠,我们尝试通过设计在曲江印中,将传统亲人的、充满烟火气的街巷尺度及其中的生活再现,在现代社区中唤醒城市记忆,激发新的生活活力。

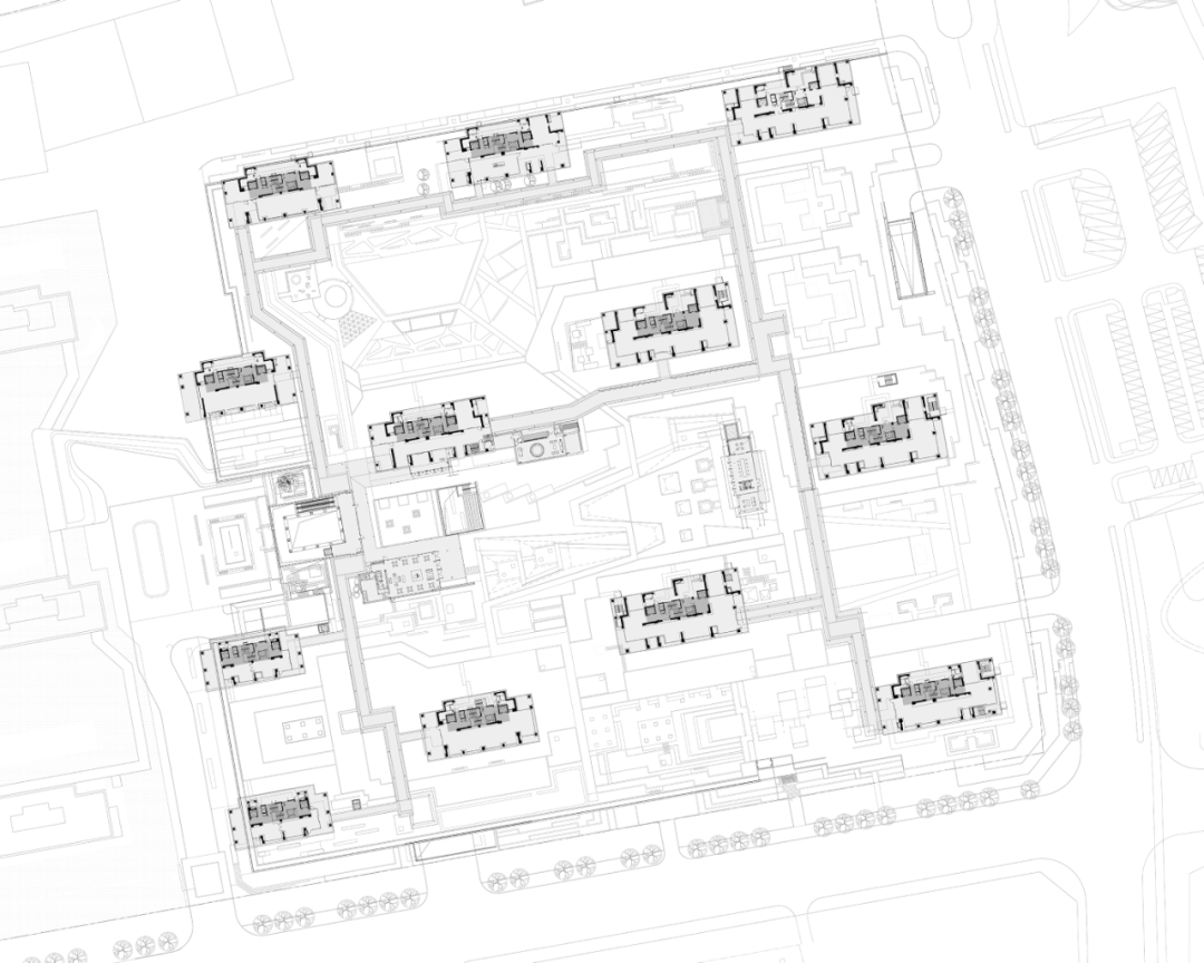
我们将项目定位为 “都市街区式综合社区” ,在注重社区营造的同时也关注社区与城市的过渡、互动关系。设计建立了一条以 “曲江印艺术中心”(点击项目名查看项目推文)为起点的,南北向的与城市相连的开放街巷,与融合公寓、商业、酒店、服务业等不同功能产品,构建介于城市公共与私密住区间的公共空间系统。街巷同时将场地分成两个相对独立的小街区,消解大尺度用地,打造更亲人的社区组团。曲江印艺术中心 ( 点击项目名查看项目推文 )
视频拍摄:shiromio studio 视频剪辑:gad
如何在保持社区公共性与开放性的同时保持居住的私密与品质?我们利用地形高差,在垂直维度对公共与私密分界:将城市商业、社区配套等公共功能置于底层,二层作为住区首层,并架空围合成社区内部的公共花园。
立体维度对公共与私密的区分 摄影:直角建筑摄影场地西、南、北侧均为高层住区,北侧与城市主干道相邻,而东侧朝向西安植物园与城市公共绿地,场地景观方向明确。
设计强调与东侧公园的视觉互动,错动的楼栋布局形成的缝隙,为更多楼栋提供了 “借景、看景” 的有利条件。此外,体块间错落有致的排列与西安大量住区开发方正对称的布局形成差异,让城市住区风貌更多元、灵动。

项目客群定位是年轻高净值人群。针对这个群体对生活体验与全新生活方式追求的倾向,我们的户型设计更注重居住空间中公共活动区的社交场景性和使用可变性。比如让厨房朝向最佳景观位,设计匀质方厅让空间使用有更多可能性……开放的公共街巷、社区共享的宅院花园、私密安全的居住空间,在社区中营造出不同尺度、开合的空间,以满足不同生活诉求,并为场景的发生提供空间。


我们将对品质的关注,融入建筑布局、空间设计、户型创新、立面设计、细节品控等不同尺度、维度的方方面面。
立面设计以石材形成稳定基座,全玻璃幕墙带来挺括的生长感,顶部收缩在强化向上之势的同时减轻了楼栋的视觉重量感。金属遮阳板和幕墙间的金属线条进一步精致并丰富了观者、居者的品质体验,并让住宅有了更多因自然而生的变动。
轻盈的顶部处理 摄影:直角建筑摄影

精致的幕墙细节 摄影:直角建筑摄影

底层与公共空间连接的石材基座 摄影:直角建筑摄影
曲江印项目一期、二期已经建成,伴随街巷、全区的陆续完成,我们期待一个与城市、自然、人相容共生的友好社区。

标准层户型 © gad
评论