
山东大学齐鲁医院急诊综合楼
山东大学齐鲁医院是国家卫生健康委员会委属(管)的三级甲等综合医院,是首批委省共建国家区域医疗中心的牵头方和主体建设单位。项目始建于1890年,位于济南市历下古城保护区,同时作为山东大学附属医院与教学医院,原有的规划布局早已无法满足当下医疗、教学、科研等方面的多重需求。基于这一背景,山东大学齐鲁医院急诊综合楼于2020年启动设计。

▲ 整体鸟瞰
项目涵盖了急诊急救、内科诊疗、影像中心、科研教学及医学实验室等功能,是实现医、教、研融合的医学综合体,总床位数为800张。建筑呈双塔式布局,其中北塔是行政、科研区;南塔作为治疗病区;裙房为示范教学、食堂、急诊急救、影像、重症监护病房(ICU)、手术室等;地下室为车库及附属设备用房。项目建成后将进一步推动山东大学齐鲁医院医、教、研的融合发展,成为全力打造国家区域医疗中心的样板。项目建设用地紧张且地形复杂,容积率高、密度高,同时涉及医院改扩建工程,集多重复杂性与矛盾性于一体。因此,如何通过设计缝补大型医院与城市环境之间的断层,建立友好、和谐的城市界面,使山东大学齐鲁医院这个庞大的医疗综合体融入城市公共生活,是本次设计的难点与挑战。设计团队始终坚持一个设计目标:创造一个与城市共生,且开放、高效、体现人文关怀的医院。

▲ 布局沿街夜景
该项目用地形状近似一个有缺口的三角形,南侧紧邻山东大学趵突泉校区,北侧靠近趵突泉公园和泉城广场,是济南市重要的历史文化空间节点。建设用地面积约为23,800 ㎡,南、北两侧用地的高差约为6 m,建筑限高60 m。另外,项目处于趵突泉泉域汇集区,地下开挖深度受限。在高容积率、低限高、低限深的情况下,本项目通过层层逻辑推导,因地制宜,采用流线型三角形双塔楼布局策略,在双塔之间形成视线通廊,巧妙地避免其对老住院楼造成视线干扰。

流线型裙房造型灵动流畅、简洁而富有变化,具有强烈的水平延展性,形成独特的城市街角形象。首层局部架空,营造出亲和、自然的空间序列,使区域内的街区关系更加自然和谐,有效缓解近人尺度的压迫感。项目实现了医疗功能与城市关系的平衡。
▲ 街角透视

▲ 建筑外观
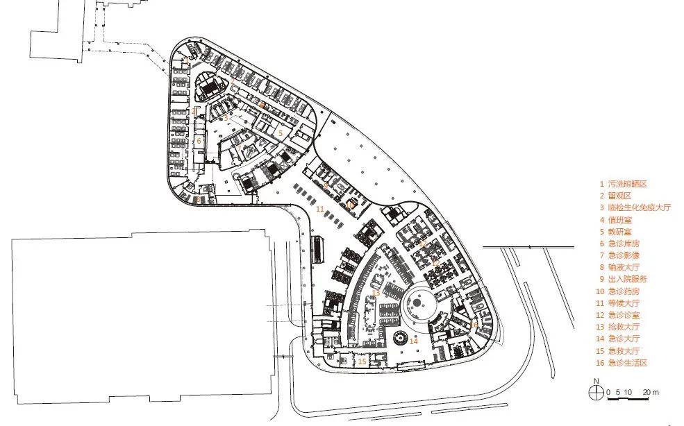
急诊综合楼是集院前急救、院中抢救、急诊手术和重症监护病房于一体的区域性急救中心。急诊急救楼紧邻文化西路,便于救护车通过急救专用入口直接抵达,屋顶设直升机停机坪,垂直串联急救中心、抢救室、手术中心、ICU等科室,保障陆空救援一体化,从而构建快速、高效、全覆盖的急危重症医疗救治体系。不同以往的“共享式介入诊疗中心”理念,介入中心设计通过打造集约式中央岛控制室,将数字减影血管造影(DSA)手术室分列两侧,确保医护人员在中控室就可以看到所有导管室内手术的情况。医护人员可以在此共同讨论和相互支援,确保患者安全。该设计节约了人力成本和时间成本,真正做到了共享、集约、高效。

▲ 科教综合楼
住院部位于医技裙房上部,内设上下直达的医梯,使护理单元与医技板块、急诊板块紧密联系。住院部可高效直达影像中心、手术区等医技区,相关功能间距离更短、效率更高、整体性更强。双护理单元的设置使病区可相对独立,也可共享人力、设备资源,满足按病种设置病房的要求。医梯集中布置,可提高空间使用率。
项目充分利用场地高差,创造了一个双首层的到达体系。急诊急救广场位于场地较高的文化西路一侧,面向城市主干道,识别度高,交通便利。在场地较低的趵突泉南路一侧,项目结合建筑造型,内凹形成港湾式出租车落客接驳区,有序地组织、引导车流,不仅为医护人员、患者、访客等使用者创造了无风雨的接驳环境,还为即停即走的车辆提供了缓冲空间,缓解周边城市交通压力。
▲ 港湾式落客接驳区
设计沿承“城市客厅”的理念,“城市客厅”作为本项目的流通中枢,平层连接接驳区,南、北向串联各部分功能区域,并通过延伸多个空中连廊的方式,与老院区门诊综合楼、妇儿楼、肿瘤中心等建筑无缝衔接,确保新、老院区医疗功能的紧密联系。老院区的广智院建筑群、南关教堂、图书馆等区域,是医护人员和患者休闲放松的好去处,其中空中连廊在某种程度上重新赋能了这一院区的文化空间。
▲ 入口门厅
方案建立了一个垂直生态体系,为医患创造多向度的疗愈空间。南、北双塔之间形成的阳光花园,以及塔内部的两个景观庭院,提高了患者和医护视野范围的绿视率,在医护人员舒缓压力及患者康复身体等方面,均产生积极影响,全方位提升医院的空间品质与人文关怀。
▲ 鸟瞰

▲ 阳光花园
流线型三角形标准平面最大限度利用朝向,其中:南塔标准病区沿三角形外侧朝南向和东北向布置病房,沿着三角形内侧(庭院)布置医护人员的办公室,保证患者、陪护人员、医护人员等人群在就医、陪护、工作时均能享受到自然采光,拥有开阔的视野,并获得积极的空间使用体验;北塔科教区每层均设置共享交流厅,为科研人员提供休憩活动场所,有效促进医院科研技术的发展。
▲ 候诊厅

▲ 缴费大厅
山东大学齐鲁医院急诊综合楼以低矮谦逊的姿态(犹如两个山谷),创造出一个治愈花园。未来,随着城市更新和人口结构的变化,山东大学齐鲁医院作为区域医疗中心,其医疗综合体的内部必将经历灵活、动态的改建过程。新建的急诊综合楼将在满足医疗需求的基础上,以开放、和谐的姿态融入城市公共生活。

▲ 总平面图




▲ 剖面图
项目类型:医疗建筑
建设地点:山东省济南市
手术室数量:9间DSA手术室,5间普通手术室,1间杂交手术室设计单位:MENG本原医疗建筑设计研究院(深圳市建筑设计研究总院有限公司)方案设计团队:符永贤、余妙玲、刘瑞平、汤进顺、李静、黄章恩、郑晓慧、陈颖航、高文安、苏伟东、徐千尧、李方顺、舒石合作单位:山东省建筑设计研究院有限公司第三设计分院
评论