
∆ 建筑实景全貌
山东黄金国际广场
Shandong Gold Plaza
前言
悉地国际与济南这座城市有着一次又一次的缘分,从2005年设计中标的“东荷西柳”济南奥体中心、2010年设计完成的中国重汽(济南)科研基地、2014年设计的济南汉峪金融商务中心区及济南第一高楼云鼎大厦……近二十年里,这些地标建筑见证着济南在不同历史时期的城市发展的卓越成就。
如今,山东黄金国际广场的建成使用,是一次又一历史缘分的延续,也是用设计打开未来城市想象的重要起点。
山东黄金国际广场位于济南奥体中心西侧,与东侧的济南汉峪金融商务中心区遥相呼应,是济南城市新一代高层商业建筑的代表作品。CCDI的设计方案出品于2015年,整座建筑于2021年完成土建工程,2022年正式开业使用。
16万平方米建筑面积的体量、200米“不高不低”的建筑高度——在普遍追求效率化和标准化的时代,这座建筑很容易“一不小心”就退缩为方正盒子的标准范式,加入项目附近诸如华润万象城、中弘广场之类体量相当的“经济适用型甲级写字楼”大潮。
然而,当你走入最新开业的山东黄金国际广场,会在不经意之间被它含蓄而优雅的建筑身段所感应,这座大楼选择了并不“出位”但极其“到位”的形式语言,并且用极佳的设计完成度,为济南这座城市树立了追求品质的建筑典范。

∆ 建筑沿街实景图

∆ 稳中有变的立面气质
这座建筑的设计辨识度来源于其对建筑平面的基本策略:如何在不破坏高层建筑“最佳标准效率”的前提下,通过适当的体块分割变化,谋求在复杂城市环境之中不同观赏角度的活跃性。
这种策略显然是成功的,山东黄金国际广场稳重的建筑气质并没有颠覆和挑战既有的都市规划格局,却能够在高楼林立的济南新区彰显出别致、优雅、刚中带柔的天际线气质。这种气质的产生,来源于建筑师对城市宏观格局和纵向历史文化的深度解析。

∆ 建筑立面稳中求变的优雅姿态

∆ 城市景观策略分析图
作为国家历史文化名城,任何为济南这座城市做设计的建筑师,都不难获得丰厚多元的历史文化输入参考,但是在这些复杂的城市图底和文化图底之中,去繁就简地汲取某种提示,将其精准地转译为当代城市的界面语言,是需要一定的灵感、经验、功力。
从城市格局上看,建筑合理的布局不仅兼顾了主体塔楼对经十路的昭示性,并针对转山西路潜在的大量城市人流形成连续的商业界面,嵌入细密的城市生活肌理。

∆ 塔楼与近地界面的布局策略研究

∆ 形体分析图
从历史文化上说,济南素以泉水众多、风景秀丽而闻名天下,盛水时节,在泉涌密集区,呈现出“家家泉水,户户垂柳”、“清泉石上流”的绮丽风光。济南的城市发展、历史沿革、民风民俗,理所当然地也与泉水密切相关。那么,在“方形”的高层建筑基本制式之中做出适当的“泉感”,非常考验建筑师的文化转译力。
CCDI悉地国际的设计团队在本案中的基本选择,是在方正平面的形式基础上进行“柔性微变”,建筑平面上的微变为4.75m,却能够在立面上梳理出四个方向上的优雅收分感。
建筑以方形为母题,明确的序列感,体现了稳重大气,诚信立业,守信公正的国企集团风格。
而建筑平面错动所延展出的立面变化,也用一种“柔态”去补充和化解刚性体量和玻璃幕墙的坚硬感和均质感。这种刚柔并济之间,建筑的文化性格渐渐得以展现。

∆ 建筑与整体城市环境的契合

∆建筑体量的“微表情”分析图

∆ 建筑立面的节奏韵律

∆ 建筑立面的刚柔变化
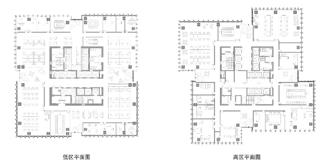
虽然是一座办公业态为主的建筑,山东黄金国际广场在竖向功能的分布研究和设计上,充分考虑了城市生活的延展性和便利性。
建筑B1层地库南侧设置卸货区,分别服务办公和商业功能。同时还设置了地下商业街,于地块内的商业功能有机结合,形成完整商业动线。
建筑沿街界面,1层西北侧设置金融业态,南侧设置零售店铺。2层为主要商业界面,业态全部设置为零售店铺,并考虑弹性灵活的铺型分割。裙房3-4层业态以餐饮为主,兼设部分体验型服务业态。5层设置会议中心,为办公客户提供会议场地租用服务。
建筑以方形为母题,完美的正方形,明确的序列感,体现了稳重大气。开合的平面在建筑高区形成了“风车型”的布局形态,非常适合拓展平面使用功能在四个方向上的景观最大化。

∆ 建筑剖面图

∆ 标准层平面图

∆ 建筑主入口

∆建筑主入口

∆ 建筑近地面实景

∆建筑夜景

∆ 幕墙变化细节
建成后的山东黄金国际广场以其自身的设计语言和精准的空间细节,为二十一世纪中国城市化浪潮中的都市主流高层建筑树立了全新的典范。
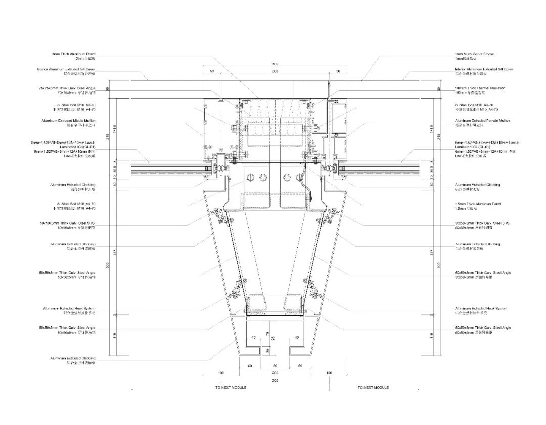
整个项目主塔采用单元式幕墙体系,施工过程高效精准,同时最大化地保证了高品质与高水准的建筑完成效果。
建筑立面以正灰色LOW-E玻璃与富有匠人细节的铝装饰线条为主。银白色的铝金属线条纵向排列,形成简约的立面竖线条装饰,随着形体的演变而进行富有韵律的疏密变化,在凝固的形态中多了一层动态的表达。线条截面以梯形为基础,类似”凹“字,相较于矩形截面而言更加拓宽了建筑的视野。“凹”槽内部安置泛光照明设备,最大限度的保证建筑的简洁与商务气质,在楼体五、六层的位置中部开口由大变小,在视觉上强调楼体的细腻与挺拔。银白色铝板材质辅以精致的造型工艺,彰显了建筑的现代感与艺术特质。



项目档案
项目名称:山东黄金国际广场
(现名济南城市建设大厦)
业主单位:济南城市建设集团
山东黄金集团
建筑/结构/机电方案设计:CCDI悉地国际
施工图设计:中国建筑设计研究院
主创建筑师:李乃桢
主要设计成员:王碧微、刘明威、邓媛
用地面积:22525平方米
总建筑面积:163390平方米
地上建筑面积:105871平方米
容积率:4.70
建筑高度:207米
设计时间:2015年
开业时间:2022年
评论