

△剖轴侧图 ©灰空间
上海愚园路旮旯三宝陶艺工作室项目是几个建筑师的“旮旯计划”的第二个落成的小房子,其与第一个成果已经相隔3年。这期间也经历了新冠疫情后期以及房地产行业形势的持续走弱,建筑师同时面临着许多新的需要处理的问题。和李见深国际陶艺工作室团队的合作则为这第二个小房子的运营内容提供了起点和支点。这篇文章会逐步将这个思考和建造的过程进行展示。

△桥上中庭视角 ©存在建筑

△底层会客空间 ©存在建筑

01.
市井氛围的延续
Continuation of the Alley Atmosphere
上海的愚园路在近几年成为了现象级的网红打卡目的地,这一方面依赖于愚园路两侧良好的建筑品质以及市井气息,另一方面政府也在适度的引导新的产业经济入驻。以宏业花园为例,靠弄堂口100米内的弄堂西侧为旧时的学校和厂房,3年前在创邑的统一管理下改造成为充满活力的创意办公和社区公共空间;弄堂东侧为花园洋房及居民自建房,建造历史从解放前持续到20世纪80年代,现在逐渐形成民宅和工作室、零售等功能交融的场所。


△宏业花园总平面图(1947年&2024年) ©灰空间

△项目总平面图 ©灰空间

△项目改造前照片 ©刘漠烟
第一次看场地时,建筑师就被项目周边类似村落的丰富界面和似乎停留在上个世纪的人际交往方式所打动,因此在宏业花园这样一个充满市井气息的弄堂里面,期待这个小空间能延续街道氛围,甚至能创造更多让人们在此相遇交流的机会。

△项目北侧建筑照片 ©刘漠烟
上海小街道的市井氛围很多时候来自于建筑被使用者逐步叠加的改造,其最终形成的模糊的界面可以创造更多意外的惊喜。因此空间界面的形式和材料成为建筑师最开始设计的起点。

△项目改造过程 ©刘漠烟
新增的材料和空间界面不需要将既有的环境完全掩盖,而是与其共存形成模糊而融合的新场景。建筑师担心改造后的房子在街道上显得格格不入,希望不论在何种视角下,这个小房子都是长在这个场地中的。接手项目前的原建筑立面上贴了面砖后又敷以蓝色涂料,它虽小却有记忆点,而其他相邻建筑被统一刷上了米黄色质感涂料。与其他朋友谈起这个房子时建筑师都用“那个蓝房子”来指代,因此同时不希望在改造后这个房子失去了所有特征。

△建筑沿街面 ©存在建筑
底部的红色手工陶砖及上部的灰绿色膜材都是在回应场地已有的配色和虚掩的遮盖了一点立面上路过的凌乱的电线,同时又希望在这个弄堂里形成新的记忆点。灰绿色的膜材采用了钢索悬挂的方式,简单的构造节点也为未来替换为海报提供了便利。


△建筑立面细节 ©存在建筑
外立面陶砖体量向内延申形成完整的底层空间的基座。其上方则是由阳光板包裹的微尺度的中庭。在中庭挑高空间里,各标高的活动空间与视线通廊在这里交错,为使用者的偶遇或一瞥创造机会。


△弄堂的市井氛围 ©存在建筑

△弄堂轴侧图 ©灰空间

02.
设计建造过程中的精确与模糊
Precision and Ambiguity in the Design and Construction Process
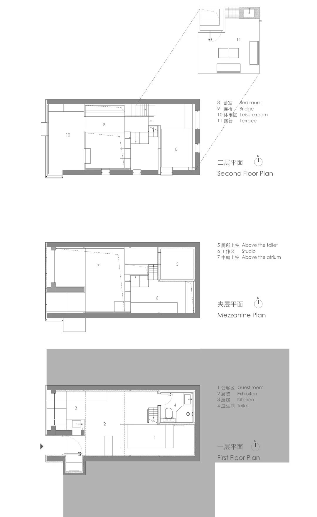
既有建筑面积很小,平面是略不规则的矩形,尺寸约3.3m(面宽)*7.2m(进深)。原建筑共计两层,总高度也受限,除坡顶区外的板底高度仅有5.4m。因上世纪80年代的原始建造者并非专业施工队,内部结构相对混乱:砖墙、混凝土柱、木梁及木楼板均是受力构件。其中木梁与木楼板因腐朽已不再适合继续受力需拆除,因此建筑师得以在去除木楼板后的空间内规划新的功能,包括陶艺工作室所需的展陈空间、休闲空间、睡眠空间以及服务空间。

△改造前剖透视 ©灰空间
拆除木梁和木楼板以及墙体原饰面层后原有的建筑尺寸才得以最终显露出来,而拆除原有梁板的建筑在结构安全性上已出现问题,因此快速调整方案后,建造的第一步便是加固。新增的钢框架与整体外墙内侧新增的钢筋网混凝土加固层修正了原来混乱的结构系统,为增加稳定性且保证大部分的梁柱截面控制在60*60mm,尽量不挤占已非常狭窄的室内空间,结构师在钢架的局部增加了斜撑,这些斜撑也为未来空间设计提供了新的趣味。


△钢架施工中及完工照片 ©刘漠烟
建筑三面均与其他民宅相邻,出于施工期间的安全性考虑以及满足城市管理者的相关规定,建筑外部的几处洞口及局部出现的几处混凝土楼板均未作调整。其中需要精确处理其同内部空间关系的主要有:建筑入口、二层阳台、顶部高窗,以及露台通道口,这些空间都与实际使用关系密切,其余窗洞的尺寸和位置均可以模糊处理,仅作为采光通风的洞口。通过精确定义以上几个空间的尺寸,建筑的内部空间系统就基本成型了。

△剖轴侧图 ©灰空间
临弄堂的建筑入口与北侧的厨房操作台、其上方的休闲阳台以及上露台的楼梯区域是最早被确定的空间,因原建筑的入口和其上方的一小块需保留的混凝土楼板,以及露台混凝土楼板开口的尺寸限制了建筑调整的可能性。远离弄堂的另一侧则布置了会客区、工作区以及睡眠区,两侧功能通过穿越阳光板中庭的小桥相连。

△各层平面 ©灰空间

△休闲区 ©存在建筑

△厨房操作台 ©存在建筑

△从厨房看向中庭 ©存在建筑

△通向屋顶露台 ©存在建筑
除以上临建筑边界的空间之外,剩余空间被定义为一个挑高的四处开洞的中庭空间。因中庭空间的边界被其他空间所限制,且没有具体功能,因此其尺度其实具有一定的容错性。设计师在此处以阳光板包裹中庭,希望由其他空间射入的光在中庭形成朦胧的效果。

△中庭剖透视 ©灰空间

△中庭仰视 ©存在建筑

△底层中庭视角 ©存在建筑

△底层中庭视角 ©颜翘楚



△桥上中庭视角 ©存在建筑
原建筑外轮廓并不是精确的矩形,最大偏差有200mm,施工过程中所有的误差均被留在了建筑的尽端,以保证其他部分尺寸的精确性。新增的钢框架系统也将原有非正交的系统精确化。

△卧室洞口 ©颜翘楚

△楼梯 ©颜翘楚

△楼梯 ©存在建筑


△洞口 ©存在建筑

△材料拼贴 ©存在建筑
事实上,很多展陈空间的搭建也是在建造过程中逐步成型的。如为了给厚度100mm的阳光板做收边,设计师选用了200宽的金属条,剩余的宽度正好作为窄边的陶艺展示平台。施工边角料的玻璃钢格栅及桦木多层板则有一部分制成的外部座椅,另一部分在空间中搭建了局部的展架。这些模糊而冗余的空间和建筑材料,最终成为定义清晰的展陈空间,也有赖于艺术家与建筑师在策展前期的紧密配合。

△可变展架设计 ©灰空间

△空间展陈 ©存在建筑

03.
后记
Afterword
愚园路宏业花园艺术工作室作为城市旮旯计划的第二个落成项目,建筑师继续关注城市空间里原本未得到充分重视的小角落,希望通过建筑改造提升空间品质,以局部激活城市空间。在这个项目中,建筑师积极寻求与艺术家合作植入运营内容,希望能从更多元的视角对城市空间活力做出点贡献。

项目完整信息
项目名称:愚园路“城市旮旯”空间改造
项目类型:建筑/室内
项目地点:上海市愚园路宏业花园
策划人:李见深国际陶艺工作室、灰空间建筑事务所、宋佳威
设计单位:灰空间建筑事务所
主持建筑师:刘漠烟、苏鹏
设计团队:琚安琪、李园园、雁森、马玥扬、张逸君(实习)、刘俊豪(实习)
建成状态:建成
设计时间:2023年6月-2024年6月
建设时间:2023年10月-2024年12月
占地面积:27㎡
建筑面积:54㎡
结构顾问:iStructure结构事务所
施工:上海煜榫装饰工程有限公司
材料:桦木多层板、法拉利膜、阳光板、玻璃钢格栅
摄影:存在建筑、颜翘楚、刘漠烟
评论