The Mei Xi Lake Wellesley Hotel is located in the Mei Xi Lake International New Town of Changsha City, facing the Mei Xi Lake Art Center, the last work of Zaha Hadid. Mei Xi Lake is the area with the highest development intensity in Changsha. The lakeside is dotted with super high-rise residential buildings and hotels with a plot ratio of 4.0 to 6.0. As the last lakeside hotel in the Mei Xi Lake area, we propose that a new option different from super high-rise hotels should be introduced at the architectural design level, providing a differentiated new experience in the highly homogeneous business hotels in Mei Xi Lake.


01
再寻桃源:一场身心逃离之旅
桃花源是千百年来,刻在中国文化基因中的对于乐园的如同梦境的向往,桃源不同于西方的伊甸花园(EDEN),桃源之美并不在于花园之美,而更在灵魂的放松与逃离,是千百年来世人都在追求的内心平静与安宁,在当下这样一个神经紧绷的时代,内心的安宁更为难觅,这也让“再寻桃源”仍然充满了时代意义,也许每一个疲惫的商务旅途,都在呼唤一次短暂的身心逃离之旅。
“Peach Blossom Paradise ”is a literary masterpiece by the ancient Chinese literati Tao Yuanming, depicting the dreamlike longing for paradise in the genes of Chinese culture for thousands of years. Unlike the Western Garden of Eden , the beauty of Peach Garden lies not in the beauty of the garden, but in the relaxation and escape of the soul. It is the inner peace and tranquility that people have been pursuing for thousands of years. In this tense era, inner peace is even harder to find, which makes "searching for Peach Blossom Paradise again" still full of historical significance. Perhaps every tired business journey is calling for a short journey of physical and mental escape.
▼酒店客房区 Hotel Room Area

02
桃源意境的入口序列
“林尽水源,便得一山,山有小口,仿佛若有光。便舍船,从口入。初极狭,才通人。复行数十步,豁然开朗。”——《桃花源记》
“At the end of the peach grove is the source of the stream, and then a mountain appeared with a small cave entrance that seemed to have some light inside. So he got off the boat and entered through the cave entrance. At first, the cave entrance was very narrow, only allowing one person to pass through. After walking a few dozen steps, it suddenly became open and bright. "-" Peach Blossom Paradise " Tao Yuanming,421 AD

区别于商务酒店入口的豪华、高大的常规设置,我们以林路迂回,将酒店入口远离嘈杂的主车道,行车落客处不作任何笔墨华彩,仅设一朴素门洞,沿幽深洞口转折复行十余步而进入酒店大堂,则忽而豁然开朗,二十米长的中庭景观如山水画卷徐徐展开,引发旅客的惊叹。
Different from the luxurious and tall conventional setting at the entrance of a business hotel, we use a winding forest road to keep the hotel entrance away from the noisy main lane. There is no colorful writing or painting at the drop off point, only a simple doorway. After turning along the deep entrance and walking more than ten steps, we enter the hotel lobby, which suddenly becomes clear. The 20 meter long courtyard landscape unfolds like a landscape painting, arousing the astonishment of passengers.

酒店入口 Hotel entrance ▲

酒店入口甬道 Hotel entrance corridor ▲


酒店大堂与中庭景观 Hotel lobby and atrium landscape ▲
03
桃源聚落的空间营造
屋舍
“土地平旷,屋舍俨然。”——《桃花源记》
“What appeared before him was a flat and wide land, rows of neatly arranged houses. "-" Peach Blossom Paradise " Tao Yuanming,421 AD
为了打破传统酒店的内廊式布局,我们将酒店公区体量化整为零,打散为大小不一的屋舍,以庭院交织。在旅客面前展开的这个山水画卷,不仅是一个平面的观赏对象,更是一个可深入探寻的村落空间。
In order to break the traditional corridor style layout of hotels, we have divided the hotel public area into smaller buildings of varying sizes, interwoven with courtyards. The landscape painting unfolded in front of the passengers is not only a flat viewing object, but also a village space that can be explored in depth.

屋舍与庭院相互交织的酒店 A hotel where houses and courtyards intertwine ▲




屋舍墙身与檐口 The walls and eaves of the house ▲


高密度街区中的隐秘村落 Hidden villages in high-density neighborhoods ▲

巷道空间 Lane space ▲
池庭
“有良田、美池、桑竹之属。”——《桃花源记》
“There are fertile fields, beautiful ponds, mulberry trees, bamboo forests, and so on.”-" Peach Blossom Paradise" Tao Yuanming,421 AD
村落的中庭,我们希望是一个池庭,池庭上方设置田垅小径,行走于小径之上,平坦的池庭也成为了一个抽象化表达的水田空间。池庭的表面如同明镜,屋舍倒影随水面涟漪晃动,如同陶渊明笔下的这个虚幻梦境。
The courtyard of the village, we hope to be a pond courtyard, with a field ridge path set above the pond courtyard. Walking on the path, the flat pond courtyard has become an abstract expression of paddy field space. The surface of the pond is like a clear mirror, and the reflection of the house sways with the ripples of the water, just like the illusory dream in Tao Yuanming's pen.

酒店中庭鸟瞰 Aerial view of the hotel atrium ▲

酒店中庭 the hotel atrium ▲

酒店公区立面 Hotel public area facade ▲

露台休闲区 Terrace area ▲


从酒店望向池庭 Looking towards the Pool Court from the hotel▲

阡陌
“阡陌交通,鸡犬相闻。”——《桃花源记》
“The small paths in the fields are intertwined and connected, and the chirping of chickens and dogs can be heard everywhere. ”-" Peach Blossom Paradise " Tao Yuanming,421 AD
酒店的餐厅、泳池、健身房、会议室,分布于村落之间,不同的屋舍对应了不同的酒店功能,探索游走的过程,同时也是一个游园的过程,步移景异间,住客自己也成为了画中之人,如同一场生动的空间实验戏剧。
The hotel's restaurants, swimming pools, fitness centers, and meeting rooms are located between villages, with different buildings corresponding to different hotel functions. The process of exploring and wandering is also a process of exploring the park. Walking through different scenery, guests themselves become people in the painting, like a dynamic spatial experimental drama.



连廊 corridor ▲

陶砖施工过程 Construction process of ceramic tiles ▲

自助餐厅 buffet restaurant ▲


恒温泳池 heated swimming pool ▲


04
桃源精神的抚慰
问今是何世,乃不知有汉,无论魏晋。此人一一为具言所闻,皆叹惋。
余人各复延至其家,皆出酒食。停数日,辞去。
此中人语云:“不足为外人道也。”——《桃花源记》
“They asked the fishermen what dynasty it is now, and they surprisingly didn't know that there was a Han Dynasty, let alone the Wei and Jin Dynasties. The fisherman told them everything he knew in detail, and after listening, they all sighed with regret. The rest of the people each invited the fisherman to their own homes and brought out wine and food to entertain him. The fisherman stayed for a few days, bid farewell to the villagers and left. The people in the village said to him, "Our place is not worth mentioning to people outside”-" Peach Blossom Paradise " Tao Yuanming,421 AD
三年多的设计与筹备的过程里,与韦尔斯利酒店集团的缪总的交流始终是十分愉快的,不论是在项目之初我们对于酒店定位的梳理与讨论,还是在落地过程中共同对于材料与细微之处的品质要求,都展现了韦尔斯利酒店集团对于品牌未来的雄心与憧憬,三年来业主与项目各团队的不懈努力,最终都静静的融入了作品之中,如同桃花源记的结尾一般,等待着每一位旅客去发现和探寻。
During the more than three years of design and preparation, the communication with Mr. Miao from the Wellesley Hotel Group has always been very pleasant. Whether it was the initial sorting and discussion of the hotel's positioning at the beginning of the project, or the joint quality requirements for materials and details during the implementation process, it demonstrated the ambitions and aspirations of the Wellesley Hotel Group for the future of the brand. Over the past three years, the unremitting efforts of the owners and project teams have finally quietly integrated into the work, just like the ending of The Peach Blossom Paradise, waiting for every traveler to discover and explore.

总平面图 Site Plan▲

酒店入口立面图Hotel entrance elevation▲

餐厅入口立面图Restaurant entrance elevation▲

剖面图Section▲

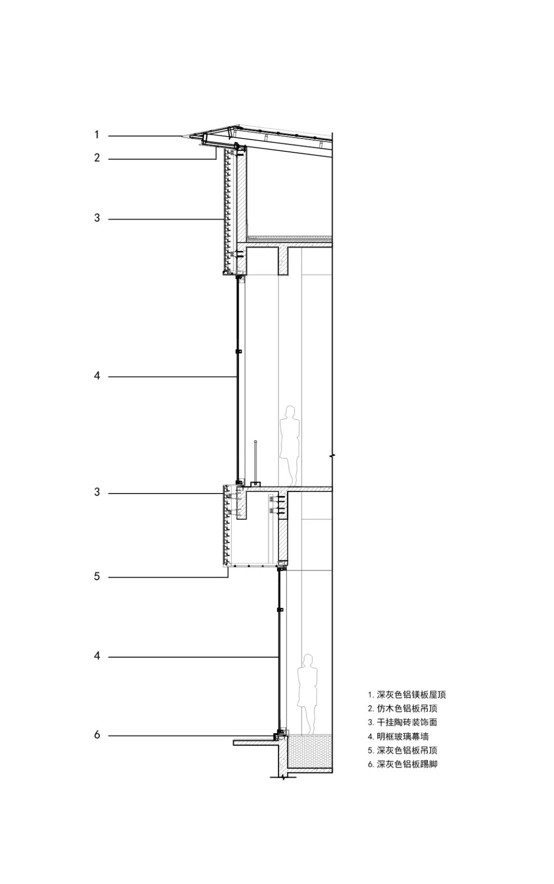
墙身大样图Wall Detail Drawing▲
项目名称:梅溪湖·韦尔斯利酒店
项目地点:湖南长沙
建筑设计:之行建筑设计事务所
室内设计:HOUPAL厚派建构
软装设计:孔德政&徐言雅
景观设计:自沐心洁设计事务所、無花了居
照明设计:光合共筑VIDLUX
品牌设计:厚尚百纳
建筑设计团队:陈恺、周子乔、阳斌、李愉航
室内设计团队:江波、唐智湘、王宇庆、陈伯春、李平定
软装设计团队:徐言雅,孔德政,叶玉强,刘知微,吴晓冰,曹丽云,陈雪滢
景观设计团队:李念、欧阳秋、戴嘉欣、肖智鑫、刘开萍、陈兵(自沐心洁设计) 刘畅、王希一(無花了居)
品牌设计团队:谭勇、杨倩
合作建筑设计院:深圳市联合创艺建筑设计有限公司湖南设计院
团队成员:刘明发、郑光红、李江华、苗超、刘嘉玮、曾洁、周汶、夏云平、周为、刘坤、周英佳
业主方:长沙三景梅溪湖酒店管理有限公司
摄影:山兮建筑摄影
建筑材料:玻璃、铝板、铝格栅、陶砖、铝镁锰瓦
建筑面积:26480㎡
设计时间:9/2021 – 6/2022
建造时间:6/2022 – 11/2024
评论