
产业新名片,片区新地标
New Industrial Icon, A New Regional Landmark
汽车产业作为龙泉驿片区发展的主导产业,正加速向新能源、智能网联方向转型,依托链主企业、国际化合作平台和政策支持,构建“研发-制造-应用-出口”全产业链体系,目标是成为中国西部乃至全国汽车产业高质量发展的标杆。在此时代背景下,深业泰富广场作为全国首个以新能源汽车为主题的专业卖场,是集车城MALL、商业、办公、住宅于一体的综合性片区营造,致力于打造龙泉驿片区汽车产业新名片、新地标,塑造以主题性汽车展销为核心的一体化新体验商业综合体,并将发展成为西南地区新车发布首选平台作为远景。

深业泰富广场位于东安新城CAZ片区,对促进东安新城产业集群构建、完善城市功能配套等具有重要支撑意义。以“人·车·生活”生态闭环的理念为核心,涵盖智慧零售、文化体验、运动娱乐等多重场景,已成为成都绿色经济转型的重要引擎之一。未来,项目将持续发挥平台优势,为区域高质量发展注入新动能。项目规划既注重区域发展的整体性,又突出湖景资源与汽车产业的特色,力求成为东安新城的标杆性项目。

规划设计策略
高强度集约式开发下的城市共生体
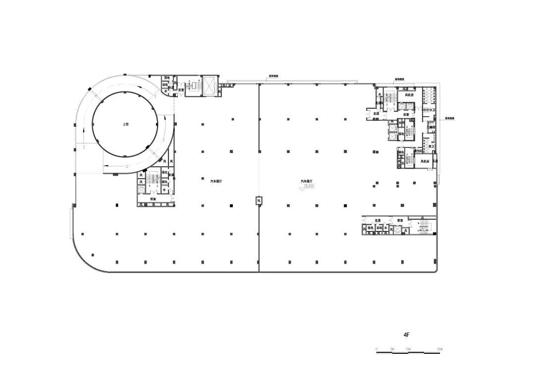
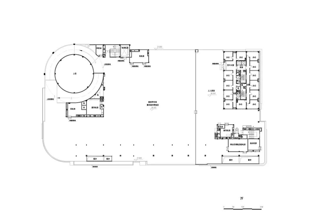
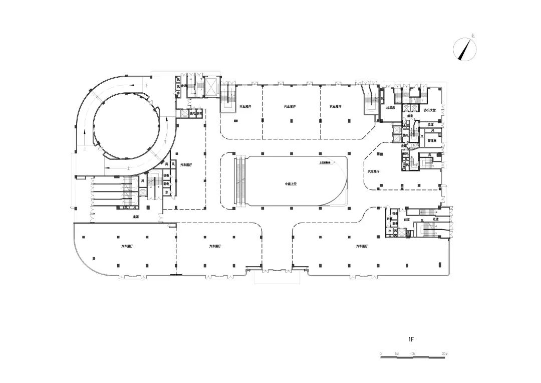
项目分为南北两个地块,总建筑面积约23.7万平方米。车城MALL位于北地块,临近城市干道及道路交叉口,拥有完整的城市展示面,便于独立运营使用。商办街区位于南地块,与车城形成空间上的互动,形成良好的城市界面和公共建筑组团空间。住宅组团位于相对较为私密地块两端,同时规划独立的组团景观空间和人车动线。

▲ 清晰的业态落位与功能分布
在容积率较高、地块总面积较小等诸多因素限制下,方案设计较好的平衡了车城等商业建筑与住宅建筑之间的协调关系,商业建筑占据城市主要展面,拥有独立运营的动线,同时,住宅可享有相对独立完整的中庭空间和景观,拥有较好的私密性,两者之间形成互相反哺且不干扰的组团关系,创造错落有致的城市空间形态。


功能设计策略
FUNCTION DESIGN STRATEGY
从平庸到地标的蜕变
车城业态涵盖国内新能源汽车品牌及产业链延伸产品,是集新能源汽车展示、销售、维保、金融、保险、办证上牌、餐饮等一站式的多业态融合的全国首家新能源汽车MALL。

车城负一层至地上二层涵盖整车展贸、汽车生活、金融保险等业态;三层以特色餐饮等生活配套业态为主;四层至六层为新能源汽车交付中心、主力店售后服务中心及车管服务。已吸引特斯拉、华为鸿蒙智行等39家新能源汽车头部品牌入驻,构建起覆盖多场景的业态矩阵。同时汇聚融合传统茶文化与亲子娱乐的文化体验馆与儿童卡丁车乐园、打造商务社交新空间的咖啡旗舰店、汇聚高端汽车周边及定制化服务的汽车精品生活馆、满足消费者休闲需求的多元主题餐饮区、以科技感运动体验吸引年轻群体的卡丁车竞技场、探索线上线下融合的智慧购车模式的新零售汽车商城、提供“售前-交付-售后”全链路服务”的汽车交付中心等全套式服务体验,形成“展销服娱”一体化生态。

▲ 主入口室内空间

▲ 汽车展销空间

▲ 汽车展销空间
车城通过严谨的功能布局使建筑享有最大化的完整连续的展示界面,充分发挥主力店的商业价值;以“车的T台,城的show场”为理念打造主题性的中庭空间,可灵活举办汽车展销等一系列活动,提高商业活力;独特的双螺旋汽车坡道可实现汽车从地下车库到车城7F屋顶停车场层层可达,为汽车销售、展示、维保等运营提供良好条件;采用大柱网设计,2.7米宽的豪华车位最大限度地适应汽车行业的发展;同时,利用旋转坡道圆形中空空间,预留大量机械停车位条件,赋能远期运营需求;平面布局围绕中庭展开,形成高效的环形商业动线——我们力图通过一系列定制化的设计,打造一场永不落幕的车展秀。

▲ 车城特征

▲ 中庭空间,十足的科技感与未来感

▲ 双螺旋坡道,是车城鲜明的建筑特征
立面设计策略
FACADE DESIGN STRATEGY
呼应功能主题,速度·激情·未来

▲ 立面概念

▲ 明确的虚实对比,赋予建筑强烈的力量感

▲ 流畅的形态及线条,勾勒出建筑精致的动感

▲ 凹凸变化的横线线条,保证了大面铝板的高平整度

▲ 体量与材质的变化,形成鲜明的建筑形象

▲ 主入口空间,通过泛光与幕墙的协调以及更多的细节处理,打造宜人的近人尺度

▲ 主力店拥有独立的沿街出入口,有效地提高其商业价值
结语
SUMMARY
产业迭代下的全新实践
深业泰富广场项目融合商务办公、活力商业、品牌汽车、配套居住等多种业态,形成了多元化的产业生态系统。同时,作为新能源汽车展销一体化的专业卖场,在传统建筑类型的基础上,结合特殊的运营需求,赋予其独特的设计特征。设计团队通过大量的推敲模拟和设计研判,最终保证项目得以良好呈现和运营。我们希望本项目作为一个现代化的城市综合体,能够提升周边片区的城市面貌及人居品质,以独特的建筑设计、完善的配套设施和良好的商业氛围,改变片区的传统印象,将片区打造为公园城市中烟火宜居、绿色发展的综合性产业中心,助力地区产业发展。

名称:(龙泉驿)深业泰富广场项目
委托方:深业泰富成都市深业泰富蓉锦置业有限责任公司
建筑设计:基准方中建筑设计股份有限公司·成都第四事业部&成都第十事业部
建筑设计团队:何加林、陈苏振、赵莹、李硕、程茂春、杨波、朱艳、邓媛烛、周晗、姚逸可、王兆祥、卢瑞青(车城mall)
陈程、孙勇、刘国绚、李奇珂、骆俊西(商办&住宅)
建成时间:2024.10
建筑面积:23.7万㎡
评论