
“
西湖边有龙井与诗意,
有文人与风骨,
有极客精神与诗意生活,
有钱塘江的奔腾与豪迈。
“一曲溪流一曲烟”,
我们以从容姿态,用微雕素石,
对话西湖,共鸣杭城。
”
△敬请观看沄璟文华轩建成实景

「Natural Art Museum」
「与自然交融的美学馆」
— 东方山水的当代转译 —
山水肌理的建筑化表达
自然艺术馆灵感提取自西湖群山的层叠绿意与钱塘江潮的流动韵律,通过“三园九境”的立体布局,将自然缩微为可游可居的剧场。下沉庭院以水光粼粼的镜面池倒映天光,绿影错落间形成环形山水画卷,模糊了建筑与自然的边界。

△灵感来源:山水杭城

△沄璟文华轩自然艺术馆鸟瞰实景
归序·塘岸
归家路径的初始篇章始于塘岸游廊的沉浸式引渡。阵列式的柱廊和景墙构建起从城市到住区的渐进式空间过渡。酒店式落客的车马院落客区和66m社区入口构成视线通廊,形成张弛有度的界面。



△沄璟文华轩实景
柱廊之间的留白
沄璟文华轩的留白哲学绝非消极的虚空,而是以克制的结构介入激发自然的自主叙事。建筑界面与自然的共生通过“七分留白三分构筑”实现结构性控制。


大量的柱廊空间作为“三分构筑”的骨骼性元素,以阵列式的结构秩序建立空间节奏,当光线穿过廊柱在地砖上投射出随时间游移的光带,柱体本身成为自然光影的雕刻笔触,将时间的流动具象化为空间中的明暗叙事。


△柱廊留白空间实景
时光叙事的花厅
垂直通高的花厅空间将地上与地下空间联系再一起,洞石白圆拱成为光线过滤器,阳光穿透时在墙面生成呼吸性光斑序列。铝板格栅藻井雨棚作为过渡界面介入,锤纹铜门源自手工非遗工艺。



△沄璟文华轩花厅空间实景
「Color and Material Selection」
「在地性元素转译温润质感」
— 立面形态与材料选择 —
杭扇元素构建雅奢立面
沄璟文华轩的立面系统以理性建构逻辑实现艺术雅奢表达。设计溯源杭扇的“斜切角”与“折叠线”两大元素,将西方古典建筑的秩序法则与东方折扇的流动意象进行参数化转译。

△将杭州折扇元素进行现代转译

△沄璟文华轩立面效果图

△沄璟文华轩南立面细节实景
立面结构采用西方古典建筑经典制式“横三竖五”进行立面切分,如基座、中段、塔冠分为三段式,竖向阳台、飘窗分为五段式,极致中轴对称。设计以承载美为出发点,采用纯粹和质朴的空间和材质,从古典形态中提炼出简洁而有力的符号,强化了建筑的形式感和空间感。



△沄璟文华轩南立面细节实景


△杭扇转译的“斜切角”与“折叠线”节点
材质赋予在地标识感
沄璟文华轩的材质叙事根植于杭州山水精神,主材选用银河白麻花岗岩,其基底浸润着西湖烟雨的氤氲记忆。岩面密布的银灰色晶脉如雾霭漫过湖山,深浅交织的云絮状纹路恰似雨后南屏山的层叠轮廓。这种带有地质时间印痕的石材经哑光凿面处理,在日光下呈现柔和的漫反射,使建筑体量如被晨岚轻裹般温润内敛。


△沄璟文华轩立面细节实景
镶嵌精致古铜色金属边框镶嵌其间的精致古铜色金属边框,更增添了建筑的层次感与立体感,使得整个立面在光影的映照装饰主义的艺术魅力。当阳光掠过立面,铜框边缘泛起暖金色光晕,与银河白麻的冷灰基底形成冷暖对撞,恰如保俶塔尖在湖面投下的粼粼碎金。




△沄璟文华轩门头立面细节实景
「Immersive Experience Of Light」
「光的沉浸式体验」
— 空间的情绪营造者 —
以光为引的地下空间
在沄璟文华轩的设计中,光不仅作为美学要素,更被系统性地整合为塑造空间感知与行为引导的核心媒介。这种体验始于业主归家的第一序列——地下空间,通过突破性的地库环境革新,彻底重构了传统地下空间的消极属性。设计团队摒弃了单纯的功能性通道思维,转而构建了一套完整的“光环境叙事系统”。


△生机之环·主岛实景

△沄璟文华轩地下会所空间剖面
地库作为沉浸式光体验的序章,其创新性体现在“主岛-月岛-光岛”三级节点构成的复合聚落,实现了地上与地下空间的深度渗透与能量交换。一环·二轴·三岛的生机之环,形成空间相互渗透,将绿化通风采光向地下延伸营造第二地面,让归家途中享受来自各个空间的“光”。


△沄璟文华轩地下会所空间实景
与自然交融的下沉式庭院
庭院依循场地高差下沉,四周建筑或植被围合,营造出静谧私密的空间氛围。镜面水池是庭院的核心景观,将天空的色彩与光晕、周边的绿树倒影一并揽入怀中,随着光线的变化,呈现出灵动的光影效果,宛如一幅动态的自然画卷。
在此建筑于景观做出退让,预留出层次丰富的植被空间。庭院与室内的空间关系也被精心处理,大面积的玻璃窗以开放界面的姿态,让室内空间得以充分延展,使得自然光线与景观能够毫无阻碍地渗透到室内,为室内空间注入了无限的生机与活力。

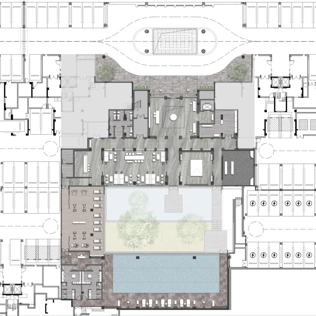
△沄璟文华轩美学馆B1层平面图


△与自然交融的下沉式庭院实景


△沄璟文华轩自然艺术馆实景
文化实践与落地控制的碰撞
在高端空间设计中,文化叙事与工程实践的碰撞常被视为理想落地的最大挑战。我们以“在地基因解码→工艺转译→全链协同”的三重控制逻辑,将文化想象力锚定于精密施工的基石之上,实现高奢空间的诗意与严谨共生。

△沄璟文华轩巡场实录

主创设计师

余泊

叶笛
杭州华润置地·沄璟文华轩
项目业主: 杭州华润置地
项目地点: 杭州市西湖区
用地面积:34895.00 ㎡
建筑面积: 76769.00 ㎡
容积率:2.20
建筑设计: 致逸设计
大区设计团队:朱乾、孙雨田、梁灿、周燕、克然
示范区及立面设计团队:陈晨阳、孙长德、徐若晗、陈明慎、吴波、王乐
景观设计: 上海季相景观
室内设计: 于舍室内设计事务所、DIA丹健国际、甫特达设计
照明设计:海德灯光
幕墙设计: 中哲众创幕墙
建筑摄影:是然建筑摄影
*免责: 此文仅作为设计企业宣传推送,设计资料仅作学术交流使用,不涉及商业营销和要约,亦不代表该项目相关企业的任何承诺。
评论