
北京CBD文化中心
BEIJING CBD CULTURAL CENTER
在北京这座交织历史与未来的都市中,CBD文化中心以“不争而融”的姿态伫立于中央公园之畔。它不喧哗,却用镜面般的外立面将城市的活力映射其上;它不拔高,却用内在的空间张力,回应着新一轮城市文化与公共生活的变革。
In a metropolis where history and future converge, the Beijing CBD Cultural Center stands quietly by Central Park. Without striving for attention, its mirrored façades reflect the city's pulse. Without rising above, its internal spatial tension responds to the evolving dialogue between urban culture and public life.
01
城市之间,轻盈入场
A Light Presence In the Urban Core
项目位于北京CBD主轴线中段,距天安门东侧仅五公里,南临中心公园,北望北京第一高楼——中国尊。塔楼与绿地之间的过渡带,被赋予了极为克制的尺度限制——建筑高度不得超过41米。在这片寸土寸金的区域,文化中心并未试图“比高”,而是以“比轻”的策略,选择了城市对话而非视觉争夺。
Located at the midpoint of Beijing’s CBD axis, just five kilometers east of Tiananmen, the center sits between China Zun—the city's tallest tower—and the green expanse of Central Park. Constrained by a strict height limit of 41 meters, the building opts not for visual dominance but for a lighter, quieter presence—engaging the city through reflection rather than competition.

▲ 项目区位 ©Studio Fuksas
建筑由两座镜面“文化容器”构成,中间以通透的玻璃中庭串联,整体体量向南倾斜9度。这一设计策略,首先是在姿态上向南侧中央公园敞开,最大程度地将绿色景观纳入镜面立面之中。同时,这一角度亦有效避免了垂直幕墙常见的光污染问题——通过倾斜设计,建筑将阳光反射控制在可接受范围内,降低了对周边建筑的干扰,使其成为城市肌理中的温和参与者。
The building comprises two mirrored volumes connected by a transparent central atrium, with the entire mass gently tilting 9 degrees southward. This gesture opens toward the park, drawing green views into the façade while reducing glare and solar reflection—a frequent issue with vertical curtain walls. As a result, the building becomes a softer, more integrated participant in the urban fabric.


▲ 建筑外观 摄影:朱雨蒙
与此同时,这一“前倾”姿态在城市天际线中,与528米高的中国尊构成视觉对话。高低错落之间,通过通透中庭形成一条南北向中轴视廊,自北向南依次串联塔楼、文化中心与中央公园,构成CBD核心区“一轴三景”的空间秩序。
This “forward-leaning” stance also sets up a dialogue with the 528 meter high China Zun. Together, the tower, the cultural center, and the park define a north-south visual corridor—an urban composition of “one axis, three scenes” at the heart of the CBD.

▲ 建筑外观 摄影:朱雨蒙
02
立体链接:功能融合与流线组织
Integrated Volumes. Interwoven Flows
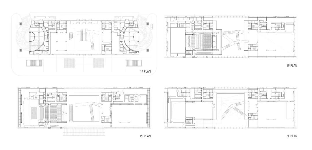
CBD文化中心以“东西双体量 + 中央中庭”构建复合功能体系:西侧为展览、演出与沉浸式体验空间,东侧为会议、宴会与社交场所。两翼通过六层通高的中庭贯通,空中连廊与坡道织就立体流线,形成动态而多维的文化漫步路径。
The center follows a “twin-volume + central atrium” configuration. The west wing houses exhibition spaces, immersive theaters, and cultural programs; the east provides modular conference rooms, banquet facilities, and social spaces. A six-story-high glass atrium connects the two wings, with bridges and ramps weaving a dynamic and multi-level circulation path.

▲ 概念草图 ©Studio Fuksas


▲ 实体模型 ©Studio Fuksas
所有垂直交通系统——电梯、楼梯、坡道与观景连桥——集中布置于中庭通透体量中,不仅提升效率,也将建筑结构与人流动线展现为“可被观看的空间剧场”,使公共活动本身成为建筑叙事的一部分。
All vertical circulation, elevators, stairs, ramps, and skywalks, is integrated into the transparent core. This not only improves efficiency but turns movement into a visible part of the architectural experience. The space becomes a living stage where structure, flow, and human activity intersect.

▲ 空中连廊 摄影:朱雨蒙

▲ 建筑中庭 摄影:朱雨蒙

▲ 剖面图 ©Studio Fuksas
地面层架空并全面开放,连接城市人流,形成一个面向市民的“文化客厅”。咖啡厅、书店与展摊可自然外延,激活街区肌理,实现文化与生活的深度交融。
At ground level, the building is fully open and elevated, welcoming the public into a “cultural living room.” Cafés, bookstores, and pop-up exhibits naturally spill outdoors, creating a porous edge where culture and daily life merge.
地下一至五层则整合商业、机电、停车等配套,并联通周边塔楼及地下交通系统,实现“地上—地下”一体化连接,拓展建筑的城市维度。
Below ground, five levels host retail, parking, and MEP systems, while connecting seamlessly to neighboring towers and underground transit networks, realizing a fully integrated vertical urban system.

▲ 各层平面图 ©Fuksas

▲ 建筑外观 摄影:朱雨蒙
03
科技与生态交融的“未来体”
Building a Future Vessel

▲ 建筑外观 摄影:朱雨蒙
项目获得LEED与中国绿色建筑双认证,体现我们对“可持续城市文化载体”的理解。项目在建筑表皮系统、热能策略、雨水与中水回收、光伏系统等方面做了全面整合:屋顶光伏板年发电量约58MWh,温差水循环与辐射板系统共同构建“等效热质”,建筑内全年保持舒适恒温;雨水回收系统实现用水节约约70%。这些技术不仅隐藏于结构之中,更悄然定义了城市公共建筑的新生态标准。
Certified with both LEED and China’s Green Building Label, the center embodies a sustainable vision for public architecture. Key environmental strategies include: Rooftop photovoltaic panels generating 58MWh/year; Radiant heating/cooling integrated with thermal water circulation; Greywater and rainwater recycling, reducing water consumption by ~70%. These technologies, though discreet, set a new standard for ecological performance in civic buildings, merging infrastructure with sustainability at every level.

▲ 建筑外观 摄影:朱雨蒙
04
建筑叙事:容器 · 镜面 · 舞台
Container · Mirror · Stage
北京CBD文化中心不仅是一个物理空间,更是一种多重叙事的交汇:
容器:承载文化活动,展览、演出、对话与社交;
镜面:反射城市与人流,回应都市日常节奏;
舞台:激发公共互动,让建筑与城市公演。
The CBD Cultural Center is more than a physical structure, it is a layered narrative composed of:
Container: Hosting exhibitions, performances and events
Mirror: Reflecting the city and its people, echoing daily rhythms
Stage: Inviting public engagement and co-creating cultural experiences

▲ 建筑外观 摄影:朱雨蒙
在这里,建筑不再是静态的物体,而是一个正在发生的、面向未来的公共文化事件。它不抢镜,却始终在场;它不喧哗,却拥有最深的共鸣。
This is architecture not as a static object, but as an evolving civic event. It does not seek the spotlight, yet it is always present. It speaks quietly, but resonates deeply.

▲ 建筑外观夜景 摄影:朱雨蒙
项目信息
PROJECT INFORMATION
项目名称:北京CBD文化中心
项目类型:建筑
项目地点:中国,北京
建成状态:在建
项目功能:剧场, 会议中心,展览空间
设计时间:2013
建设时间:2014年6月 - 至今
用地面积(平方米):9,156 sqm
建筑面积(平方米):24,875 sqm
主创建筑师:Massimiliano and Doriana Fuksas
设计单位:Studio Fuksas 福克萨斯建筑设计事务所、北京市建筑设计研究院(联合体)
其他参与单位:
声学:中广电广播电影电视设计研究院
室内:Fuksas Design
当地设计院: 北京市建筑设计研究院
外立面工程:Meinhardt
业主:北京CBD商务区委员管理会
摄影师:Zhu Yumeng
Project Name: Beijing CBD Cultural Center
Project Type: Architecture
Location: Beijing, China
Project Status: Under Construction
Program: Theater, Conference Center, Exhibition Spaces
Design Year: 2013
Construction Period: June 2014 – Present
Site Area: 9,156 sqm
Gross Floor Area: 24,875 sqm
Principal Architects: Massimiliano and Doriana Fuksas
Design Firms: Studio Fuksas (Lead Architect), Beijing Institute of Architectural Design (Joint Venture)
Other Collaborators:
Acoustics: Academy of Broadcasting Science
Interior Design: Fuksas Design
Local Design Institute: Beijing Institute of Architectural Design
Façade Engineering: Meinhardt
Client: Beijing CBD Administrative Committee
Photography: Zhu Yumeng
评论