
锦江经开区智能制造总部基地项目地处锦江区核心地段,规划性质为城市区域内极稀缺的M1类工业用地。总用地面积43亩,总建筑面积约16万平方米,容积率为4.0。未来,本项目将为智能制造业企业在生产组装、研发设计、中试等环节的布局提供空间载体支撑,有力推动“工业上楼”以产业升级。通过打造集约复合的产业载体,实现城市经济的立体式发展。

▲ 高品质生态产业园区
政策背景及产业导入
BACKGROUND & INDUSTRY
依据成都市“十四五”产业发展规划,推动具备坚实基础与增长态势的五大支柱产业发展要求,至2025年,支柱产业集群规模需突破4万亿,其中要打造电子信息、装备制造2个万亿级产业集群,以及集成电路、智能终端、生物医药、绿色食品、新型材料、能源环保装备等千亿级产业集群。
依托锦江区打造未来“都市工业”、达成高质量经济增长极的核心需求,本项目锦江经开区智能制造总部基地结合产业规划、产业基础与周边现状三方面情况,构建“智能制造、医疗器械”两大产业体系,布局“研发、小试、中试、生产”四大环节,着力打造“成都科技创新驱动新引擎、锦江产业转型升级新标杆”。

▲ 产业植入
地理区位
项目基地毗邻中国科学院成都生物研究所,与成都高端产业门户片区的林家坝TOD距离仅500米,位于未来锦江经开区都市工业发展片区的地标性位置。项目规划打造标志性产业研发地标以及高效能“工业上楼”生产空间,全方位构建成为区域产城融合的关键催化剂,同时推动周边智能制造、医疗器械、生物科技等产业形成集群效应。

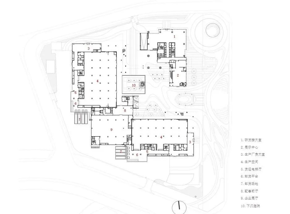
项目功能
FUNCTIONS
项目整体规划与片区功能相结合,借助面向林家坝TOD一侧的最优城市界面,布局具有标志性的高层产业研发楼宇,裙楼规划为项目展示中心及研发样板区。在用地的西侧和南侧,结合独立且完整的货运流线,设置高层工业厂房。
场地中部与北侧的中国生物研究所、东侧的城市体育公园相融合,串联打造园区多层次的生态配套轴线。于西南侧裙楼部分构建完善的项目配套功能,涵盖高标准企业展厅、员工食堂、大型会议室等功能。同时,项目裙楼通过横向错动的连廊空间进行串联,打造高效便捷的产业园区。

交通及货运流线
CIRCULATION

智能制造与医疗器械生产厂房以高标准配备完善的货运设施,后勤场地预留充足的货物装卸空间,货运交通核心区域配置高荷载货梯。同时,为满足大型设备及特殊尺寸货物上楼及运输的要求,各楼层均预留了设备吊装口,为入驻企业提供全面完备的货运保障。

立面设计
FACADE DESIGN

作为锦江经开区首个落地的“工业上楼”标杆项目,本案肩负着先行示范的重要使命。项目以“世界之窗”为核心理念,不仅象征着项目本身开放包容、面向全球的姿态,更将以卓越的建筑形象与产业活力,生动展示锦江区创新驱动、产业兴城的发展新貌,有力构筑起锦江区面向全国乃至全球的现代化产业形象窗口与城市新名片。



幕墙在模数化的框架内形成富有韵律节奏的虚实变化,既确保了内部空间的采光与视野,又为城市街道营造出具有工业精密感的视觉边界,最终构建出一种兼具现代性、秩序感与工业质感的城市视野。


幕墙设计以竖显横隐的幕墙体系为主,在强化立面整体构成的同时,巧妙的整合开启扇。开启扇设计结合幕墙构造与热工需求,通过节点精细化处理实现隐蔽化,确保立面的简洁统一,同时保证室内空间对于自然通风的需求。大面积玻璃幕墙的应用,充分引入自然光,有效减少日间人工照明,提升室内空间的舒适度与通透感。

吊装口的设计是本案另一设计难点,如何“送货“上楼是我们着重思考解决的问题:既能满足大型设备运输,同时不破坏立面整体性及设计语言,还能满足建筑本身的热工要求。设计团队协同幕墙专家,经工艺、效果、成本及运维多维度综合比选,最终创新性地采用“内嵌折叠门+外挂可拆卸金属格栅”方案作为吊装口设计方案。模块化、可拆卸的立面设计显著降低建设成本,后期维护仅需拆卸局部格栅,无需破坏主体结构,大幅简化运维成本,在追求极致的实用性的同时有力的保障设计效果的完整呈现。

泛光设计
LIGHTING DESIGN

建筑夜景照明设计以“做新时代的大国工匠,实现中国智造强国梦”为立意,衍生出“立于濯锦之江的工匠之窗”的设计理念。光与影的交织与层次塑造,使建筑化身为象征工业创新与科技发展的“光之窗口”,向世界传递中国智造的卓越品质与时代精神。

照明科技方面,全套照明系统采用智能DMX512控制,可实现照明能耗节约、微动态效果、渐变效果、一键多场景调控等功能。同时预留楼宇智能照明控制系统接口,为后期实现能源可视化及管理预留科技空间。
景观设计
LANDSCAPE DESIGN

景观设计对标工业上楼产业“高端化、智能化、绿色化”的发展方向,以实现品质高效的户外办公、智慧互动的人性化体验、绿色生态的自然基底为目标,构建“生态绿谷·乐享办公生活”的工业上楼办公园区典范。

景观设计以溯源诗韵锦江,取锦江蜿蜒流动的“水”形,转译为“绿谷流川,江起潮涌”的景观语汇为概念;借建筑的布局形式,打造“一轴·两带·多重体验”的景观结构。
城市界面:梳理市政流线和场地内部流线,融入共创客厅、无界舞台、轻氧绿谷等活动空间,链接中生科创谷与城市界面;体验艺术跌水的入境仪式、自然林荫的惬意通勤、功能草坪的多重活力。

中央生态绿谷: 联动生态阶梯、屋顶花园、下沉庭院,打造多维一体的景观体系。

下沉空间:通过地面铺装与草坪的元素丰富空间变化,结合树阵外摆打造休闲庭院;人们在这里品茗畅谈、休憩赏景,开展办公共创、文化展示等多种活动。

屋顶花园:植入立体绿化体系,体验静谧休憩的自然之美;结合条凳和可移动的社交座椅,可举办户外会议和下午茶活动,享受空中花园休闲的独特观赏视角。

通过构建园区内外的“弹性过渡”、共享空间的“N 种可能”、中央生态绿谷的“多维体验”,引导不同社群(办公者、访客等)的交汇互动,形成一个"生产-生活-生态"三生融合的工业上楼办公园区景观范式。
室内设计
INTERIOR DESIGN


展示中心2F展厅:通过对于空间的元素进行拆分、解构、重组结合,打破固有的思维方式,通过环形挑空动线,将客群引导至品牌荣誉区及实体户模展示区,充分展示本项目的科技属性。

展示中心接待室、大会议室:为高品质大客户提供舒适的接待场域和大型会议空间,在体验私密、舒适的洽谈过程中获得更高品质的体验和感受。





配套用房会议中心:整层打造多功能会议接待中心,平面规划时充分考虑各类型会务空间,配备大型报告厅、中型报告厅、小型会议室及接待室等功能空间,设计手法上延续展示空间、办公空间基础调性,为本项目增添更多的可能性。

绿色能源系统(光伏+储能)
GREEN ENERGY SYSTEM
响应国家”双碳”政策的同时充分结合“工业上楼”模式,通过“光伏+储能”系统的嵌入,使建筑成为分布式能源载体,完美实现集约化用地与能源自给的一体化融合。
项目打造高质量的绿色工业建筑三星产业园,结合节能设计需要,车库出入口四周采用BIPV光伏发电玻璃,结合屋面面积50%以上覆盖率的屋顶晶硅光伏板,在光伏组件25年使用寿命内年均发电量约74万kWh,每年可减少二氧化碳排放约635.97吨。
项目同步配置的3.5MWh电化学储能系统加入能平抑光伏发电的间歇性,确保生产用电稳定,降低对电网依赖。同时可以作为备用电源,应对突发停电或极端天气,保障高精密制造连续性,提升电力韧性。储能系统与光伏系统协同,充分利用峰谷电力价差,采用"自发自用+储能调峰"模式,实现能源高效利用,可降低企业用电综合成本20%以上,其他节能降碳措施:一级能效冷水组、智能化节能控制系统、空气源热泵(供冷),并为未来实现零碳元区做好相关预留空间,为后续产业升级及运维升级提供物理条件。

项目开创性地将物联网技术与"工业上楼"模式深度融合,打造了包含安全防范、节能管理、设备监控等五大智能系统的智慧园区管理平台。通过"工厂智造+办公研发"双轮驱动模式,一方面依托空气质量监测、能耗管理系统和楼宇设备监控实现精细化生产管理;另一方面通过智能信息发布、会议音视频系统等提升办公体验。
园区构建专业级低空飞行设施网络,专项服务智能制造与医疗器械企业,开放无人机精准物流、设备巡检及三维数据采集等工业级应用场景,加速产业智能化升级。
结语
SUMMARY
作为锦江区“工业上楼”的样板项目,锦江经开区智能制造总部基地的建成和投入使用,将为锦江区提供高质量的工业产业载体,带动未来“都市工业”的高效发展,更一步激发区域活力,为锦江区新时代的发展壮大贡献力量。

本文部分图片源于网络,如有版权争议请联系作者删除
项目名称:锦江经开区智能制造总部基地
业主方:成都弘锦启创科技有限公司
建筑设计单位:基准方中建筑设计股份有限公司·第十事业部、基准方中(成都)建筑科技有限公司
设计时间:2025-至今
建设面积:约16万平方米
项目地点:成都市锦江区林家坝片区
设计总负责人:秦正军
集团首席总建筑师:李强
建筑方案团队:何加林、虞晓夏、李端、李硕、杨波、朱艳、姚逸可、、李小平、赵子昊
建筑施工图团队:罗畅(设计总包负责人)、尧秋萍、吴涛、龚德昌、罗晋、肖军康
结构设计团队:何翀、颜飞、罗仕伟、陈龙、任顺植
给排水设计团队:郝晋、梁晓红
电气设计团队:刘阳、房福荣、尹毓、朱紫辰、刘庆
暖通设计团队:王畔飞、沈浩、段尚宇、何李欣
照明设计团队:杨光、谭海粟、胡益凡、吴依婷、雍自康、余鹏
智能化设计团队:林舜臣、王时雨
景观设计团队:基准方中建筑设计股份有限公司·成都景观事业部
室内设计团队:基准方中建筑设计股份有限公司·室内设计事业部
评论