LOD | HUASHENG GROUP BIU HOTEL | GUANGZHOU CHINA

酒店概念, Concept Drawing

项目现场照片,Project Image

项目现场照片,Project Image

项目现场照片,Project Image
BiuHotel楽逸酒店位于广州市中南部番禺区,地处粤港澳大湾区地理中心,毗邻港澳。


酒店主入口, Facade
设计理念:“Let's chill,去BIU,去欢脱!”

酒店概念, Concept Drawing

功能分区, Functional Analysis
广州作为一个在时代发展前沿的城市、随着时尚科技的发展与广州本地特色的人文和文化结合,形成了现在的广州。
项目设计通过沉浸体验打破物理边界、新商业模式突破传统空间、文化生态与趣味场景融合,一体化营造场景打破环节壁垒的概念结合广州年轻的城市形象,呈现 “乐玩、欢脱”的空间。

用户旅程图,User Journey Map


流线分析,Functional Analysis
BiuHotel楽逸酒店主要人行动线从落客区至接待前台签到,入口右侧为共享休息区域—沙发休息区,客户可以在此阅读,放松、游戏。
大堂接待区 ,Reception
大堂接待区 ,Reception
大堂接待区 ,Reception
酒店公共空间规划:一层前台接待区、沙发休息区、快递外卖区、网红楼梯间、桌游厅、酒水吧、排队不眠夜(休闲区)、派对餐区(早餐厅)、无人超市、后场厨房、健身房、更衣间、卫生间(对外)、会议室。

建筑南侧为派对休闲区,尽头是派对餐区。公区北侧为采光井,结合健身房有氧区域,增加了室内采光,在两侧采光井内种植本地特色绿植。标准层中间核心筒区域右侧均为布草间。




前方功能区域-网红楼梯间客通往桌游厅。

网红电梯间,Lift Lobby

装饰节点,Detail Design




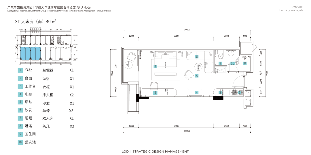
大床房户型 ,kingbed room


好莱坞户型,Hollywood room

好莱坞户型,Hollywood room

套房户型,Suite room

套房户型,Suite room

套房户型,Suite room


主创设计团队:LOD建筑设计事务所
参与合伙人 :
LOD设计总监 : Design Principal Ann Chunlan Yan | 严春岚;
项目经理 : Daniel Zhu| 祝丹;
室内设计:Wenqi Dong| 董文淇;Guoxiang Qian | 钱国祥; Terrence Bai | 白美浩;
深化设计 : Deng Zhu | 祝登;Yunjin Bai |白云锦 ;Xing Chen | 陈星;Yibo Sun | 孙奕波;Zuotu Zhang | 张志玮;
品牌设计、平面设计:Wenqi Dong| 董文淇;
软装陈设、导视设计 : Ying Wang | 王莹;
委托方 : 广东华盛投资集团;
评论