跨越时间之“拱”
很多有名的城市都有一条有名的河:伦敦有泰晤士,巴黎有塞纳河,纽约有哈德逊河。于杭州,无疑是京杭大运河。所谓一座拱宸桥,半部杭州史。曾经有多少美丽的故事发生在这拱宸桥边?老城有老城的气质和空间尺度,那种从容优雅是新兴城区学不来的,可以说拱宸桥的拱代表着历史。

△区位图©九米设计

△京杭大运河上的拱宸桥©图片来源于网络

△沿河场景看西边-效果图过程稿,以实际交付为准©九米设计
大家的很多项目,从武林府,金麟府,传宸府,到咏印明庐都坐落在运河边,运河把这一系列作品串联了起来,位于运河边的咏印明庐也有拱,这是对新古典主义美学和历史文脉的致敬。



到访明庐的人第一眼就会惊叹于明庐的拱,近十二米通高的拱券,通体以石材打造,层层叠涩,气势恢宏。整个明庐有26个这样的拱券,拱券独特的序列感,力量感形成了独特的明庐美学。
相同却又不同的拱,在跨越近400年的时空对话,建筑之美和运河的自然人文之美和谐相处。

△实景照片-水院©是然建筑摄影

△实景照片-架空会所透视©是然建筑摄影

△实景照片-入口©是然建筑摄影

△实景照片-连续拱券©是然建筑摄影
城市风景之“姿”
杭州从来不缺少这样的充满情调的街道片段。
譬如北山街的新新饭店,法国梧桐掩映着三幢风情各异的主楼,有民国和西方结合的青砖拱券,有罗马柱和铸铁栏杆,有八角钟楼…依踞北山山势,新新饭店同样把人活动的室外平台抬高了一层,避免了道路的打扰,也让人更好的观赏西湖。再看看明庐,这样的手法是不是似曾相识。


又譬如,位于中山路的浙江兴业银行旧址,有着鲜明的巴洛克风格,人们总愿意在这里驻足停留,拍照留念,甚至是拍摄婚纱照,将一生最美的时刻定格于此。而街上总有几家有名的餐厅,咖啡厅让人们逗留得再久一点。


△实景照片-住区边界©是然建筑摄影
足够迷人的建筑加上足够长的沿街界面才能让这些街区成为城市的风景,面向城市,明庐以连续拱券和配套建筑呼应,并没有居于高台的感觉,走在街边,就好像走在老城的历史街区。


△实景照片-住区边界的开放性和生活感©是然建筑摄影
面向运河,在游船上能看到明庐层叠的层间线条和通透的弧面玻璃,他谦逊地站在浓密的樟树林之后,展现着自己优雅的天际线。
△沿河透视-效果图过程稿,以实际交付为准©九米设计
我们并没有追求让“咏印明庐”成为一个网红打卡点,但他就是如此出众地立在那里——风姿绰然。也许有一天,明庐的街道也会成为城市的风景,成为人们愿意在这里拍照的场域。
雕琢石材之“书”
整面的玻璃太剔透闪耀,而金属又过于坚硬锐利,在这些材料之间,石材最温润,很多建筑师都喜欢用石材,用了石材,整个建筑都鲜活灵动了起来,各式各样的色彩肌理,在阳光下产生丰富而微妙的光影变化,使建筑表皮仿佛拥有了呼吸的节奏,恰如斯卡帕笔下 “建筑是光影的容器”。

△实景照片-材质和光影的韵律©是然建筑摄影
整个咏印明庐亦如一座石材的博物馆,拱券用的是贝金米黄,庭院充满序列感的景墙也是贝金米黄,入口两边拱圈内镶嵌的是宝格丽绿,地面铺装的是雪白蒙卡,建筑主楼上的圆柱是幻彩紫,明庐图书馆里的拿破仑黑霸气侧漏,此外还有帝国灰,西班牙米黄,白金沙…室内更是石材的百科全书。


△实景照片-材质细节©是然建筑摄影
人类最古老的建筑是用石头搭建的,而最高级的建筑,也许还是要回到石材。
悬浮空中之 “园”
咏印明庐的规模很小,要妥善解决项目的功能空间问题,同时需要创造性的解决方案和精雕细琢的打磨。
于是我们将眼光投向空中,在空间布局上,明庐将地下车库和配套抬起一层,同时做6米架空,如此则所有四幢住宅都设置在12米标高以上,相当于一层住宅就有5层的视野,住宅建筑四面玻璃幕墙,让每个住户都有270度的景观视野,视线总能与运河发生关联,自然、建筑与生活交融互动,实现从“看风景”到“融入风景”的转变。

△北院俯视-效果图过程稿,以实际交付为准©九米设计

△实景照片-与运河的关系©是然建筑摄影
设计创造性地将部分消防登高场地布置在城市标高,正好作为入口广场,人行通过大堂和摆渡梯到达6米的活动层面,主要的消防道路和登高场地通过坡道抬升布置在6米平台,然后通过巧妙的建筑设计和景观设计将之消隐。

△实景照片©是然建筑摄影
住宅楼栋首层全部架空,结合风雨连廊体系,释放出连续、通透的泛会所空间。将传统的“点状”公共配套转化为“环状”的立体漫游体系,形成了风雨无阻的步行网络与活动场域。架空层内整合了休闲会客、儿童游乐、健身咖啡、艺术展陈等复合功能,使其成为连接家家户户的“第二客厅。同时,项目过小难以承载会所配套面积的矛盾也得以缓解。
经典传承之“美”
当设计褪去浮华的衣裳,经典便以永恒的韵律苏醒。我们以光为笔,以石为墨,在城市的空间里书写人文的诗行。每一处比例的呼吸,每一道材质的触感,都是对经典的致敬,设计想要表达的,早已经镌刻在明庐的石材之上——SIGLO DE ORO翻译成中文的意思是:黄金时代。


△总平面图©九米设计

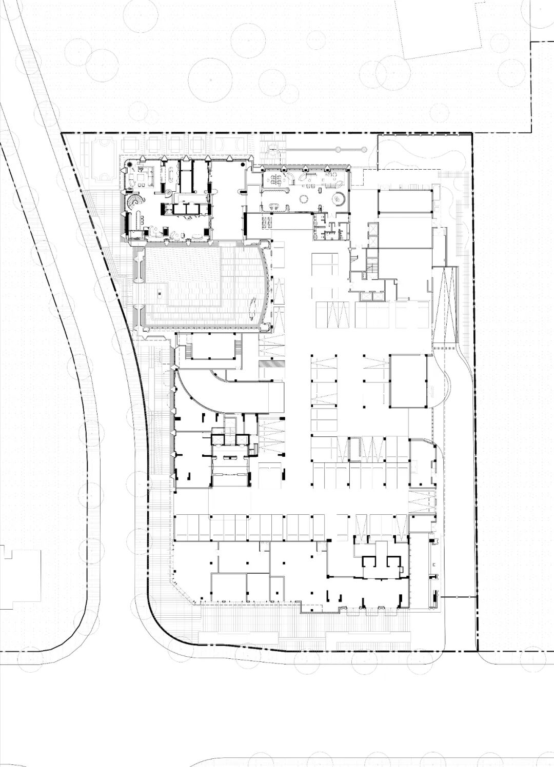
△一层平面图©九米设计

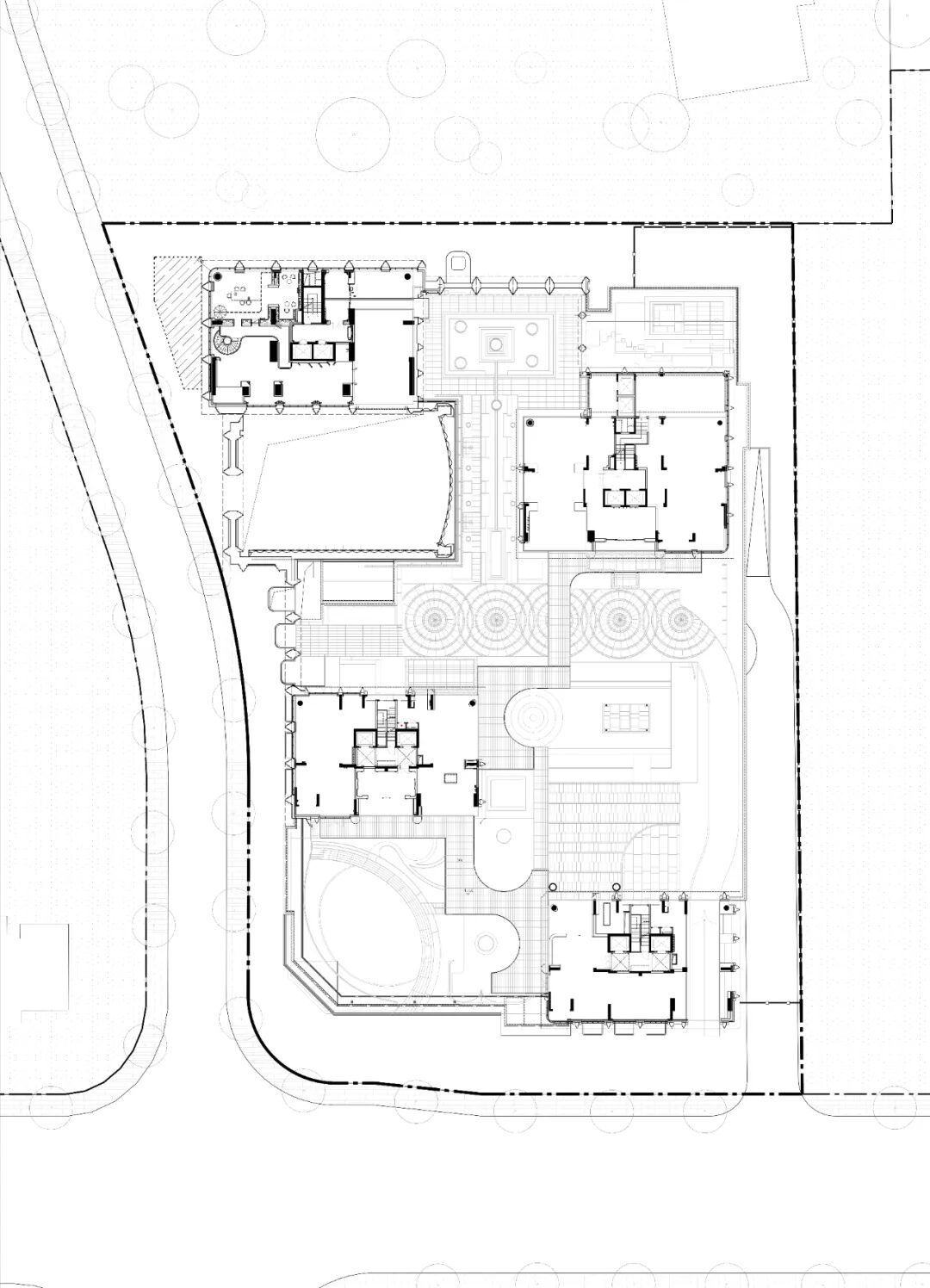
△六层平面图©九米设计

△剖面图©九米设计

△轴测图©九米设计

△墙身立面©九米设计

△墙身立面©九米设计

△石材幕墙节点©九米设计
评论