"世界上最美丽的东西看不见,摸不着,只能用心去感受。"
空间里的旅人--法 . 圣埃克苏佩里 Antoine de Saint-Exupéry
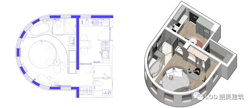
巡游动线:小魔环游纪/食草系荷尔蒙探索/舒适文艺家

"The most beautiful things in the world cannot be seen or touched, they are felt with the heart." - Antoine de Saint-Exupéry
LOD has comprehensively revamped the project in terms of architecture, landscaping, and interior design. Drawing from their understanding of urban renewal in residential products, the result is a refined, comfortable, high-quality living experience and the meticulous design of unique urban architectural elements. we have created a these clean, timeless and elegant architectural space. Translating the building's Bauhaus elements into facade with minimalist silhouettes and graphics.
项目位于北京市朝阳区百子湾路38号,该项目建设规划用地面积5500㎡,其中景观用地面积3137㎡,建筑占地面积719㎡。建筑总面积10369㎡,原单体建筑总建筑高度46.5米。共258间客房,公区617㎡。

动线规划
项目规划中有7个核心功能区:景观庭院、猫薄荷主题体验区、汪星人环形山公园、共享酒吧、洽谈区、休闲区和三个样板间。

建筑外立面设计概念
NEO-MODENIST新现代主义



主入口,Entrance
1.保留了旧色调,底层提升与景观的亲密关系,将建筑改造成一个城中生活气息馥郁的小街区。
2.将北方在地人文传统融入设计之中,文化质感立面。


本项目拥有3137㎡私享庭院,景观设计了爱宠专属区域突出宠物友好及休闲游乐区:汪星人的环形山和猫薄荷主题花园,利用植物、砾石、铺地划分出独立休闲区、景观绿地、地面停车位,供不同需求及场景氛围使用。
1.汪星人的环形山/景观游览
2.猫薄荷主题花园/景观游览



猫薄荷主题花园,Cat and Dog Club

轴测分析图,Axon



景观,Landscape


室内立面细部,Details of the landscape facade
为宠物与小主提供平等、友好、不操心的休闲氛围



作为青年新生活方式的探索者,面对容易感到孤独和自我隔绝的都市人以“一起来一杯”为口号,呈现一个有趣的、有参与感的、多场景的、宠物友好的创意品质青年社区。

本项目公共区域室内面积 617 平米左右,用IP“小魔”视角展开公区体验,公共空间是年轻人新的生活方式的场景延伸,行为模式和空间的形式相结合,构建多维空间,营造主题性场景化设计。









服务水吧则代表暧昧片段,是莫吉托酒精氛围,将时间切换至聚居族群的功能空间 。






户型模块
样板间分为3种风格模块,根据主题设计了不同房型,单间StudioA-6,C-1和1BR D-1比如电竞房、宠物友好房、网红直播房等, 分别对应代表人群斜杠UP、森系捕手、森鲜男主和撸猫小主的小家庭。





* C1户型样板间-仲夏叶绿素 | Midsummer chlorophy 森系捕手




* D1户型样板间-萌物马卡龙主义 | Macaroonism 森鲜男主和撸猫小主







1.防抓沙发+猫窝茶几: 帆布材质沙发·防止宠物抓挠
2.美颜梳妆: 大尺度梳妆工作台·美妆面光与桌面收纳等功能
4.封闭衣柜: 在衣柜模块的基础上做柜门封闭,并考虑底部的猫砂盒位置

2.多用长桌: 办公长桌、梳妆、直播等场景使用,提供直播架空间
3.百变货架: 在衣柜模块的基础上延展,调整为层架+伸缩衣架的形式

B612荷尔蒙星球一孤独经济、食草系男族
2.竞技屏幕: 144Hz 高速显示器,适合电竞、动漫创作等场景
3.置物组合: 可搭配多种配件·完善收纳功能
4.百变陈列架: 在衣柜模块的基础上延展·调整为层架+伸缩衣架的形式

FF&E的设计思考
整体的软装设计在与室内风格相统一的同时,更注重舒适及实用性。
3.SAFARI 风格地毯
4.盐系绿植: 龙舌兰、多肉绿植、吊挂空气凤梨
5.风灯蜡烛





LOD用建筑交互体验的设计方式去追踪千禧世代人群的生活变革,设计之所以有趣是基于洞察需求,呈现多维交互空间体验,基于社交、基于场景氛围呈现。
千禧Z世代倾向于追求有价值的生活,热衷于分享和表达意见,是文化的消费和生产的主要动力。数字游牧民们喜欢在午夜开启社交游戏活动,享受 “懒系生活”。
LOD团队通过创新的建筑交互空间体验设计,提升品牌价值,传达积极的多元设计观念。
"LOD employs interactive architectural design to track the lifestyle changes of the millennial and Generation Z populations. What makes the design interesting is its foundation in understanding their needs, delivering a multidimensional interactive spatial experience based on social interactions and immersive atmospheres.
The millennial and Generation Z generations tend to seek meaningful lives, are enthusiastic about sharing, and expressing their opinions, and are the primary driving forces behind culture consumption and production. These digital nomads often engage in social gaming activities at midnight and enjoy the 'laid-back lifestyle'.
The LOD team enhances brand value and conveys a positive and diverse design philosophy through innovative architectural interactive spatial experiences."
评论