我要投稿
注册 / 登录
在线客服
首 页
HOME
资 讯
NEWS
建 筑
ARCH
景 观
LA
室 内
INTERIOR
品 牌
BRAND
科 技
TECH
更 多
MORE
专 辑
地 产
视 频
周 刊
图 书
招 聘
植物检索
首 页 / HOME
资 讯 / NEWS
建 筑 / ARCH
景 观 / LA
室 内 / INTERIOR
品 牌 / BRAND
科 技 / TECH
更 多 / MORE
专 辑
地 产
视 频
周 刊
图 书
招 聘
榜 单
植物检索
汇京双子座改造更新 | 奥雅股份
阅读:3422
2024-01-23
汇京双子座大厦
坐落于
繁华的
北京
长安街、
建国门CBD商贸圈
,是大悦城控股北京公司在城市核心商圈超级写字楼的再实践。
从客群定位到产品升级,通过升级硬件设施、重新组织业态、重塑空间布局和融入艺术元素,充分发挥设计施工一体化的优势,对项目实施品质管控,使楼宇焕发出高品质的办公场所魅力。
汇京双子座大厦
最初于2005 年为韩国LG集团而建造,于2020年被新加坡政府投资公司(GIC)收购,由大悦城控股并致力打造全新的国际甲级办公综合体。
2022年,奥雅受邀参与汇京双子座大厦周边环境景观改造设计投标,并以优异的方案设计中标。
设计团队希望打造出一个多元内核空间,与外界共栖的同时,面向城市展现国际商务态度的办公场景。改造后全新的汇京双子座大厦成为了融合现代繁忙生活与休憩场所的立体城市院落。
汇京双子座大厦
周边高端商务氛围浓厚,但作为一个建成近20年的地标建筑,各项设施配套已不足使用,其中整体外环境也存在较多使用痛点:
整体形象破旧,地面铺装老化、局部碎裂;
原中央喷泉水景,年久失修,停止运营;
交通流线混乱,人车混行,缺少落客区;
缺少休憩空间,对办公人群户外休憩不友好;
街道家具造型陈旧。
作为旧改项目,存在着诸多限制因素:
为控制总体造价,现有基础结构需保留再利用;
需优化再利用现状水景水电系统;
建筑周边大面积为消防通道及登高面,可改造空间较少;
大厦前广场有地面停车位硬性需求,难以做到人车分流。
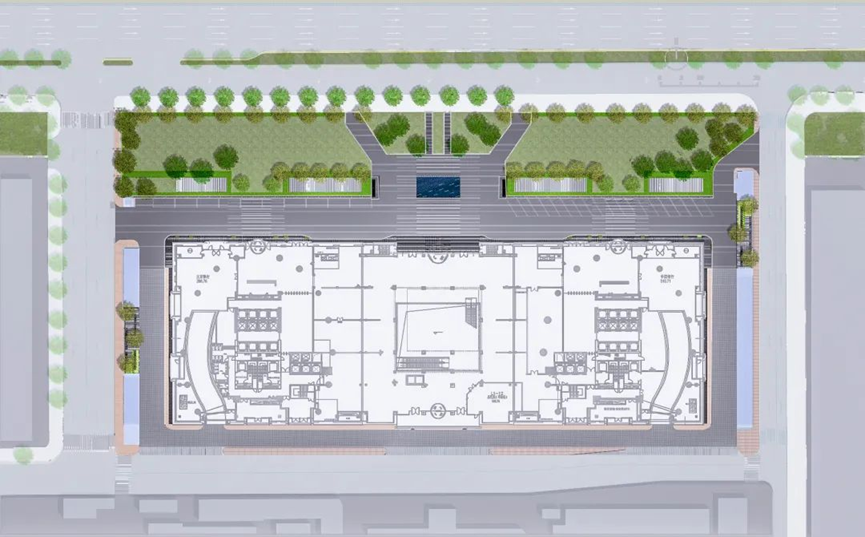
项目自带双地铁上盖天然区位优势,但随着时间与城市面貌的日新月异,外部环境陈旧,内部经营逐渐呈现消极的一面。此次更新改造涉及建筑外立面、室内、景观、视觉设计等多专业。设计挑战在于改造期间项目不停业,以致协调及运营难度相应增加。
建筑裙楼外立面的横向肌理石材装饰,凹凸明暗,形成了水平向的“光线”。
室内改造的重点区域为两栋双子塔中间的商业裙楼 ,室内设计团队将原来阴暗、封闭的垂直流线竖井结构改造为一个明亮、多面立体、以用户为中心的公共空间,形成了一个约30米挑空的阳光中庭;
VI设计更是以“日出东方”的理念打造了“光芒四射”的主视觉logo形象;
由此,景观场域也以“光”作为设计语汇,与
建筑、
室内、和VI(视觉形象)一同,从内而外共同讲述关于“光”的故事。
“
光线
在颜料涂层上跳跃舞蹈,
而画布平面静止不动。一
个全新的
空间
就此形成。”
----皮埃尔·苏拉吉 Pierre Soulages
法国抽象艺术家皮耶·苏拉吉被誉为“黑与光的画家”,他在抽象表现主义和不定形艺术领域留下了重要的痕迹。设计灵感源自于皮耶·苏拉吉的艺术作品,通过利用颜料的肌理,将光线具象化,使光线在黑色颜料上跃动,创造出令人无限遐想的宇宙、星空场景。
01
光的指引
夜晚温暖的光线从中庭商业和两侧办公塔楼的出入口溢出,形成鲜明的虚实对比,创造出明暗交错的强烈效果。光线在场地上投射出三束光。沿着这三束光的引导,我们规划了空间,并通过铺装色彩的明暗差异来突出入口空间,打造了三个落客港湾。
其中,中间的光线最亮、最远,一路向北,投射到中央广场上的水景处,然后缓缓从地面抬升,直达天空,形成了中央的”星空客厅”。
光线在东西方向上平行于建筑向两侧延伸,借助出地面的风井围合形成了两个相对独立的”光荫休闲花园”,为写字楼的办公人群提供了工作之余的休憩和交流场所。
从建筑立面寻找对应关系,用深浅的石材肌理变化模拟光影,将光从建筑引向室外地面;同时通过石材整体颜色的变换,界定出人行与休憩的空间;主入口处,则保留现状水景的水电条件,结合双子座流星雨的灵感对水景形式进行升级。
02
星空客厅
“星空城市会客厅”改造后的中央水景如一幅徐徐向上展开的画布,朝向双子座大厦的主入口展开一场浪漫的双子座流星雨。画布上,一池粼粼波光引人驻足。水流顺着弧形池壁自上而下缓缓流淌,形成一层薄薄的水膜,微风起,吹皱一池水,泛起层层波澜。
水景如屏,映射着变换的光线和周边繁华的街景,与天空对话、与建筑对话、与城市对话,与过往的人群对话。
在这里每个人都能找到自己的乐趣。孩子们充满好奇心和喜悦,欢快地在水中戏耍;从写字楼里出来的白领们则在这里歇息,聊天或陶醉在缓缓流淌的水幕中,摆脱繁琐工作的压力;老者静坐于旁,长时间凝视着水幕,似乎在与之对话,享受宁静;路人经过也会驻足触摸水面,拍摄并珍藏这美好瞬间,然后欣喜地继续前行。
夜幕降临,星光地灯在广场上亮起,熠熠生辉,灿若星辰。灯光轨迹仿佛北半球双子座流星雨的轨迹,从东北方向飞来,划过整个广场和水池,洒落一池星光。
升旗台改造为可供人停留坐歇的场所,放松的欣赏这一池星光。
至此,这场流星雨才全部谢幕。从建筑出发的“光”,最终在夜晚以流星雨的方式,洒回这片土地。水景如幕,向上升起,朝向长安街的一面也镶满了点点星光,与建筑入口溢出的暖光交相辉映。
03
光荫花园
延续铺装的横向肌理,光线从东西两侧抬升而起,形成了一道光影交织的屏风。这道屏风屏蔽了街道上的喧嚣声,为周围的写字楼办公人群和居民们打造了一处难得的休憩空间,让他们能够放松身心社交交流。清晨和日暮时分,阳光将树影投射在屏风上,使这个区域更加悠闲放松拥有一种独特的韵味。
休闲坐凳采用云黑石,黑色的基底上隐现白色云纹,更加强了整个空间的光影感。坐凳结合灯光处理,夜晚如悬浮于空中,轻盈自在。
设计师说
随着城市发展模式由增量转为存量,以往的大拆大建已逐渐被城市更新所取代。
城市更新项目通常位于已成熟的城市片区,具有复杂条件和很多限制因素,但也因为历经岁月洗礼,场地本身蕴含更多故事可挖掘。
例如本案,景观改造面临诸多限制,但作为旧改项目,我们可以直接感受到现场气氛,明确场地问题与业主需求,并从建筑外立面和夜间入口处的光线启发设计。根据场地问题和业主需求调整空间布局和交通流线,最终完成设计,为老项目注入新活力,继续发挥其价值,甚至创造新的价值。
在存量时代,城市更新是每个城市都会面临的问题,期待未来能参与到更多城市更新项目中。
项目名称:
北京汇京双子座
项目地点:
北京市 朝阳区
项目类型:商业办公
景观面积:6000㎡
客户名称:新加坡政府投资公司(GIC)/大悦城控股北京大区公司
景观设计:奥雅北京公司 项目九组 创新设计三所
景观施工:北京亚木生态环境工程有限公司
设计时间:2022.06
竣工时间:2023.07
ARCHINA 所有平台上发布的项目、招聘、资讯等内容,部分由第三方提供或系统自动收录。资料版权属于第三方,若信息不实或涉及版权问题,需要版权方和第三方沟通,ARCHINA 将配合对接,并在确认无误后删除涉及版权问题的信息,相应的法律责任均由资料提供方承担。
推荐阅读
天津航运服务中心 | COLORFULL昱景设计
天津中海·环宇天地 | 景立方设计
沈阳数字经济产业园 | 奥雅股份
广州壹品国际总部办公室 | TTD本至设计事务所
海宁浙大国际校区北侧办公园区绿化景观设计及建筑开发方案设计 | 奥雅股份
北京大兴庞各庄临空产业园 | 奥雅股份
评论
请 [
登录
] 后评论
点击收藏,并建立自己的在线数据库
关于项目
设计公司
奥雅股份
标签
商业办公
项目所在
中国
北京
朝阳
手机扫描分享
评论