COLCA秘鲁西班牙餐厅
项目类型:秘鲁西班牙餐厅
项目地址:上海市衡山路
完成年份:2016年
规模:450平方米
摄影:M2STUDIO
Logo设计: Marianne Kaulima

Colca位于上海原法租界修复一新的都市街区里,用些许的图形、纹理和颜色巧妙地捕捉到了秘鲁的活力。
Colca captures the vibrancy of Peru with hints of patterns, textures and colors in a renovated urban block in Shanghai’s Former French Concession.
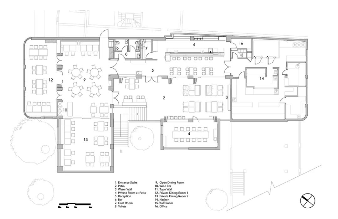
整个布局基于一个露天的就餐平台,作为整个项目的核心。马赛克水景墙为座位区域营造了一个宁静的背景。拉丁风情的酒吧一直延伸到就餐平台,对面是一个私人用餐室。
The layout is based around an open-air dining terrace, which serves as the heart of the project. A mosaic water feature wall creates a tranquil backdrop for the seating area. The Latin-inspired bar transitions into the terrace, opposite of a private dining room.
再生木门和滑动屏风为主餐厅提供了丰富的灵活性。它们可以关闭后为私人活动提供空间;也可以打开,创造一个有充满活力的主餐厅。高高的天花板和裸露的横梁由一个不对称的蓝色墙壁维护,同时也巧妙地隐藏了机电设备。
Reclaimed wooden doors and sliding screens provide flexibility in the main dining room, which can be closed for private events or open to create a lively dining room. The high ceiling and exposed beams were maintained through an asymmteric blue stucco wall, which conceals the MEP equipment.
得益于来自科尔卡大峡谷地形的灵感,设计师用一个照明功能墙渲染出了主餐厅的氛围,将气氛带回神秘的秘鲁起源。
An illuminated feature wall, inspired by the topography of Colca Canyon, creates the ambiance in the main room, while connecting back to Peruvian origins.





评论