日本工业设计风格的集合住宅 | Eureka&Maru Architecture
阅读:4755 2018-08-29

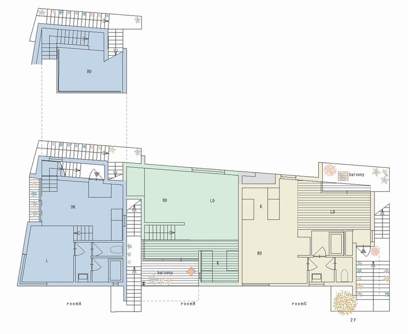
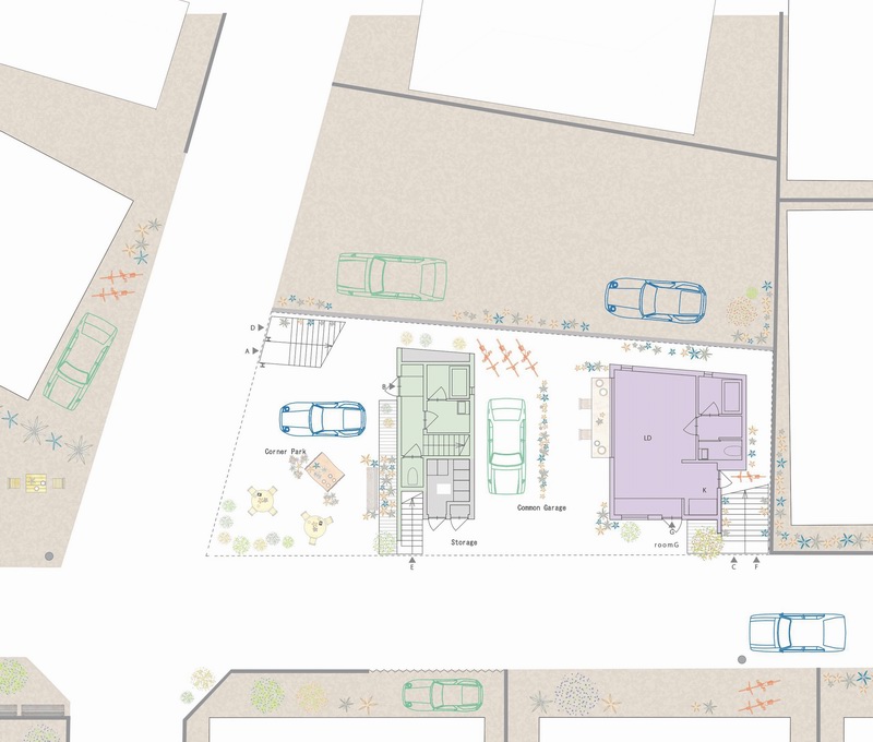
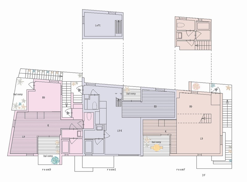
这是位于日本埼玉县的一座集合住宅,住宅位于一个路的交叉口,容纳了七户人家,首层的红色区域作为七户人家的公共使用区域。

 

 

来自当地的两个建筑设计团队Eureka与Maru Architecture合作完成了这座名为“Corner Grain”的住宅。建筑几乎占据了整块用地,在转角处挖空了三分之一空间作为外活动场地,这里还安装了秋千和吊床。中间也掏空了一块,摆上桌椅板凳后营造出一处惬意室外共享客厅。

 

 

楼上为了保证每户获得良好的日照与相互不影响的视线,建筑师将建筑设计得“里出外进”不规则,从而创造出更多可开窗的“面”以及更多的阳台和露台。

 

 

和许多日本建筑不同的是,Corner Grain集合住宅由于体量较大,功能上也较私人住宅复杂,所以采用了钢结构。可以看到,钢梁与压型钢板楼板都直接暴露在外,省去了吊顶空间同时看上去还蛮有工业设计感。

 

 

 

 

 

 

 

 

 

 

 

 

 

 

 

 

 

 

 

 

ARCHINA 所有平台上发布的项目、招聘、资讯等内容,部分由第三方提供或系统自动收录。资料版权属于第三方,若信息不实或涉及版权问题,需要版权方和第三方沟通,ARCHINA 将配合对接,并在确认无误后删除涉及版权问题的信息,相应的法律责任均由资料提供方承担。


评论


请 [登录] 后评论

关于项目