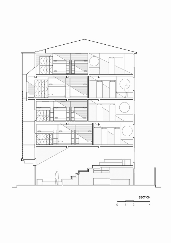
这是位于泰国曼谷的一家青年旅店——Bed One Block Hostel。酒店由A MILLIMETRE设计,现代风格且简约时尚。Bed One Block Hostel位于一座五层的老建筑中,面宽仅仅4米,进深16米,简直就像一个胡同。

经过改造,首层作为入口大厅,往里走特制的阶梯式家具形成一个有趣的休息区,二层以上就是酒店客房。一个类似学校宿舍的出租床位的房间,有着公共的客厅及卫生间。除了一张床,每个床位还配有一个储存柜。

全白色的外立面的处理在街面上非常醒目,穿孔板形成鳞片样式的图案,让光线可以轻松进入到室内还能很好地保护房间的隐私。
评论