大理慢屋·揽清设计酒店 | IDO元象建筑
阅读:7185 2018-08-30

苍山洱海旁 你在我身边
这次的夏天和从前不太一样
单车在经过田野 你轻轻唱……


 

简介

“慢屋·揽清”项目是IDO元象建筑(Init Design Office) 近两年在云南大理设计的两个设计型酒店之一,场地位于葭蓬村洱海畔,是一个基于原有农宅的改扩建项目(改造前300㎡,改造后1000㎡)。从最初草图至施工结束一共花了两年半,元象建筑参与了设计建造的全过程:选址策划、建筑方案及施工图设计、室内(包含软装、家具设计及现场制作)及景观设计,施工现场等环节进行着全程的把控,目前已经竣工并投入正式营业。

 

 

坐标

慢屋·揽清位于大理洱海环海西路葭蓬村,葭蓬村是环洱海最小的自然村,村庄周围环绕着独有的自然景观—海西湿地:杨柳垂荫,芦苇飞絮,水鸟游弋,天蓝海清。整个村庄宁静秀美,五六间小客栈沿湿地岸线散布,慢屋就在其中之一。

 

 

背景

元象建筑在过去多年的实践中,完成了不少商业项目:大到城市综合体,小到私人会所。但由于各方面的原因,特别是受制于西部地区整体并不高的甲方素质——很多真正好的想法并未能被实现。我们认为:一个好的建筑必定是多方合力的结果,特别需要一个“好”的甲方。为了能盖一栋让建筑师自己满意的房子,2013年初我们决定“那就自己做一次甲方吧”,于是我们决定“去大理盖房子”。

 

 

从乙方到甲方,我们遇到了很多新的问题,于是我们鼓动了身边几位有同样追求的好友,来自重庆合信建筑设计院的建筑师以及来自鼓浪屿慢屋的橙子一起加入到投资建设团队中,一起成立了慢屋酒店管理有限公司,一群有相同梦想的建筑师一起努力。施工现场需要把控,各种关系需要协调。方案同样是改了无数轮:只不过这次是给自己改 —— 过程中我们意识到“其实作甲方也挺难,很多实际的问题需要面对”。——还好办法总比问题多,在解决实际问题的同时,我们努力坚持着建筑学的基本准则。

 

 

角色转换

两年多时间里,我们的角色既是甲方又是乙方。

  • 精心策划,从考虑使用者的体验开始设计:分析酒店客人的使用行为模式,注重使用者的体验,做到“设计创造价值”

  • 控制造价,强调“适宜的建造策略”:在相对较低的建造成本情况下,以及在大理相对落后的施工技术条件下,用建筑师可以控制的施工方式做出更讲究的空间品质。

  • 强调社会责任感:在洱海环路市政管网不健全的背景下,在有限的投资成本下,花数十万元为项目配置中水系统,污水处理后可作为庭院景观用水,不向洱海排一滴污水。

  • 建筑师的话语权:建筑师为主导的开发建设,推动项目的建设及运营走向良性,达成使用者、业主及社会多方共赢的结果,而非之前房地产粗放开发时期开发商一味的追求资金回报率的传统开发模式。

  • 使用后评价对设计的促进:目前客栈已经投入使用近一年,客人的使用反馈作为真实存在的建筑评价,将是我们今后酒店设计改良的依据及动力。

 

 

我们认为这是一种模式的转变,特别是在当前经济转型下,在后房地产时代下,建筑师的角色定位或许可以重新思考?

 

 

坚持

朴素的设计出发点:不做标新立异的建筑,而是一次“当代乡土”的尝试,让建筑真正的属于这个场地。努力尝试做到:尊重自然环境与地域人文、注重设计的新旧关系、注重创新,设计创造价值、注重生态策略及环保。

 

 

  • 属于场地的建筑

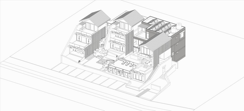
布局:控制尺度,将建筑体量化整为零,多个坡屋顶与周围农宅尺度相呼应。

边界:石头围墙的介入,作为边界存在,让客栈与周围邻居之关系既有所区别,又有所联系。

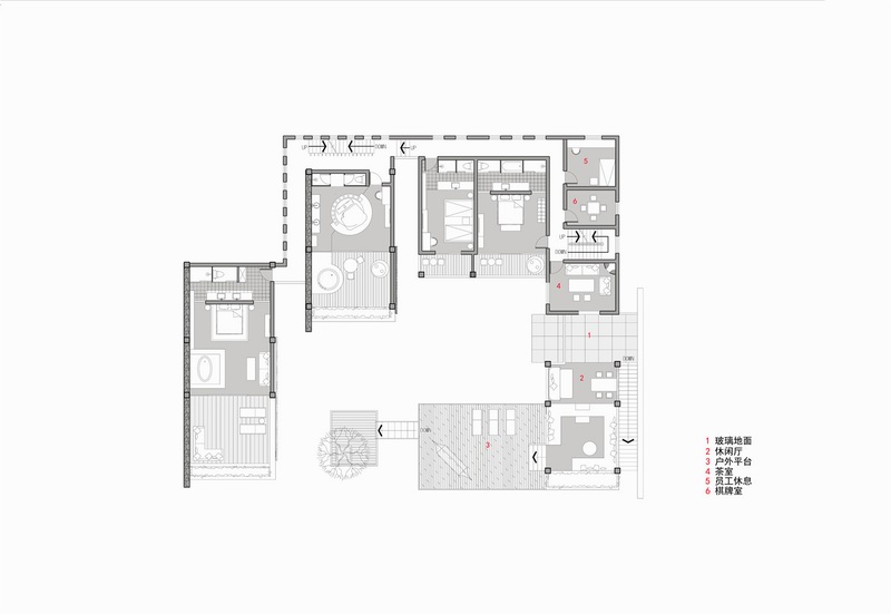
多层次的公共空间设计:创造多层次的的公共空间体验,从多维度建立建筑与洱海的关系,让使用者可以各取所需,互不干扰。这个设计最难的是要跨过面前的马路欣赏前面的洱海水景。建筑与马路之间的关系很难处理。我们采用了用了一个半下沉的公共空间,来塑造一个双重的联系。空间下面通过隔墙低下来的地方,可以建立与水景的心理联系,空间上面新塑造了一个平台,建立起与洱海水景更为直接的关系。

 

 

这个平台用了同建筑主体不同的结构方式(钢结构),其标高也有所降低,同一楼地面建立起更亲近的关系。这个平台右边所接的建筑是开敞的,这个动作,一来让底下上来的流线始终处在宽大的室外感之中,让二楼更有一种地景感而不是建筑感,二来,从马路上看,建筑也显得更加空灵、轻巧,不像周边房子那样很实。

 

 

客房设计多样性:一共13间客房,设计创造价值:每间客房都拥有独特的景观,与场地发生了直接的联系。做了10个不同的房型,创造多样性的体验。

 

 

与原有房子之间的关系:新老房子之间的交接设计得比较自然,在结构处理和空间功能处理上都很直接,在形态上也有延续。

 

 

  • 关注现代建造与传统之关系

低技作为策略:在造价及当地施工条件限制下,选择了相对常规化的结构和营造体系,具有普适性。

传统材料的当代表达:关注现代建造与传统之关系,在框架系统下用石头墙砌筑界面(当地工匠的一种成熟做法),用质朴材营造客房度假氛围。

 

 

旧物再利用:家具陈设使用当地拆除的老木房梁改制,体现了时间的痕迹与一种在地状态。植物与生活:水院院心种植着百年的古茶树,摘下来的叶就可以在火塘烤制。院子里的石榴,梅子,李子树的果实都会泡制成酒,那应该是到达时的欢迎饮料。后院有一块菜地,摘下来的叶就可以端上早餐餐桌。设计师意图向使用者传递简单、质朴的生活理念。

 

 

  • 生态策略与绿色环保:

除了“在地性”,我们还强调作为建筑师的社会责任感。使用太阳能热水系统,充分利用当地气候优势。花6位数设置10吨级的中水处理系统(在大理环海路市政排污管网不健全的背景下),为的是“不向洱海排一滴污水”,自净回用作为景观用水,以负责的态度表达着对自然环境的热爱:并且在客栈主入口设置了中水系统的展示窗口,以便客人传递环保设计理念。

 

 

  • 遗憾与惊喜

原设计为单坡屋顶(模型照片),希望是一个更现代性倾向的新乡土建筑,后来在施工过程中遇突发的风貌控制,只有改为双坡屋顶,略显遗憾。惊喜的是客房内部在双坡屋顶的框景下,与湖景共同构成更为精神性的空间,这点是我们在改方案时未曾想象的。

 

 

摄影:存在建筑

 

 

 

 

 

 

 

ARCHINA 所有平台上发布的项目、招聘、资讯等内容,部分由第三方提供或系统自动收录。资料版权属于第三方,若信息不实或涉及版权问题,需要版权方和第三方沟通,ARCHINA 将配合对接,并在确认无误后删除涉及版权问题的信息,相应的法律责任均由资料提供方承担。


评论


请 [登录] 后评论

关于项目