看那座住宅!
哪座?
那座,That House!
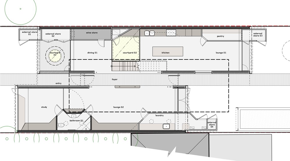
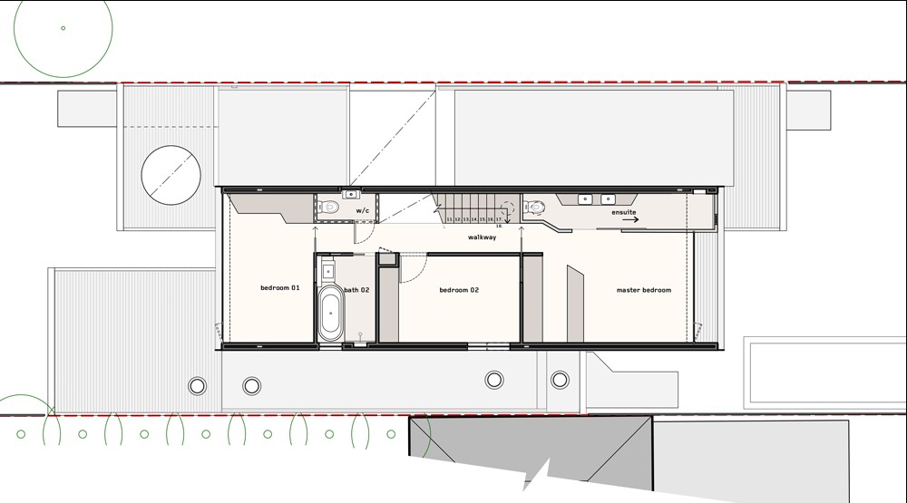
不要慌乱,这座位于墨尔本的住宅就叫“That House”,一个由三个类似集装箱的盒子摞起来组成的房子。设计团队Austin Maynard Architects对于建筑给使用者带来的生活感受非常重视。其曾经设计的《童话般的小”村落“居所 Tower House》曾经惹来不少的围观……
That House的用地比较狭长,左右都有邻居,为了在保证私密性的前提下获得更多的院落、露台、花园,设计师将建筑的体量化整为零,以三条相互错开的立方体搭接,产生了生活想要的一切,阳光、空气、空间……

建筑主体的盒子两端都设置成毫无保留的大玻璃,就像一个望远镜,将景色与自然全部吸入内部。底层两个体量之间的缝隙作为前后院贯穿的通道,使用空间分布于通道两侧。
前院有花草树木,石头小路,后院有绿色的草地和蓝色的泳池,屋顶可以轻易到达,可坐在那里聊天喝茶。你简直可以将房子理解成花园里的一个大家具,人的尺度仿佛被缩小了~
“大的房子是城市环境的毒瘤,同时也是社区文化的灾难……”Austin Maynard Architects团队的设计师谈到。

评论