瑞典LECOR钢结构生产厂 | Kjellgren Kaminsky Architecture
阅读:3185 2018-08-31

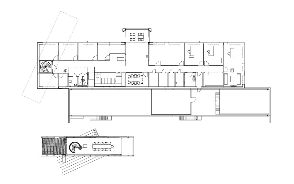
LECOR是瑞典一家生产钢结构的厂商,为了显示他们的优质产品,他们为自己建造了一座既别致又好看的办公楼。其中架在屋顶的会议室尤其凸显其钢结构所带来的轻盈之美。办公楼的设计是LECOR与建筑公司Kjellgren Kaminsky Architecture合作完成。正式这个空中会议室的设计,使得这座不大的建筑成为了周边的标志性建筑,从高速路下来很明显地可以看到它。

建筑摄影:Kalle Sanner


ARCHINA 所有平台上发布的项目、招聘、资讯等内容,部分由第三方提供或系统自动收录。资料版权属于第三方,若信息不实或涉及版权问题,需要版权方和第三方沟通,ARCHINA 将配合对接,并在确认无误后删除涉及版权问题的信息,相应的法律责任均由资料提供方承担。


评论


请 [登录] 后评论

关于项目