







对于建筑师来说,改造一座由户主设计或更新的私宅是最复杂不过的项目。不过对于美国奥斯汀的Miro Rivera事务所的Miguel Rivera来说,改造自己的住宅是轻车熟路的一件事,也证明了该事务所为什么能够获得如此多的赞誉。
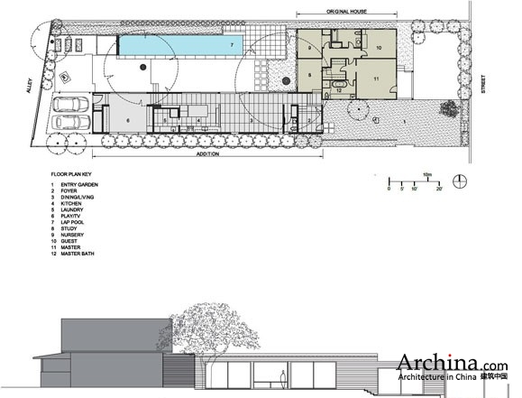
这座住宅原建于1917年,是一座平房,房间面积不大,窗户也很小。改造后,大幅玻璃板嵌入到立面上,并增加了一座新的附楼,向后院的池塘打开。附楼安装了落地滑动玻璃板,能够与外围空间连接在一起。附楼粉刷成白色,与老楼区别开来,后者是用绿色粉刷的,与场地上葱绿的植被色调吻合。
Rivera表示,该项目的主要挑战是场地的局限,50英尺的狭长地块种植了很多橡木,而且周围也是历史性的邻里。新旧建筑之间的转换亦花费了很多心思。
内部空间的白色装饰和拉美风格的艺术品沐浴在自然光照中。入口处进行重新定位,但保留了原有的嵌板屋顶、木质窗框、装置以及松木地板等。
评论