
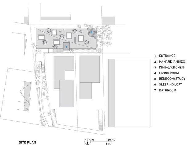
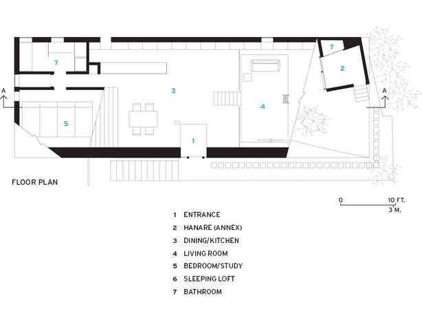
藤本壮介(sou fujimoto)设计的这座(House K)是一座月牙形状的狭长住宅,位于日本大阪东北部密集的城市结构中。场地呈不规则的L形,三面被相邻的房子压迫,一面与一几丛小树接壤。因此出去建造房子的空间很难再有室外活动空间。
于是藤本壮介(sou fujimoto)将house K从一侧慢慢从地面升起,直到最东侧结束,形成一个大斜坡,同时作为建筑的屋顶,于是这个大斜坡便解决了急需的室外活动空间——一个丰富而有趣的大露台。露台上还设置了一些金属树池,里面长出的几颗小树更为这里平添了不少情趣!
藤本壮介(sou fujimoto)的创意总让人觉得不可思议,往往觉得这样的场景似乎只能在日本漫画中呈现,然而它们却一个一个真实的发生了!








评论