
斯洛伐克JRKVC工作室设计了一座位于首都布拉迪斯拉发(Bratislava )附近的小房子,房子的主人是一位单身妈妈和她的女儿,以及女儿的男朋友。小房子共85㎡,北侧山墙全部为玻璃材质,傍晚来临时透出室内温馨的橘色光线~
私家住宅是当地区域发展的一项新举措,JRKVC工作室将该住宅的北侧山墙统一用三重玻璃幕墙代替,从而让北侧优质的乡村景观尽收眼底,同时避免了南侧邻居的视线以及阳光的直射升温。
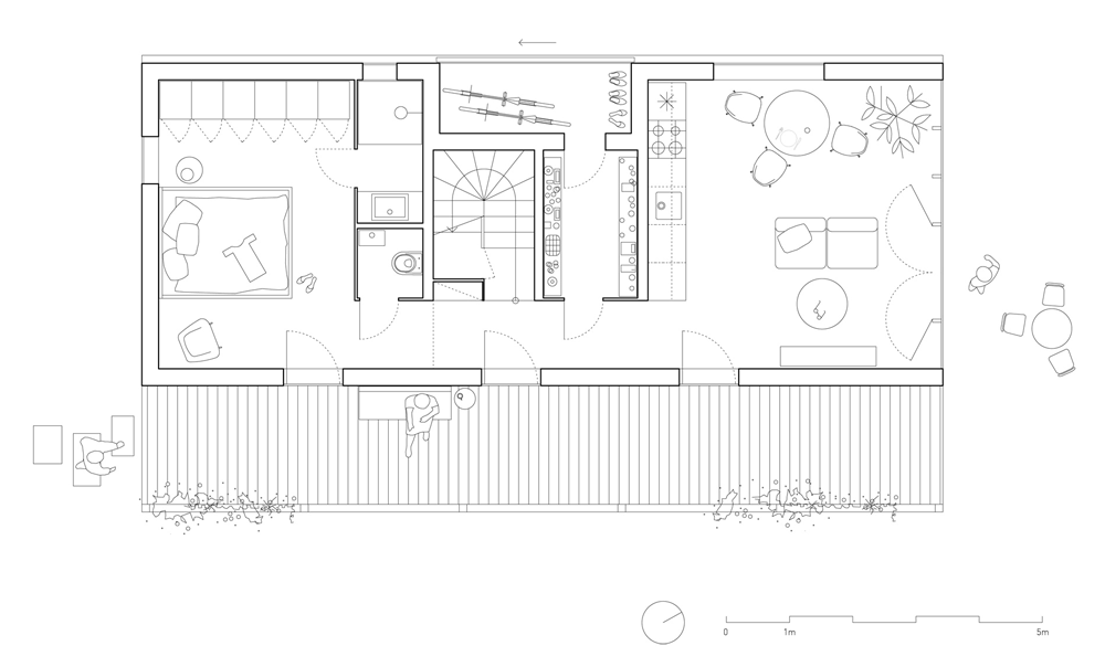
由于斯洛伐克地区大部分时间天气温暖,所以将玻璃山墙置于北侧便理所应当。建筑东侧为外廊,提供了惬意舒适的纳凉休闲空间。
室内陈设朴实无华,首层作为厨房餐厅以及妈妈的寝室,二层作为女儿的卧房并设有一处书房空间。看过这里突然觉得生活好安静……

评论