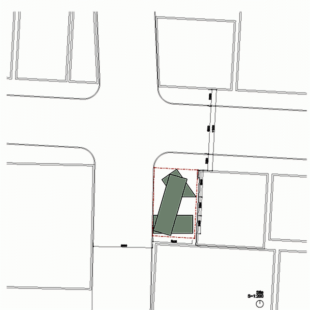
这座代号CC4441 的工作室位于日本浅草(Asakusa )与秋叶原(Akihabara)之间的鸟越(Torigoe ),这里是一个老城区,聚集着许多的小工厂,例如皮革加工,手工纸制品以及装饰物制作等。业主希望这里能成为自己的工作室以及妻子的画廊。
由于场地过于狭小,Tomokazu Hayakawa Architects的建筑师干脆大胆地在地块上放置了几块二手的集装箱作为业主的工作室,认为这样更符合一个小作坊的感觉(业主是不是太容易糊弄了……)。

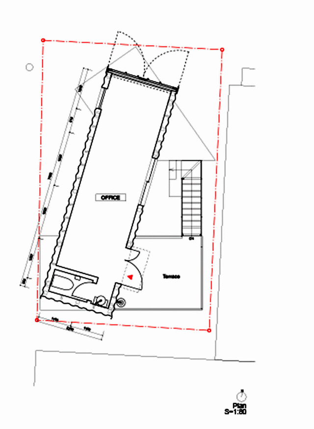
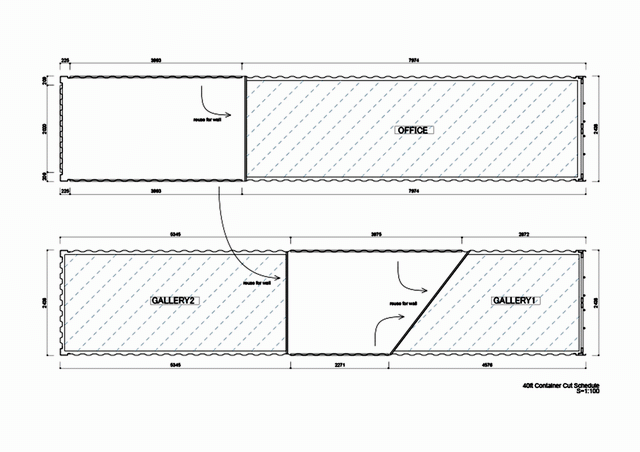
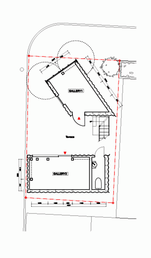
当然,经过建筑师的改造与再设计,业主的要求被得以实现。首层作为画廊,二层作为工作室。12米长的军用海运集装箱在一端设有舱门,从外面可以正常开启。这样便有了与外界互动的“窗口”
建筑师仔细斟酌了舱门的开口方向,首层的两个箱子被局部切断后并靠二层的箱子联系在一起,因此首层竟然还空出了一个小院空间。由于日本当地的建筑规范限制,这种在世界范围内流传广泛的标准海运集装箱不允许直接当做主体建筑物,所以建筑师另外做了木质结构与钢缆进行了二次加固处理。
评论