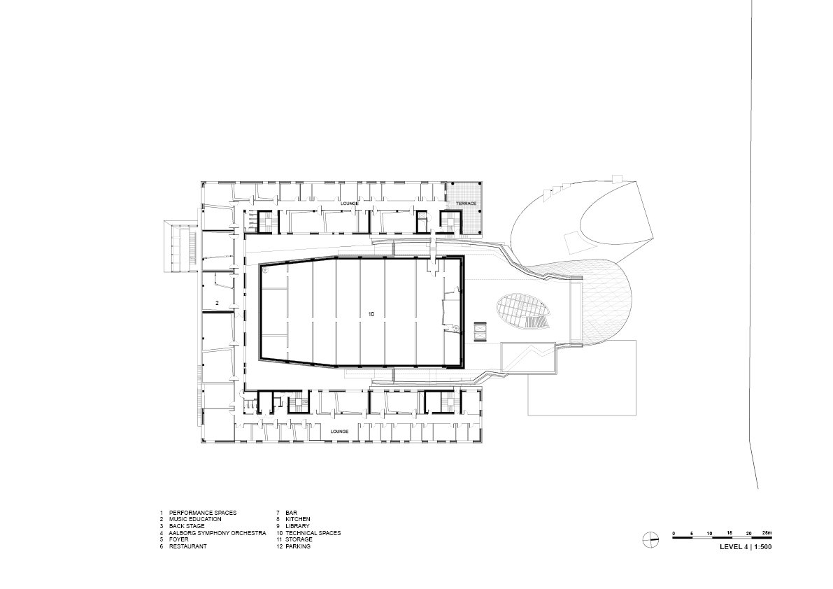
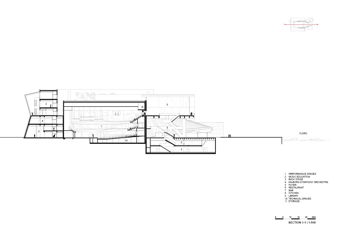
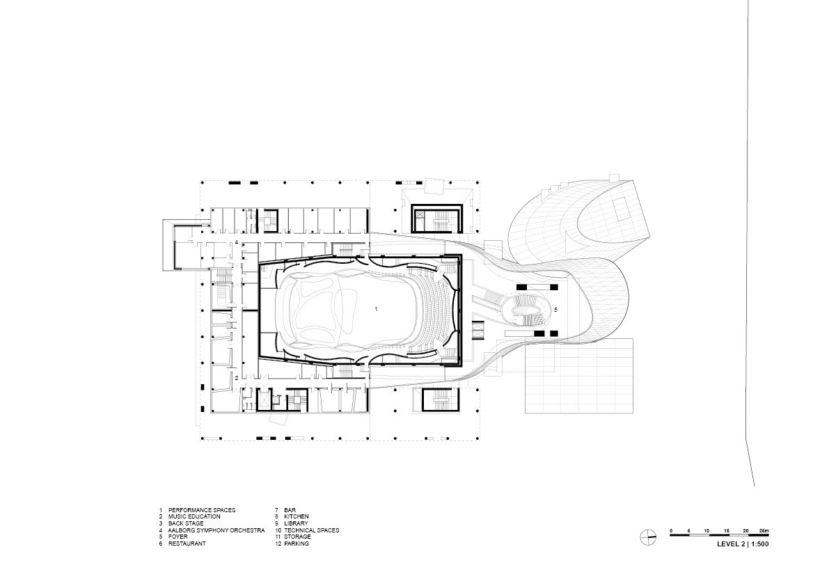
位于丹麦北部港口城市奥尔堡的 House of Music(奥尔堡音乐厅) 由奥地利著名解构主义建筑代表蓝天组(coophimmelb(l)au design)设计。夸张的造型和复杂的空间依然散发着强烈的蓝天组特征。

这座17744平方米的建筑既是一座文化建筑又是一座教育设施,四座围绕的U形空间灵活设置成排练厅及教室供表演和教育使用。核心部分的主大厅可容纳1300人,设计师通过与声学专家的紧密合作,打造出一座世界级的音乐殿堂。经典的马蹄形空间使音响和视线得到了最大的优化。

“建筑设计的想法可以通过建筑的外形解读出来,没错,音乐学院拥抱着音乐厅……”蓝天组的主将沃尔夫·德·普瑞克斯(Wolf D Prix)先生讲到。


评论