
项目地处珠三角冲积平原侧近的丘陵山地之中。森林茂密,植被丰富,湖水丰沛。
中国的珠江三角洲地区对外开放最早,人文环境也因此比较开放,易于接受新鲜事物。物产丰富,人民富饶,对外来事物进行尝试的欲望和实践的机会也相对较多。业主方将这个项目定位为带有异国风情的小镇。所谓“异国风情”,无论是西方模拟东方,或者东方摹仿西方,后人摹仿前人,都会带有戏谑的夸张,无此,也就无从谈“风情”,无有“异国”的印象意味了。



业主方负责设计的部门在提出设计要求时,便具有前瞻性的提出不要将设计做成带有具像性质的,带有强烈地域风格的形态,这一点,和设计方不谋而合——设计师反对照猫画虎的模仿,原因很简单——一是不可能模仿得惟妙惟肖,即便是惟妙惟肖了,整个环境的气场也不合适,很容易使项目变质为低劣的东施效颦。通过对项目的自然环境和人文意向考察后,尤其是综合考虑了业主方营销部门的想法(营销部门希望带有强烈的东南亚色彩),认为作为历史形成的文化圈,广东地区本来也存在马来文化的影响,气候也相仿佛。在这一层面上,有一些这类色彩的体现,自在情理之中。但不能将具体的地域文化风格作为现实的描摹对象,而是在“印象”中寻找表达的方式,它是人内心中带有共性的想象异域在现实状态下的体现。

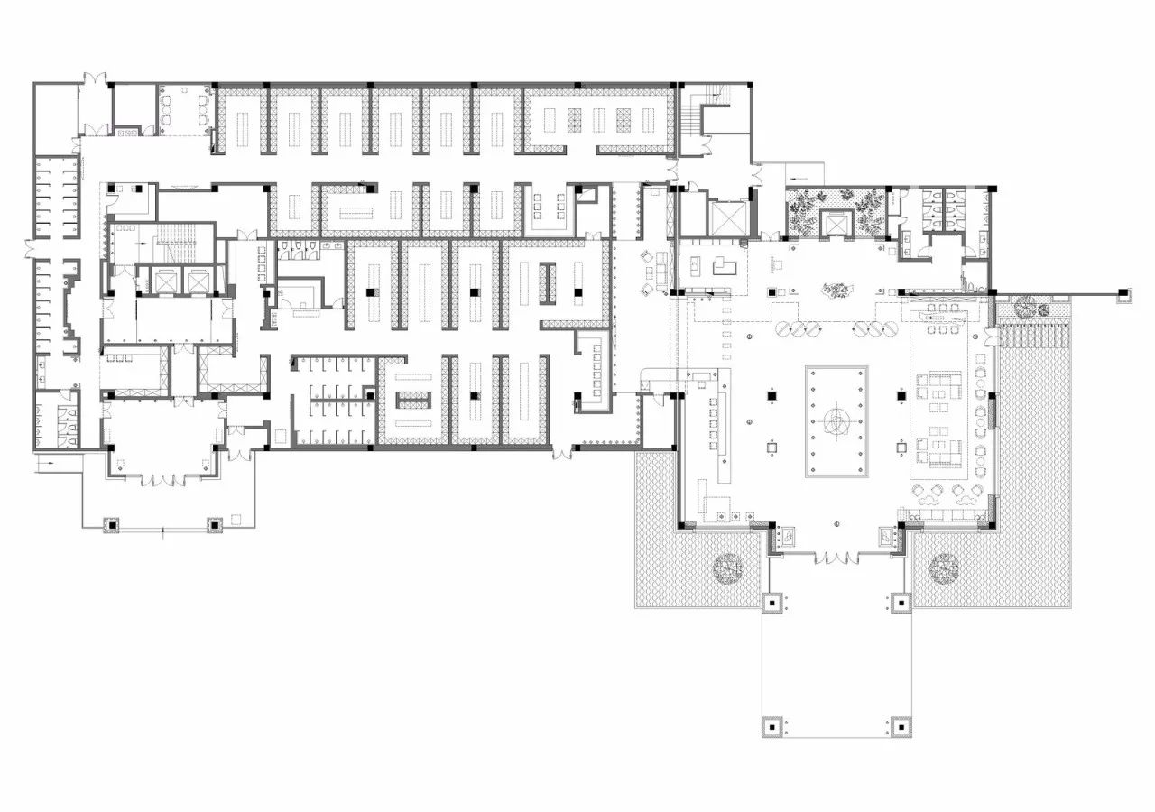
作为带有酒店性质的温泉项目,大堂当然是设计中最重要的部分。
中国人对形式上的壮观阔大偏执的喜好,不知起于何时。门中写“活”的故事大概短时期内不易再现。无论商业建筑或是政府、公共建筑,总以“大”为好。然而“大”易不当,易空。
该项目的大堂接近六百平方米,门厅阔度十米,内空一览无余。设计师因此在设计过程中在大堂安排了一个一分为二的莲花池,中间以小桥相衔。用意是将户外的自然物景有机的延伸到室内,同时在莲池两边的垂直面上各增加两条立柱,既为这个巨大的单体空间增加一个可供玩味的细节,又可以丰富空间层次,削弱一下“空”的心理感受。唯一有些遗憾的最终在实施过程中取消了大堂中莲池的设计。


一个大型的公众场所,在功能分区的层面,将人员合理分流是设计中最要紧的部分。几千平米的商业休闲空间,意味着相应众多的人群。要将这些人群各有区处,不至产生喧嚣嘈杂,对于设计师而言,在平面上解决这个问题后,才谈得上空间的舒适性,也才谈得上设计的合理。便是譬如引水,须导之有向,聚不漫漶。


项目针对的客户大致可分为高端VIP,团客和普通散客。设计师在设计的过程中引入“流水”的概念——“问渠那得清如许,为有源头活水来”。宋诗爱究理,谓之“宋骨”。朱熹的诗是有道理的。导人流如引水,在导之有向,互通生息,聚而不漫。因此,在方案中,设计师先将人流分作两股,犹如花开两朵,各表一枝——在大堂的雕塑后面安排一条能直达三层的比较隐秘的专属通道,首先将高端客户与团客和普通散客做分流,各归各处,互不相扰。





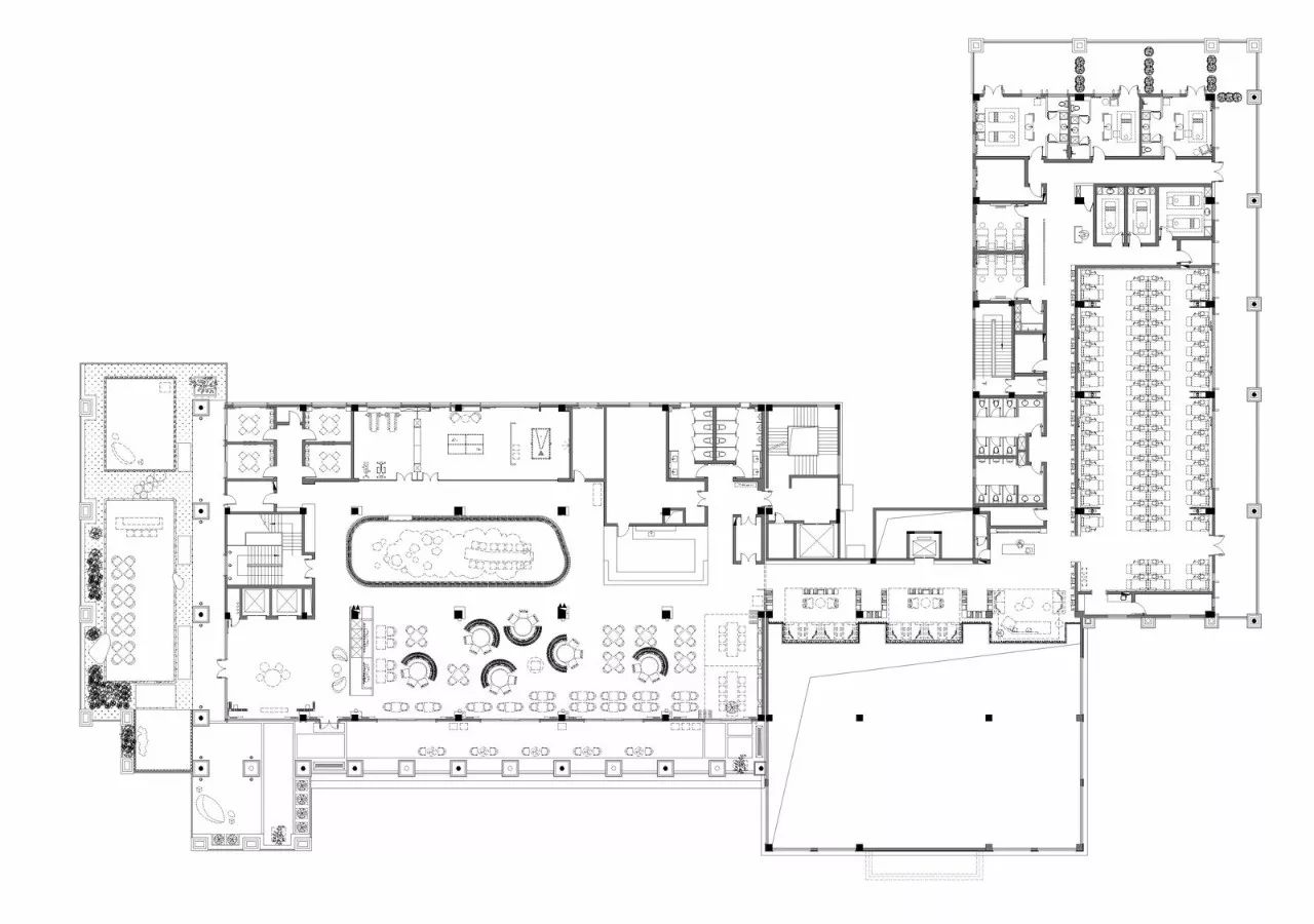
第二步则是团客和散客在大堂办理入住手续后,能迅速进入旁边的更衣室,减轻大堂人声鼎沸的压力。在更衣沐浴后,或者进入园林式户外温泉区,或者直接上二楼休息区。在二层休息区,设计师则将SPA区、休息区与餐饮、棋牌、阅读、儿童区先作大的功能分割,将健身房、球类活动室用玻璃作完全隔音的封闭式处理,以书吧作为几个功能区的半遮断式衔接,起到进一步消音的作用。这一部分,尤其应该首先关照休息等候区的客人,不能受噪音影响,只有人声隐约的同时,却不致扰人清静。譬如“鸟鸣林更幽”。




从大堂VIP的专属通道,乘坐电梯到达三层后,便是一片户外的水景,通过一道木廊再进入室内。设计师利用“水”这一概念,在由视觉形成的的感受部分,将空间由外到内,再延至屋外,营造了一个体感空间,并赋予其音乐般的节奏。




以今日的交通方式和经济能力,如果要追求完全单纯的地域式风格,完全可以通过一张机票解决,不必在一个相异的文化环境下由文化认知完全不同的人照搬过来重敲锣鼓另开张——那样的做法,反倒会让人觉得不地道,不够味,多了山寨之嫌。东坡讲“论画与形似,见与儿童邻”便是此意。因此,在空间设计过程中,设计师摆脱具象摹仿,而将精力投入到“东方印象”这个概念当中。


一个时期的建筑,通常是受到其技术的限制而以某种相应的方式出现。它的体量关系也因此要受限于这一框架。在这个框架内,它会因功能方面的合理呈现出美态。但是当体量关系已经超越这种限制的时候,再简单的照搬其形制,就会形成不合时宜的困难。设计师在该项目的三层VIP楼层的设计当中就遇到这样的问题——建筑的设计所形成的“人”形屋顶,因为体量的关系,使这一层的净空最高点达到八米,无论从视线到心理感受,还是环保的角度,都让人无从接受。设计师因此在这个空间中,在合适的高度重新设计了一个梁拱结构,既在设计上呼应了首层的空间关系,又解决了这个“大裤衩”空穴来风的问题。
在设计过程中,设计师不扮演考据学者的角色,并不拘泥于所谓的元素,而是取法“运用之妙,存乎一心”,表达全球化状态下的在地设计,在空间的层面,它只要求有东方的印象,却不执着于东方的某一特定地域特色;在材质、构造和色调上,只有抽象意义的东方,无谓其抽取于何处。而到处理人可以触及的部分,设计师则将装饰、艺术品具体化,将现代的和带有明显地域色彩的艺术品结合在一起,将现代作品和东南亚的传统雕塑,纯东亚风格的装饰品进行混搭,营造一个由虚入实,由抽象到具象,由可观到可供玩味的空间环境。






↑ 一层平面图
↑ 二层平面图
↑ 三层平面图
设计总监:彭征
主案设计:彭征、谢泽坤、张立
设计团队: 马英康、陈泳夏、朱国光、蔡文姫、刁映华、朱云锋、李永华
设计单位: 广州共生形态工程设计有限公司
项目地点:广东佛山
设计时间:2016年06月
竣工时间:2017年06月
设计面积:4000 ㎡
主要材料:彩云灰大理石,艺术肌理漆,竹席编织,青古铜不锈钢,木饰面
评论