圣保罗Ramona餐厅 | MM18 Arquitetos
阅读:3440 2018-09-18

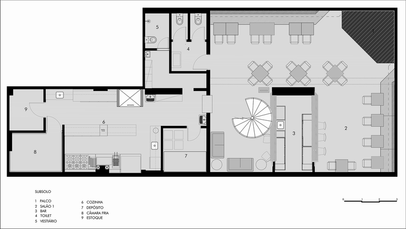
Ramona餐厅位于巴西圣保罗的市区一座老建筑的转角位置,占据了建筑的一层地下空间以及楼上一层半的空间。餐厅同时还包括一间位于地下的酒吧以及Pocket Show



MM18 Arquitetos设计的Ramona餐厅的整体室内风格延续了这座老建筑的古老韵味,将建筑结构坦率地暴露在外,比如头顶粗糙的混凝土井字梁一下将这里的氛围定位在vintage甚至略带粗野主义倾向的风格。让一切显得亲近随意,好像在说:“亲,用餐请随意,不必拘束,想在家一样……”



餐厅的墙壁采用了纹理明显的木质板材,让餐厅氛围更加温馨,同时一部分木质家具也配合着这种感觉,让整体感觉协调一致。进门后对面墙壁采用了一种镜面玻璃砖的材质,由于房间的进深较长,容易造成内部昏暗,所以镜面玻璃砖可以很好地缓解这一问题,同时打造了一面漂亮的墙壁。


ARCHINA 所有平台上发布的项目、招聘、资讯等内容,部分由第三方提供或系统自动收录。资料版权属于第三方,若信息不实或涉及版权问题,需要版权方和第三方沟通,ARCHINA 将配合对接,并在确认无误后删除涉及版权问题的信息,相应的法律责任均由资料提供方承担。


评论


请 [登录] 后评论

关于项目