Centra(办公楼) | KPF
阅读:3684 2018-09-21

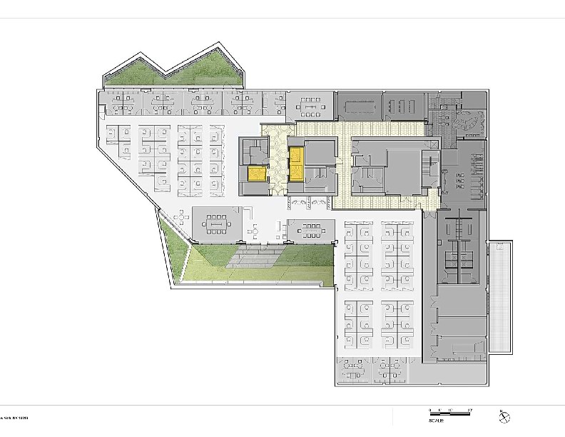
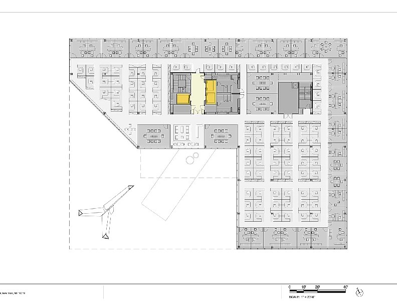
国际著名事务所KPF设计的Centra办公大楼(Centra Metropark)位于新泽西州艾斯林,建筑面积10000平米。Centra Metropark总共四层,平面投影是个完整的矩形。下面三层的局部被挑空,留下顶层的桁架层被一颗大树杈似的的柱子支撑,成为建筑最大的标识性。挑空的空间形成建筑的入口和前广场,同时为侧边的办公空间提供了相应的采光要求。


ARCHINA 所有平台上发布的项目、招聘、资讯等内容,部分由第三方提供或系统自动收录。资料版权属于第三方,若信息不实或涉及版权问题,需要版权方和第三方沟通,ARCHINA 将配合对接,并在确认无误后删除涉及版权问题的信息,相应的法律责任均由资料提供方承担。


评论


请 [登录] 后评论