圣莫里茨教堂的极简主义风格改造 | John Pawson
阅读:9451 2018-09-27

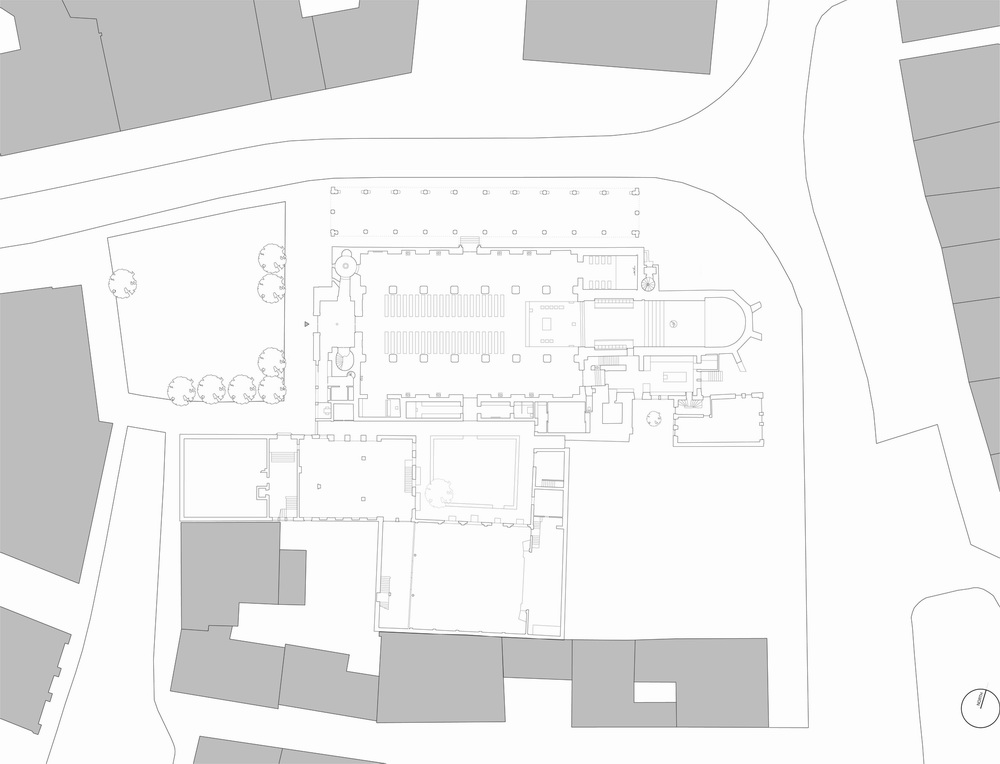
德国奥格斯堡(Augsburg)的圣莫里茨教堂(St. Moritz Church)在问世1000年来发生了很多变化,大火、不同时期宗教仪式的变化、审美变革和战火都在这里留下了印记。最新的改造以宗教建筑的神圣和圣洁的氛围为核心,从美学、功能和礼拜仪式的视角重新进行了调整。



建筑师约翰.波森(John Pawson)对教堂的某些部位进行了重新精细的雕琢,移走多余的人工摆设,营造了一个非常纯净的氛围。提取现有的形式和元素创造一种新的建筑语言,改造后新的部分微妙的体现出来,而不觉得任何的异样和不协调。



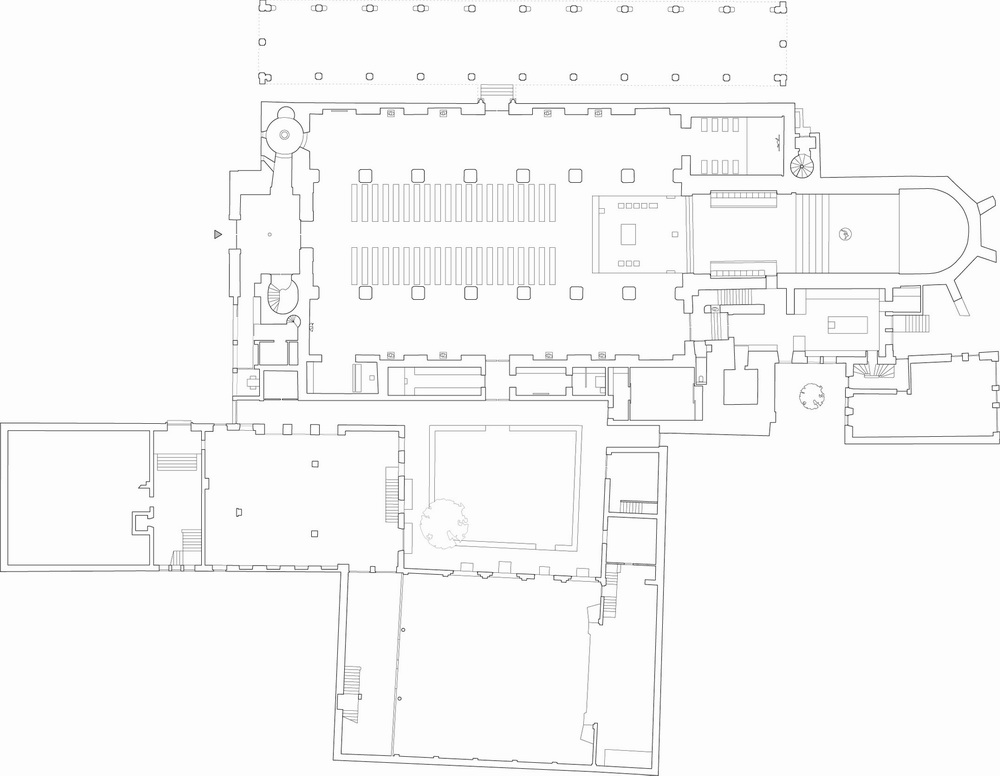
圣莫里茨教堂(St. Moritz Church)是根据线性特征原则来设计的,空间强烈地向穹顶集中,在重新的改造里,在中殿往上至穹顶刻意加了的一些采光窗眼,保留和强化了这种空间特征,光线撒下来,落在巴洛克雕塑家Georg Petel的基督圣像上。 改造的主要介入是穹顶窗户的转变,这些窗户不仅用来采光,也表达一些宗教含义,它们代表通往天堂的天梯。



原来的玻璃用成片的缟玛瑙代替,这样达到了最佳的光线条件,过滤了太阳的直射,使整个空间沐浴在迷蒙的冷光中。 穹顶窗户的处理达到了最大限度的采光,光线从顶部直射下来,穹顶成了教堂里最明亮的部位。底下的举行礼拜的中殿也是最亮的,而两边过道的光线则变的柔和。



原来巴洛克风格的侧窗,原是为了照亮内部摆设和装饰,现在成了大厅间接的光源。 应第二梵蒂冈议会的要求,圣坛移到了中殿新的位置,在礼拜时更加靠近教徒,也使得圣坛、布道台和祭司席处在同一水平线上。


22.22.jpg

23.23.jpg

24.24.jpg

25.25.jpg

ARCHINA 所有平台上发布的项目、招聘、资讯等内容,部分由第三方提供或系统自动收录。资料版权属于第三方,若信息不实或涉及版权问题,需要版权方和第三方沟通,ARCHINA 将配合对接,并在确认无误后删除涉及版权问题的信息,相应的法律责任均由资料提供方承担。


评论


请 [登录] 后评论

关于项目