
月在庭鸟瞰© 张超
项目选址于深圳市光明区虹桥公园片区内,周边植物茂密,群山环绕,自然条件优渥。鲜艳的空中步道犹如一条红色飘带在山间环绕,为公园注入了动感与活力,也为“日熹阁”与“月在庭”的设计提供了独特语境。
这两栋建筑是公园入口区的重要公共配套建筑及标志性门户, 作为虹桥公园二期项目的一部分,光明区旨在为公园提供有别于公园内其他运动设施,希望融合文化、艺术和休闲功能的特色小型公共建筑综合体。这是一个有很大挑战的项目,如何不抢“红色廊桥”的醒目,策略性呈现其建筑独特标志性;同时,自然与景观作为场地的最大资源,如何“物尽其用”也是设计的出发点和最大挑战。
日熹阁
背景
日熹阁原来定义为公园管理用房,项目占地 664 平方米,是个在自然坡度上直径 30 米的圆形用地,也是虹桥公园入口区最近的配套建筑用地。前有开阔的湖面和标志性虹桥,后临京港高铁与广深港高铁两条铁路,拥有绝佳的景观视角和交通条件。面对场地自然坡度特性与建筑红线的限制,采用了圆形空间布局。通过巧妙的路径设计,将公园流线与建筑内部功能有机融合,公共活动空间、书吧等区域紧密相连,打造一个集文化、休闲与观景功能于一体的多元化场所。

日熹阁、月在庭场地位置关系 © 南沙原创NODE

日熹阁鸟瞰© 张超
方案设计
日熹阁的设计为了最大程度地保留原生态环境,采用了顺势而为的策略,以首层架空形式减少对自然地形的干预,并采用了坡道的方式进入建筑内部。设计致敬了经典——勒·柯布西耶的卡彭特视觉艺术中心(Carpenter Center)的“漫步式“”穿越式”流线设计,将公园现状的顺坡步道与建筑进出流线及内部功能空间有机结合,同时也解放了地面层空间,作为公共休憩的“路过”场所。整体建筑如同一幅逐层展开的画卷,强调了空间的连贯性与流线的流畅性。

日熹阁入口处坡道© 张超

勒·柯布西耶 卡朋特艺术中心 © 图源网络
建筑的功能布局采用了动静分区的方式。底层作为开放的公共空间,连接外部环境,提供自由流动的步道和休息区;二层设置了书吧和咖啡厅,并可以利用灰空间进行外摆,增强了空间的互动性和开放性。三层则设有沙龙空间,相对安静,提供了更好的视野和舒适的环境,适合举办私密的交流和展览活动。各层之间紧密相连,形成了一条连续的游览路线。游客从公园的入口踏入建筑,仿佛进入了一次旅程,随着层层递进,最终从另一端出口,重新回归自然的怀抱。建筑与公园的路径自然衔接,仿佛与自然的对话从未中断。

体量与流线分析 © 南沙原创NODE

日熹阁爆炸图及各层示意效果图 © 南沙原创NODE
结构、空间、表皮与景观
日熹阁的设计旨在尽量减少对场地自然及现状地形的干扰,最大化地利用好周边开阔的廊桥景观,同时营造轻盈的建筑体量感。结构选型、功能布局、空间流线以及立面设计是关键。

模型 © 南沙原创NODE
结构与空间
整体建筑结构是下部混凝土结构和上部钢结构的组合结构体系。

架空层方案 © 南沙原创NODE

日熹阁结构示意图 © 南沙原创NODE
地面层顺应地势,保留了自然坡道,希望最大化地开放给公众,因而具有较大的公共性需求。为了确保空间的开阔性,设计通过三根立柱支撑,形成了一个大跨度的开放空间。由于首层层高相对较低且内部空间较为扁平,为了避免压抑感,设计摒弃了传统框架结构,选用了大跨度的预应力拱板与边框梁的结构系统,拱板的上凸形态不仅缓解了压迫感,还形成了一个独特的顶部空间,丰富了视觉体验。底层的架空设计极大地增强了建筑的通透性,使日熹阁在视觉上呈现出轻盈悬浮的姿态。同时,这一设计优化了空气流通,将自然通风融入建筑之中。底层的休息平台与架空层相结合,不仅为公众提供了舒适的停留空间,还提升了使用者的热舒适性,为场地营造出一个开放、宜人的公共环境。

大跨度拱板施工现场 © 南沙原创NODE

日熹阁架空空间© 张超
地面层的三个混凝土立柱顺延至首层,成为三个V形钢结构组合柱,这不仅有效支撑了上层结构,还为首层和二层的半透明立面提供了良好的结构基础和视觉机会。
首层出入口的公共空间与公园步道联通,内部空间受限于规划设计条件的面积要求,仅设置了可闭合的阅读空间和开放的咖啡厅,具有次级公共性,起始设计中便考虑本层作为行人休憩处,台基状的室内空间即满足停留座憩的需求,也与一层的拱板在结构形势上暗合。另一方面该层的公共性也要求内部尽量不落柱,而地面层拱板结构也不适合承托立柱,两者在需求上统一。

日熹阁方案剖面 © 南沙原创NODE

首层空间© 张超
二层活动空间相对私密,也因面积要求,未占满整个二层,因此夹层采用从屋顶钢结构梁下吊挂方式成为合理选择,达到了空间需求与结构合理性之间的统一。空间设置了沙龙与展览区,通过大面积玻璃窗,访客可以眺望对岸标志性的虹桥,打造独特的景观体验。同时,二层的层高变化与一层形成对比,创造了不同的空间感受,为建筑增添了更多的层次感。

二层内部视角,可远眺虹桥© 科学+艺术联合实验室
屋顶空间设计为全开放视野,访客可全方位无死角地环视周围景色,尽览公园及远山的自然风光,为整体空间体验增添一份开阔与自由的感受。

屋顶层空间© 科学+艺术联合实验室
灰空间:立面厚度
日熹阁的外立面并非传统意义上的封闭立面,而是一个开放的“空间装置”。其空间与“神秘面纱”共同形成了“灰空间”。金属板表皮采用穿孔曲折板的形式,可以让立面有似一层轻盈通透的薄纱:其折板状的设计本身具有良好的受力性能,可以减少次级龙骨的使用,而 A 与 B 两种不同曲度折板的组合也使得整体立面轻柔婉约而富有变化,有如自然的飘逸随性。这种表皮的设计不仅赋予建筑轻透的视觉效果,还通过双向的视线连接,模糊了室内外空间的界限,营造出宁静且诗意的氛围。


半透明立面与首层的V形柱© 张超
建筑的立体表皮与地面层的开放共同创造了丰富的灰空间与视觉层次,巧妙地模糊了内外界限。从建筑内部向外投射出流动的光影,光线在金属穿孔板的表面上反射,形成细腻的变化与动态的空间体验。而从外部望去,建筑又恰如其分地融入周围自然景观,表现出一种低调却独特的现代感。这种设计通过流动的表皮和深浅交替的空间结构,不仅让建筑与环境展开对话,也在视觉上创造了层叠的景深,强化了空间的流动感与互动性。与此同时,穿孔板的设计有助于调节建筑内部的热量与光线,减少直射阳光对室内空间的影响,提升建筑的气候适应性。通过有效的遮阳与通风,建筑能够在炎热的夏季保持凉爽,确保空间的舒适性与可持续性。

金属穿孔板幕墙立面细节© 张超
小结
日熹阁在圆形场地的限制下,建筑通过功能叠加的方式巧妙布局,将不同的功能区域有效地组合。由于结构和材料的差异,各层的层高有所变化,既改变了每层的视觉效果,也带来了独特的景观视野。这种设计不仅增强了空间的层次感和多样性,还在有限的圆形场地中展现了建筑的独特韵味和美学体验。设计试图在有限的场地上充分利用四维时空,通过“建筑散步”(Promenade Architecturale)的立意,让建筑内部的空间顺应自然景观,在不同高度及功能之间发生交替、切换和变化,为人们提供了丰富的视觉体验与空间探索感。

日熹阁入口处© 张超
月在庭
春山多胜事,赏玩夜忘归。
掬水月在手,弄花香满衣。
兴来无远近,欲去惜芳菲。
南望鸣钟处,楼台深翠微。
——《春山夜月》
背景与挑战
月在庭项目占地约 3700 平米,原场地为 BMX 自由式运动场用地,后政府根据公园内整体文化与体育功能差异配置的原则调整为对公众 24 小时开放、建筑面积 300 平米的艺术驿站,结合了小型艺术展示空间、咖啡茶室和简易驿站的便利功能。

月在庭鸟瞰© 胡康榆

设计灵感 © 图源网络(左)南沙原创 NODE(右)
月在庭有着典型的岭南荔枝林坡地条件,在便利的园路和滨水栈道之间,背山面水。如何利用现有坡地,又要串联起不同功能空间,又能极大化把场边周边各角度的景色尽收眼底,还要最大化地保留坡地的荔枝林,是我们设计的出发点和初衷。

月在庭场地原状高差示意图 © 南沙原创NODE

月在庭功能流线 © 南沙原创NODE
景与观的流动性
相比于日熹阁极限的圆形场地,月在庭的场地相对宽松、坡向自然,荔枝树茂密,湖面与远山的视野开阔。方案尝试借鉴岭南园林游廊的理念和组织手法,根据场地高差及林木疏密程度,设计了连续多条的环廊空间,贯通场地不同标高层面,并自然形成了内向的坡地静谧庭院和临湖自然雨水花园庭院,在关键节点处还设置了观景平台,不仅提供休憩空间,还与对岸的虹桥景观相呼应,营造出多层次的视野观感。共同组合成一个立体的“交叉路径花园”。

地面层平面方案© 南沙原创NODE

剖面方案 © 南沙原创NODE
漫步的流线,像是书卷长轴, 顺应着标高徐徐展开,通过廊道、坡道台阶和平台的上下串联或并联,与咖啡、展览等功能空间相遇,与自然相互借景,构成了高低错落、移步易景的循环路径,营造出“观”的动感和漫步体验;而廊道内的窗洞设计, 运用了借景、对景、框景等手法,将不同层次的“景”——植入的特色树木及山石等元素的庭院及远近的自然景观,引入室内,制造了“观”的戏剧性和立体感, 形成不同视角的层次感和深度感,既丰富了空间层次感,也增添了趣味性。
©张超
这个“交叉路径的花园” 即是游径、又是建筑、还是园林。用传统园林的手法,将体验的时空线“无限”延长; 而建筑本身则以水平及垂直向简洁的体量组合,静而不宣地展示给外部的自然环境. 既是“交叉路径的花园”,也是一个没有立面的建筑.
©胡康榆
清水混凝土
如何通过材料与结构的可能性去营造空间的纯粹感和流线的连续性,是本设计的关键。经过多轮结构选型、材料与供应商的比选,还包括分段预制混凝土拼接等方案,最终选定了一次性浇筑的清水混凝土。这一材料以其自然质感与独特肌理,与周围岭南荔枝林的景观和谐融合,展现了建筑对质朴与细腻之美的追求。设计达到了“四两拨千斤”的效果——既保留了建筑的简洁质朴,又在有限空间中创造了极具表现力和层次感的视觉效果。


© 胡康榆
清水混凝土的制作工艺要求极高——通过精细打样、现场放样和模板拼接,木纹与光面两种质感组合的清水混凝土成为建筑的主形体,同时兼具结构承重、空间分割和饰面效果,实现“一步到位”的目标。支模浇筑时,错台和垂直度的偏差需严格控制在 3mm 以内,力求一次浇筑完成,减少后期修复工作,并适当进行表面打磨以确保效果完美。为避免色差问题,使用了特制的保护剂,并严格控制表面无气泡。

选材、打样现场 © 南沙原创NODE
施工过程中,木模的挑选与使用是关键技术难点:由于不同木材的吸水性与纹路存在差异,需在现场进行 1:1 样板制作。精准的放线与定位确保木模板自然错缝,特别是在平面转角及墙面与天花交接处,必须保证整板排列整齐、对缝精确,以确保整体效果的一致性。此外,清水混凝土结合木纹与光滑面的表面处理方式,创造出丰富的质感对比,进一步提升建筑的细腻表达。

室内线性藏灯效果图 © 南沙原创NODE
为保证一次性浇筑的效果,所有机电点位在支模前均需提前协调并预留好。施工过程中,每个环节都需进行高度专业化的修复与保护工作,层层控制以保证现场施工的完成度。这一切精益求精的工艺,不仅赋予建筑独特的美感,也确保了月在庭在结构与材质上的高质量呈现。最终,这种兼具巧妙与力量的设计成功实现了建筑目标,展现出对空间、材料与工艺的深刻理解与创新应用。
夜景© 张超
小结
远眺那条热情似火的红飘带,“月在庭”却以灰色的沉静淡然矗立其中,仿佛在城市的喧嚣与活力中提供了一处安宁的栖息地。作为一个艺术驿站,不仅仅是一个建筑空间,它承载着对自然与人文之间微妙关系的探索。设计灵感源自岭南地区丰富的自然景观和文化底蕴,以及对当代城市生活中人们内心渴望宁静的感知。建筑布局的流动性、材料的质朴感,希望“月在庭”能够成为繁华城市深处的一片净土,如诗中所述,凝聚自然之美与人文之境。在这里,建筑与环境融为一体,展现出一种宁静、内敛的力量。

隐于虹桥公园的月在庭© 胡康榆
设计的南方性、公共性与当代性
“日熹阁”与“月在庭”的设计在自然与建筑之间尝试去寻找一种动态的平衡。两座建筑通过简洁的体量与流动的视觉、身心体验,探索了人、空间与自然之间的全新互动方式。设计将南方特有的“轻”与开放的“融”结合在一起,不仅提供了开放的驿站,更成为人与人、人与自然交汇的场所。低调的灰色、简洁有进深感的立面与周围环境和谐共生,始终让色彩热烈的虹桥成为突出的视觉焦点。
“一方一圆”、“一放一收”、“一刚一柔” 互补差异化的空间张力, 让造型稳重的“日熹阁”与形体流动的“月在庭”在公园里形成鲜明的对比,又相互呼应。呈现出开放与包容、收纳与引导的双重特质。流动的空间、立体的园林、举重若轻的存在,体现了设计中的轻盈感与内敛之美,吸引着人们穿梭于交错的路径中,感受自然的独特魅力,呼应了这片土地的历史与未来。

日熹阁、月在庭区位首层总平面图 © 南沙原创
后记
第二届深圳光明国际公共艺术季「在·自然」公共艺术作品展于 2024 年 11 月在日熹阁与月在庭举行。在这一展览中,策展人沈少民和艺术家管怀宾、沈烈毅的作品与南沙原创 NODE 这两座建筑的空间完美融合。日熹阁与月在庭不仅成为了公共艺术展示的场所,也通过建筑与艺术的对话,进一步深化了人与自然、建筑与环境之间的联系,赋予了空间新的生命力与表现力。在日月交替的时光中,建筑与艺术作品相得益彰,共同创造了一个充满诗意与思考的艺术体验空间。
© 科学+艺术联合实验室
项目图纸

日熹阁地面层平面图 © 南沙原创NODE

日熹阁一、二层平面图 © 南沙原创NODE

日熹阁屋顶平面图 © 南沙原创NODE

日熹阁剖面图 © 南沙原创NODE

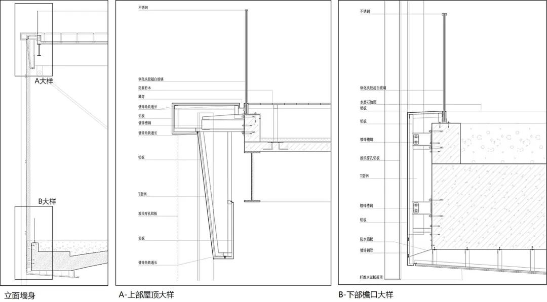
日熹阁墙身结构大样图 © 南沙原创NODE

金属穿孔板表皮构造 © 南沙原创NODE

金属穿孔板表皮构造 © 南沙原创NODE

月在庭地面层平面图 © 南沙原创NODE

月在庭地下层平面图 © 南沙原创NODE

月在庭屋顶层平面图 © 南沙原创NODE


月在庭剖面图 © 南沙原创NODE

月在庭藏灯大样图 © 南沙原创NODE
项目信息
项目名称:日熹阁与月在庭
项目类型:建筑(主要),室内,景观
项目地点:深圳市光明区虹桥公园内
建成状态:建成
日熹阁:
设计时间(起迄年月):2022年5月-2023年5月
建设时间(起迄年月):2023年9月-2024年10月
月在庭:
设计时间(起迄年月):2022年5月-2023年5月
建设时间(起迄年月):2023年8月-2024年5月
日熹阁:
用地面积(平方米):664
建筑面积(平方米):533
月在庭:
用地面积(平方米):3678
建筑面积(平方米):300
设计单位(建筑、景观及室内设计):南沙原创建筑设计工作室
设计单位联系方式(网站或邮箱):http://www.nodeoffice.com、node@nodeoffice.com
主创建筑师:刘珩
设计团队完整名单:
日熹阁:刘珩、黄杰斌、史华熙、吴义娟、庄蔚航、李帅
月在庭:刘珩、黄杰斌、陈彦霖、孙嘉奥、吴义娟、庄蔚航、黄国良
结构顾问:和作结构建筑研究所 张准、蔡研明、许悦
建筑、景观、室内顾问:陈振华、陈锋、张再明
施工图设计:武汉理工大设计研究院
室内施工图设计:深圳三图建设集团有限公司
代建单位:华侨城光明(深圳)投资有限公司
施工方:中国中铁十局集团有限公司
【月在庭】清水混凝土施工单位:中建一局集团华南建设有限公司
项目建设方:深圳市光明区城市管理和综合执法局
摄影师:张超(张超摄影工作室)、胡康榆(直角建筑摄影)
评论