
背景:区域转型中的工业遗产再更新
在城市中心区域转型的进程中,工业遗产片区再利用成为盘活城市存量空间、延续历史文脉的关键命题。在这一过程中,如何在保持一定街区开发强度的同时兼顾工业遗产的活化利用,业界也通过不同的案例实践尝试寻找到最适合的路径。上海第十钢铁厂(以下简称上钢十厂)位于上海市长宁区新华路街道淮海西路,是上海各大国营钢铁厂中距离市中心最近的一处。


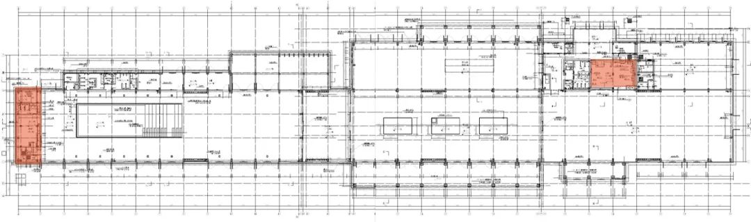
/ 上钢十厂的市中心区位 /
20世纪90年代,上钢十厂关停。2005年,红坊集团入驻,开启了“红坊”艺术社区的十年华章,厂区内最大的保留建筑——原冷轧带钢车间旧址,也于2014年被列为上海市文物保护单位。但伴随着其单一业态下土地利用效率不高,无法匹配区域未来发展定位等问题,“红坊”也在2017年6月正式谢幕,并在融侨集团的入驻下迎来了21世纪的第二轮更新。

/ 红坊社区 /
(来源:《红坊十年》)
由于规划中土地性质的转变,除了场地南侧的冷轧带钢车间旧址文物建筑,包括4处原保留厂房在内的其余所有建筑均面临拆除。华建集团上海院全程参与本项目,设计内容包括两部分:一是原 “ 红坊 ” 社区的整体更新,新建3栋独栋办公、3栋塔楼办公及配套商业,并开挖3层地下室,以提升开发强度,更好地匹配长宁核心区域的未来定位,由华建集团上海院建筑一院与日本三菱地所设计合作完成;二是对上钢十厂冷轧带钢车间旧址文物建筑的保护修缮和活化利用,由华建集团上海院城市更新院与日本西泽立卫建筑设计事务所合作完成。文物建筑已于2024年5月竣工,并向公众开放。

/ 项目总平面图 /
历史:工业遗产的文化积淀与社会价值
辉煌一时的上钢十厂
上钢十厂成立于1956年,最初由永记钢皮厂等6家企业合并而成,随后发展规模越发庞大,开启了十厂的光辉历程,也创造了多个 “ 中国第一 ” :
1958年,中国第一座冷轧冷弯型钢车间建成生产;
1962年,建成中国第一条热镀锡薄板作业线,填补了中国镀锡薄板生产的空白;
1970年,中国第一座塔式酸洗机组建成投产;
1971年,建成中国第一座700毫米电镀锡机组
……
上钢十厂最辉煌的时期在1980年代初期,当时每年钢产量可以达到40万吨,交税就有7、8000万。

/ 上钢十厂成立 /
(来源:澎湃新闻)

/ 上钢十厂自制冷连轧机 /
(来源:人民画报1974年第9期)
废弃钢厂变身艺术殿堂
随着上海宝钢在20世纪80年代的异军突起,上钢十厂在生产模式、生产效率、硬件设施、环境保护等方面的差距都暴露了出来,逐渐无法承担本厂和联营厂的运营成本,从1995年开始,不得不逐一将分厂关闭,直至1998年关闭了最后一家热轧厂,正式宣告了有着40多年光辉历史的上钢十厂退出了历史舞台。

/ 上钢十厂召开立功动员大会 /
(来源:澎湃新闻)
2005年,上钢十厂联手上海红坊发展有限公司等单位,将原冷轧带钢车间修缮、改造为上海城市雕塑艺术中心,营造展览、餐饮、零售、办公等业态共存的特色空间。同时厂区也完成了对中心区域部分厂房的拆除,完成了中央坡形绿地的建设,以城市雕塑艺术中心为代表的“红坊”逐渐成为上钢十厂在21世纪的新名字。



/ 2005红坊社区组图 /
(来源:Brearley Architects & Urbanists)
工业遗产独特的重要性
上海是中国近代工业的发祥地和现代工业的集聚地,在中国工业发展史上占有重要地位,也留下了大量不同时期、优秀的工业遗产。它们见证了上海工业化、工业现代化的历程,是工业文化的重要载体。在信息时代的今天,对这些物质遗存的保护尤为重要。
冷轧带钢车间是原上海第十钢铁厂唯一留存至今的厂房,始建于1956年,也适应着厂区不同时期的发展,先后经历了多次改扩建,如加建辅助用房、置换屋面系统等,从最初占地不到3000平方米的小型车间发展成了整个厂区最为重要的建筑之一,见证了上海20世纪50年代后冶金工业发展突飞猛进的特殊时期,具有较高的历史价值。

1 建成冷轧冷弯车间.
2 建成成品仓库.
1958年厂区总平面图

1 冷轧冷弯车间北侧扩建单跨酸洗车间、原料间和机修间.
2 冷轧冷弯车间南侧扩建主电空
3 成品仓库改建成退火炉车间.
1962-1966年厂区总平面图

1 抬升屋面.
2 加长西端,与光亮退火炉车间连接
3 局部抬升酸洗车间并加建二层.
1983年七车间大修总平图

1 加建主入口.
2 空内修缮及改造.
2005年改造总平面图
/ 历史沿革 /
建筑位于场地东南侧,沿西南-东北方向布置,长约180米,山墙面宽18米,由原退火炉车间和原冷轧冷弯车间组成。建筑主体为单层厂房,高约12米,外立面整体为清水红砖,上部整齐地开有钢制高窗,门窗洞口顶部设置混凝土过梁,檐口处设置混凝土檐沟。建筑采取工业厂房典型的混凝土排架结构,柱跨6米,柱高约10米,柱上部挑出牛腿搁置预制混凝土屋架和双拼角钢屋架,屋架上方铺设预制混凝土槽形板。这样的结构形式、构件及其营造出的高大而震撼的内部空间,既满足了当时炼钢生产线中不同工艺对车间的需求,也体现了特定时期的工业建筑审美,有一定的科学和艺术价值。


/ 车间关停后室内空间 /
策略:工业遗产的系统性再生
保障结构安全
上钢十厂冷轧带钢车间的建造是为了满足钢铁生产的需要,与民用建筑有着较大的不同。本工程结合房屋检测的结论及未来需求,为其设定合适的功能,控制各项荷载取值,并进行针对性的结构加固。
保留历史痕迹
在遵循“真实性”“可逆性”“最小干预”等设计原则的基础上,本工程也充分理解工业建筑与外滩老大楼、花园洋房这类民用建筑遗产的不同,在保护修缮中控制干预程度,适度保留工业遗产的沧桑感和工业美。
灵活运用空间特点
上钢十厂冷轧带钢车间室内空间高大且匀质,本工程结合未来不同功能需求,充分利用工业建筑空间的可塑性,合理进行平面布置,创造亮点空间。
精细管控设备设施
功能的转变也带来了对空间舒适度的要求。本工程根据未来使用需求新做空调、消防等机电系统,并充分利用BIM等技术手段协助工程全过程,在满足文物保护要求、最小干预的前提下提升设备性能,控制其实施效果。
修缮:真实性的锚固与修复
红砖外墙恢复清水效果
建筑原始外立面为清水红砖,尺寸和砌法不一。由于后期多次改造,外立面上有较多后期新增门窗洞口、空调外机、白色PVC雨水管,部分红砖被后期涂料覆盖,历史风貌遭到破坏。

/ 外立面红砖分类 /

/ 不同种类红砖 /
基于历史照片和现场勘查,本工程拆除与历史风貌不协调的加建体量,凿除涂料饰面,恢复外立面清水效果。对砖墙进行分级处理,对风化或开裂、破损严重的砖块优先使用拆除下来保存较好的砖块替换,而对于轻微劣化现象则不做过度干预,一定程度上保留了工业建筑的沧桑感。


/ 外墙修缮样板(勾缝前)/

/ 外立面修缮前 /

/ 外立面修缮后 /
建筑外墙内侧同样因为后期改造完全被涂料、面砖等饰面覆盖,在现场剥除后期饰面后,发现红砖饰面保存良好。设计结合房屋检测报告,在采取与外立面相同的分级干预措施之外,创新性地采用了墙体嵌筋构造代替常规钢筋网片喷浆加固的做法,在加强砖墙稳定性的同时,完整地保留了红砖墙两侧的清水效果。

/ 室内修缮前 /

/ 室内施工中 /

/ 室内修缮后 /
结构构件最大程度保留
结合房屋检测报告,结构专业秉持“最小干预”原则,尽可能不增加额外构造,暴露原结构,展现工业建筑风貌。混凝土排架柱整体承载力满足未来工况,局部出现保护层脱落和露筋现象,本次工程采用颜色相近的无收缩混凝土进行修补。针对局部尺寸较大的裂缝采取环氧树脂浆灌注方式修补,表面整体涂刷无色透明混凝土保护剂。

/ 排架柱灌浆修复 /

/ 排架柱修复后 /
原厂房中的起重行车已不存,仅剩混凝土行车梁得以保留,其劣化情况总体与混凝土牛腿柱接近,但在局部柱跨间缺失。本次工程在采取与牛腿柱相同的构造性修复方法外,按原尺寸在缺失柱跨间新浇筑行车梁,并做到新旧可识别。

/ 混凝土行车梁保存状况 /

/ 按历史样式新做混凝土行车梁 /
原混凝土屋架在剥除外侧粉刷后发现往期加固采用的碳纤维布,但均已松脱失效。本次工程将屋架清理至基层后重做碳布加固,并增加加固范围,覆盖所有受拉杆件。

/ 混凝土屋架修复前 /

/ 混凝土屋架修复中 /

/ 混凝土屋架修复后 /
原钢屋架局部存在杆件缺损、节点松脱、螺栓锈蚀等现象。本期工程按历史样式替换缺损杆件,并重做节点,保证连接可靠;外侧涂刷防腐、膨胀型防火涂料,满足1.5小时耐火极限。

/ 钢屋架修复前 /

/ 钢屋架修复中 /

/ 钢屋架修缮后 /
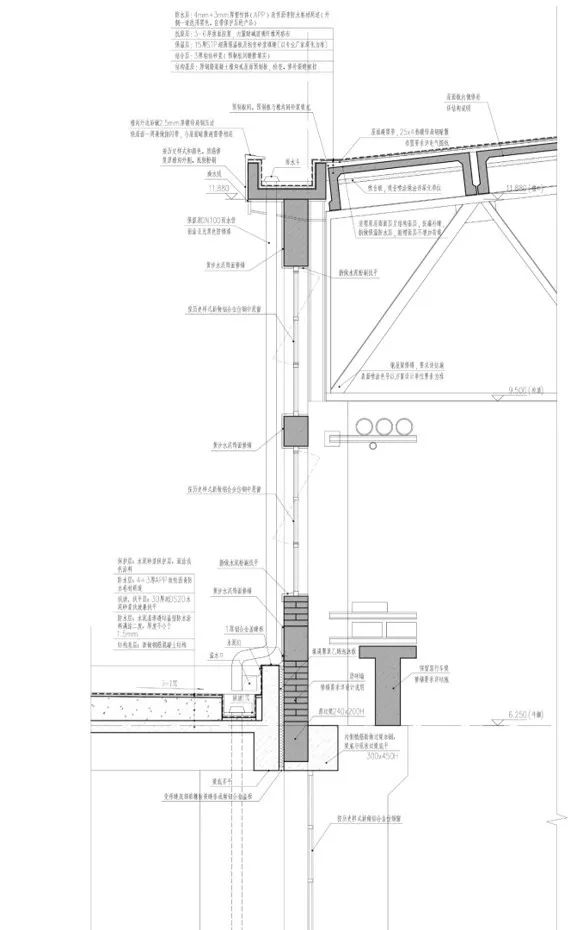
屋面系统提升综合性能
建筑原始为黑色防水卷材屋面,由于年久失修,卷材局部松脱失效,屋面板室内侧能观察到局部渗漏现象。本期工程兼顾历史风貌、防水保温效果和荷载控制,采用超薄真空绝热板保温层,上铺自带保护层的防水卷材,在保持历史风貌的同时延长其使用寿命。原始屋面天窗已缺失、破损,采用聚碳酸酯板临时过渡。本期工程不改变原始划格,替换为节能玻璃天窗,优化室内采光。

/ 屋面修缮前 /

/ 屋面修缮前 /

/ 待修改屋面修缮后 /
屋面完成整体修缮更新后,建筑师也对未来使用过程的荷载进行了控制:在预制槽形板和屋架上,允许直接承载如海报、灯具等轻质荷载,而如消防管、空调机等重型荷载则必须固定于混凝土柱或行车梁上。
重构:空间的优化提升与活化利用
总体设计提升城市环境
在本次更新前,项目场地作为上海城市雕塑艺术中心、民生现代美术馆等文化和办公场馆使用,始终“藏”于街区内部,建筑周边道路均为社区内部路网,与城市空间的互动有限。

/更新前航拍(来源:谷歌地球)/

/ 更新前红坊社区淮海西路入口 /
基于对城市环境整体面貌、街区公共性及开发经济效益的综合考量,在总体设计中将文物建筑南侧沿街原有的非保护建筑整体拆除,最大限度地释放建筑历史风貌,使其长达180米的红砖外立面首次完整呈现在城市界面之中,成为面向街道的文化地标。

/更新后航拍(来源:谷歌地球)/

/ 更新后淮海西路街景 /
文物建筑南侧设立开放式绿地公园与一座雕塑建筑,沿淮海西路构建可达、可游、可停留的公共空间,吸引行人停驻,也引导人流自然进入文物建筑,从而将市政道路与街区内部空间紧密串联,激活更新后的整体片区。
场地更新前建筑密度较低,结合周边地铁等公服设施的配给,本轮更新通过新建办公和商业提高场地建筑密度和总建筑量,以提升开发强度。新建建筑被策略性地布置于文物建筑的北侧,形成街区内街路网,与文物建筑和其南侧城市绿地公园共同实现主次有序的空间分区。由此,项目实现了历史风貌展示、公共空间构建与城市活力引入三者的有机统一,构建出一条联通城市界面、文物节点与街区内部的开放性城市空间路径。

/ 城市绿地公园和雕塑建筑 /
立面更新激发城市对话
冷轧带钢车间厂房部分后期搭建的体量在一定程度上改变了厂房的立面轮廓,且建造方法较为简易,用材粗糙,存在安全隐患。
本次工程保留厂房各个立面的历史原物部分,对破坏历史风貌的非历史原物部分采用和历史原物协调统一的设计语言,按原体量、轮廓进行更新。在主体厂房的两个长立面上新增大尺寸门扇,而在南北两侧的辅房立面上仅开设门洞,形成灰空间,将建筑南侧的广场、绿地和北侧的内街串联起来,打通视线和流线,进一步提升建筑的公共性。


/ 现状立面图(上)、修缮设计立面图(下) /
(西泽立卫建筑设计事务所)

/ 设计分析图 /
(西泽立卫建筑设计事务所)

/ 沿淮海西路立面修缮后 /
平面格局延续历史风貌
“红坊”社区时期的冷轧带钢车间厂房一部分作为城市雕塑艺术中心,剩下一部分作为灵活办公和商业空间,充分利用了厂房的高大空间,在内部增设夹层,虽然提高了使用效率、增加了空间丰富程度,但也影响了厂房室内的历史风貌。


/ 城市雕塑艺术中心时期室内空间 /
(来源:Brearley Architects & Urbanists)
本次工程拆除了所有后期的加建,恢复了主体厂房历史上的大空间,通过玻璃隔断将180米长的厂房划分为3个不同的功能分区,但仍保持视觉连通,提升了建筑的开放性,也为未来以文化展览、艺术沙龙、主题快闪等功能提供了多重可能性。

/ 一层平面设计图 /
(西泽立卫建筑设计事务所)
厂房西部充分利用空间高度置入临时折叠座椅,成为能够容纳约400人的多功能厅;中部下挖新做3处树池,打造“中央花园”概念,南北两侧通过外立面新增的大门洞分别与地块中的景观花园和街区中部的内街景观形成联系,鼓励市民和游客穿行;东部既可以打开玻璃隔断与中部空间联通,也能够利用南侧辅房和东侧山墙面的出入口形成单独的流线,布置小型展览。

/ 西侧多功能厅 /

/ 中部中央花园室内 /

/ 中部中央花园室外 /

/ 东侧展览空间 /
机电系统“因地制宜”
单层厂房建筑的空间巨大,在带来震撼和视觉冲击的同时,也成了机电设计的难点。在管线和末端设备必须明露的前提下,通过精细化设计,本次工程做到了使用效果和视觉效果的平衡。
为满足空间舒适性要求,机电设备尤其是空调设备的数量多、体积大,对机房面积和层高要求较高。为兼顾厂房主体空间的完整性和未来功能需求,本期工程分别通过夹层和下挖两种方式增设2处机房,分别服务厂房东西两部分,减小管线长度,提升送风效率。

/ 增设夹层布置机房 /

/ 局部下挖布置机房 /

/ 机房位置示意 /
建筑师通过模型推敲管线排布策略。厂房空间内的机电设备和管线主要集中于行车梁上方,一部分尽量紧贴行车梁顶面,另一部分尽量紧贴屋架底面,将对高窗的遮挡降到最低。厂房中部北侧辅房的喷淋系统布置也结合了混凝土薄腹梁和屋面槽形板的分格与走向,尽量削弱其对空间的影响。

/ 机电管线模型 /

/ 机电管线剖面图 /

/ 机电管线完成效果 /
延续:从工业记忆到艺术文化新名片的转移
焕新升级后的文物建筑名为“ROJO艺文空间”,通过空间重塑与文化赋能,成功打造了融合艺术展览、潮流体验、社区互动于一体的城市文化新地标。自2024年7月正式开放以来,这里已经成为上海艺术生态的重要引擎,持续推动本土文化与国际潮流的对话。多功能厅引入亚洲唯一限定驻场秀《蓝人秀》,凭借互动式表演和先锋视听效果,累计观演人次超过10万;中央花园则通过开放式绿地与艺术装置的结合,举办凡几市集、社区营造大会、全球涂鸦艺术大展等活动,持续激发空间人气与活力。

/ 蓝人秀 /
(上海融侨中心)

/ 推介活动 /
(上海融侨中心)

/ 凡几集市 /
(上海融侨中心)

/ 凡几集市 /
(上海融侨中心)
展望:全球视野下工业遗产的活化再生
进入21世纪,全球范围内出现了许多成功、富含启示的工业遗产再生案例,国际上如德国鲁尔工业区、英国伦敦泰特现代美术馆、美国纽约高线公园等;国内如北京首钢园、上海杨浦滨江和近期景德镇陶溪川等。通过科学、合理的保护与活化,工业遗产不仅能传承历史文化,还能为城市带来多元功能和新生活力。上钢十厂在20年内的两次成功转型,是上海以文化为内核、文物建筑为载体,在探索工业遗产再生道路上交出的又一份答卷。
工业遗产再生,不仅仅是对建筑本身的修复,更是对城市文化和社区活力的再创造。在未来的城市更新过程中,工业遗产的再生将继续作为一个关键领域,为我们提供重要的参考和启示。这种融合历史与现代、兼顾保护传承与城市发展的更新模式,将成为推动城市更新、激发文化创新的重要力量。
项目信息
项目名称 | 上钢十厂冷轧带钢车间旧址文物建筑修缮工程
项目地点 | 上海市长宁区淮海西路570
建设单位 | 上海宝钢长宁置业有限公司
建筑面积 | 5996平方米
建筑高度 | 14.75米
建筑层数 | 地上1层,局部3层
设计时间 | 2016年10月
竣工时间 | 2024年7月
设计单位 |
华建集团上海建筑设计研究院有限公司(方案深化、施工图设计、施工配合)
日本西泽立卫建筑设计事务所(方案设计)
日本三菱地所设计(方案设计)
新珈建筑室内设计(上海)有限公司 (室内顾问)
铿晓设计咨询(上海)有限公司(景观设计)
十聿(上海)照明设计咨询有限公司(灯光设计)
华建集团上海院设计团队
设计总负责 | 邹勋、李定
项目经理 | 周琪、章雯
建筑专业 | 倪禛、唐洁琼、严何、周童安
结构专业 | 刘艺萍、刘桂、杜东颖
电气专业 | 叶海东、王龚、吴颢、瞿明珠、陈思盈
暖通设计 | 朱南军、高志强、王圣博、沈彬彬、赵霖
给排水设计 | 刘琉、郭士民
摄影 | SFAP、邱致远
作者介绍

评论