

01 项目背景:
三重断裂与再生命题
陶二厂,这座始建于上世纪80年代初的陶瓷厂,静静地蛰伏在宜兴丁蜀镇黄龙山南麓,占地6.8公顷的厂区曾是紫砂文化的核心腹地——这里不仅出产最优质的紫砂原矿,更孕育过完整的陶瓷产业生态。
随着时代变迁,这座承载着集体记忆的国营老厂在世纪之交黯然退场。部分车间转为私营工作室和其他业态空间,形成自发的功能置换,建筑也在原先厂房的基础上加建、改建的风格各异;部分车间废弃,墙面斑驳,杂物四处堆放。
杂乱的建筑群与无序分布的场地设施导致了严重的空间割裂与流线混乱,使整个厂区呈现出一种衰败的工业"遗迹"状态。面对与隈研吾大师近期设计的UCCA陶美术馆之间形成的空间鸿沟,我们的设计策略从消解这种"工业遗迹"的断裂感入手,通过创造性的空间干预重新建立场所的连续性。

▲原厂区的“断裂感”
02 文化提升策略:
破解“断裂魔咒”,最小干预实现最大文化唤醒
项目面临的核心制约在于时间+成本严格控制,这一现实条件深刻影响了我们的设计方法论:一方面,有限的预算排除了大规模改建的可能性;另一方面,经济性要求倒逼我们针对必须解决的问题精准把握改造力度。基于此,我们确立了"微创更新"的核心策略——通过点线面的建筑缝合术(Architectural Suture),在严格限制土建改动的框架下,以精准的局部干预实现整体空间的活化:保留既有建筑肌理,仅在关键节点植入新体量,修复整理、局部替换原有建筑表皮。通过材质转译与流线梳理,将悠久的紫砂文化、四十年的工业记忆与当代商业旅游有机融合。这种"最小干预"原则既是对在地性的尊重,更是以最高性价比实现场所文化精神的唤醒。


▲陶二厂对比
▍重构空间:重建朝圣路径
基于对场地历史脉络与空间肌理的系统性梳理,设计确立了以工业遗产为空间叙事基底的总体策略。围绕UCCA陶美术馆打造东西景观主轴与滨江次轴,形成连贯的游览路径。通过增设过渡空间作为叙事节点,让游客在移步换景中体验紫砂技艺与千年文化,实现文商旅融合,营造出"可观、可感、可游、可居"的沉浸式陶文化场域。
▍在地实践:紫砂工艺转译
面对园区内紫砂工业特色日渐消逝的现状,设计以宜兴本土紫砂矿脉的天然肌理与地质层理为灵感原型,将其转化为建筑表皮的建构语言。通过锈钢的工业化质感与陶土花砖的手工温度形成戏剧性并置,在材质对话中巧妙缝合历史断裂。
▍轻质介入:适应性再利用
在保留既有建筑主体结构的前提下,仅对不足8%的非承重外墙进行局部拆改与增建,以最小干预实现空间活化。设计以回收陶砖为媒介,通过材料叙事重新编织场所记忆——将拆迁废料转化为具有文化符号意义的景观装置,赋予废弃材料新的生命,在有限的时间与空间条件下,以精细化微调实现功能升级与空间重构,探索一种低冲击、高灵活性的工业遗产再生策略。

▲规划分析

▲园区肌理

▲园区夜景
03 分区解码:
ABCDE五重陶艺宇宙

▲平面分区
▍A区·记忆重生场

▲A区设计亮点
在此片区的更新设计中,设计尊重原有历史建筑风貌,尤其关注片区内的许多老建筑及保护建筑。保留传统工艺修复陶花砖、水泥砖、马赛克、琉璃瓦等老材料,并在入口区域以特色陶圈铺装限定空间序列,形成“陶”的文化场域。
设计结合休闲座椅与艺术装置,为未来陶艺市集等活动预留弹性空间。同时,在绿化转角处以红砖铺地打造演艺区,将保留的老设备艺术化改造为露天舞台背景,使工业记忆以现代方式延续。这一系列措施既传承了历史文脉,又通过功能复合与空间重构,为场地注入新的活力,实现文化保护与空间复兴的有机统一。




▲入口陶艺集市

▲老电动机装置

▲特色材质提取利用
▍B区·陶文化街

▲B区设计亮点
以UCCA陶美术馆作为陶文化的核心向外延展形成主要的商业街区,通过陶砖挡墙与花池丰富街道界面,设置手作工坊外摆区、商业与餐饮节点,形成丰富的室外停留空间;同时有机化解地形高差,自低向高,打造出一条兼具仪式感与文化内涵的"陶文化朝圣之路"。
设计特别注重"视线节点"的营造,陶砖、绿植、通透玻璃橱窗虚实相映,通过精心规划的看与被看视觉关系,让参观者在移步换景间感受陶艺文化的独特魅力。


▲陶文化朝圣之路


▲陶艺街商业节点

▲陶砖挡墙、花池施工过程
▍C区·滨河陶观带

▲C区设计亮点
设计通过建筑与景观的有机融合,巧妙平衡了生态保护、历史延续与公共活力。在保留沿河原生自然界面的基础上,通过滨水露台的错落布局适度拓展步行空间,巧妙增强了公共区域的通达性与游憩舒适度。
面对原有建筑立面单调的现状,创新性地采用工业遗存与本土材质相结合的解决策略:以工字钢梁构建结构性骨架,外置传统陶花砖幕墙系统,并精心配置多层次植被。这种复合式处理手法形成了虚实交织的立体韵律——钢构骨架勾勒出工业记忆的轮廓,陶砖幕墙以其特有的透光肌理与植被相互映衬,在阳光变幻中演绎出动态的光影交响,既实现了建筑与景观的有机对话,又通过材质语言的创新组合,在延续工业历史脉络的同时,塑造出富有生命力的内外过渡空间。


▲滨水空间建筑与景观


▲立面陶砖构成

▲陶砖拼花施工过程
▍D区·陶文化活力场

▲D区设计亮点
陶文化活力场以陶书局与工业烟囱为双核心,打造了一个集创意、文化、展示、体验、工坊、活动于一体的文化片区。
场地中央的老厂房烟囱保留并加高,改造为标志性艺术装置,通过分段材质隐喻"过去-现在-未来"的时间轴线,顶部以螺旋上升的"虚空之烟"造型形成视觉焦点,底部则保留陶砖材质连接地面,以放射状铺装限定空间,既扎根历史又象征向上精神。原陶书局原外立面采用水泥板铺贴缺乏表现力,设计拆除部分水泥板、替换镂空陶砖幕墙,强化了建筑形体的逻辑性与体块感,并将陶砖元素延伸至入口景墙、树池和地面铺装,形成统一的视觉系统。
场地内红砖铺就的工坊街巷延续工业时代的肌理,与老烟囱、保留老厂房构成跨越时空的对话场域;工字钢框架、攀缘植物、围合的庭院空间内点缀吴为山大师的陶艺作品。不同时空元素的魔幻拼贴,创造出富有叙事性的沉浸式文化体验空间。

▲陶二厂西入口

▲陶书局对话烟囱


▲陶书局入口


▲庭院夜景

▲设计分析

▲施工过程
▍E区·陶工业展示厅

▲E区设计亮点
设计依据土建的深灰色钢结构,确定工业灰为主要基调,营造简洁大气的空间氛围。灰色系不仅与工业风元素完美融合,同时为展品提供中性背景,
接待门厅通过蒋国兴陶艺作品的陈列,实现工业质感与艺术灵性的有机融合。透明玻璃体块的穿插运用,既划分空间功能,又提升整体通透感, 使工业、文化、艺术碰撞 。会展厅内强化保留工字钢、混凝土、金属方格等标志性工业材质。保留原始框架与钢结构屋顶,新增横向设备两边铺设,一体化整合,兼顾灯光系统与遮阳功能,实现技术与美学的平衡。

▲展厅入口


▲ 陶二厂展示中心

▲内外景色渗透

▲设计分析
04 结语:
永恒的和解

陶二厂文化提升的设计实践生动的证明,正是种种限制条件,往往最能激发在地性的营造智慧。真正的地域性表达不在于炫技,而在于直面现实约束:有限的经费、紧迫的周期、在地的材料、朴素的建构逻辑。当改造策略不再一味追求颠覆性创新,而是着眼于空间体验的再生与文化脉络的延续,工业遗产便能与当代生活和谐共生,获得真正可持续的价值。
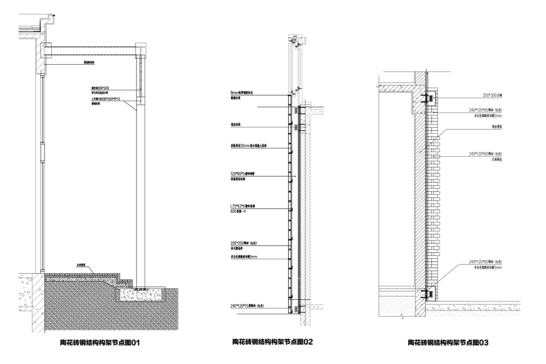
技术图纸:



UCCA陶美术馆:隈研吾都市设计事务所
陶书局室内:Wuto-mills by Wutopia Lab
评论